
|
無論是城里人還是農村人,現在都想著給自己建一棟別墅。想要建出一棟與眾不同的房子,首先就需要一套房屋設計施工圖,找到一套好的圖紙就已經成功一半了。 接下來大家帶來6套三層小別墅設計施工圖,外觀大氣、布局無可挑剔,經濟實惠又實用,實在是太劃算了! 第一套
正面效果圖
背面效果圖
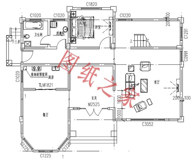
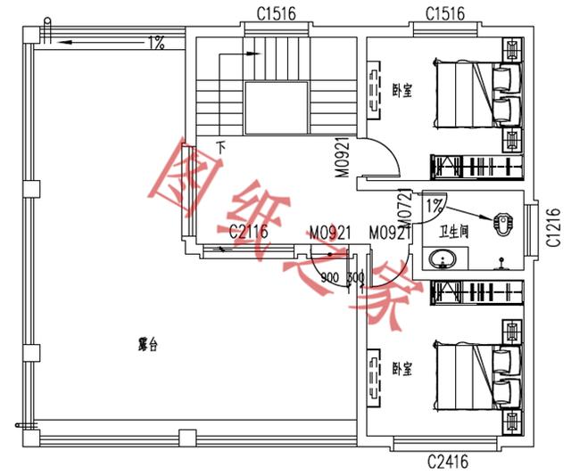
鳥瞰圖 占地面積:14.2m*12.7m,一層占地180平方米左右(含外門庭); 建筑高度:13.03米(含屋頂); 設計功能: 一層戶型:客廳、廚房、餐廳、臥室、衛生間、洗衣間、玄關; 二層戶型:客廳、臥室(帶衣帽間,衛生間)、臥室、衛生間、儲藏間、陽臺; 三層戶型:臥室(帶衛生間)、臥室×2、衛生間、儲藏間。陽臺、露臺;
一層平面圖
二層平面圖
三層平面圖
立面圖 第二套
正面效果圖
背面效果圖
鳥瞰圖 占地面積:8.3m×13m,一層占地110平方米左右; 建筑高度:12.6米(含屋頂); 設計功能: 一層戶型:客廳、廚房、餐廳、臥室、衛生間、堂屋、洗衣房; 二層戶型:客廳、、臥室x3、書房、衛生間、陽臺; 三層戶型:臥室x3、書房、衛生間、大露臺;
一層平面圖
二層平面圖
三層平面圖
立面圖 第三套
正面效果圖
背面效果圖
鳥瞰圖 占地面積:11.8m*12.0m,一層占地140平方米左右(含小院); 建筑高度:12.0米(含屋頂); 設計功能: 一層戶型:客廳、廚房、餐廳、臥室×2、衛生間×2、儲藏室; 二層戶型:客廳、臥室×2、衛生間、書房、露臺; 三層戶型:客廳、臥室、衛生間、大露臺;
一層平面圖
二層平面圖
三層平面圖
立面圖 第四套
正面效果圖
背面效果圖
鳥瞰圖 占地面積:11.7m*9.6m,一層占地160平方米左右(含外門庭); 建筑高度:10.98米(含屋頂); 設計功能: 一層戶型:客廳、廚房、餐廳、臥室、衛生間、車庫; 二層戶型:客廳、主臥(帶衛生間,衣帽間)、臥室x2、衛生間、書房、陽臺; 三層戶型:臥室x2、衛生間、大露臺;
一層平面圖
二層平面圖
三層平面圖
立面圖 第五套
正面效果圖
背面效果圖
鳥瞰圖 占地面積:11.5m*14.6m,一層占地160平方米左右(含外門庭); 建筑高度:11.6米(含屋頂); 設計功能: 一層戶型:客廳、茶室(可做廚房)、餐廳、臥室(帶衛生間)、衛生間、儲藏間; 二層戶型:客廳上空、臥室(帶衛生間)×3、起居室、書房、陽臺、儲藏間; 三層戶型:活動室、臥室(帶衛生間和衣帽間)、臥室(衛生間)×2、儲藏間、大露臺、陽臺;
一層平面圖
二層平面圖
三層平面圖
立面圖 第六套
正面效果圖
背面效果圖
鳥瞰圖 占地面積:15.5m*12.7m,一層占地170平方米左右(含外門庭); 建筑高度:13.1米(含屋頂); 設計功能: 一層戶型:客廳、廚房、餐廳、臥室(帶衛生間)、衛生間、烤火間(可做臥室)、車庫; 二層戶型:客廳、客廳上空、臥室(帶衛生間)、臥室x2、書房、衛生間、露臺; 三層戶型:臥室(帶衛生間)、臥室、書房、衛生間、多功能房、露臺×2;
一層平面圖
二層平面圖
三層平面圖
立面圖 這幾套別墅的設計圖,你最喜歡哪一套? 圖紙之家-專注農村別墅/自建房設計18年,集合國內200余位經驗豐富的設計師,被評為口碑最好的農村建筑設計公司! |

最新設計的農村二層自建房屋設計圖,占地180平米,經濟實用
占地:180平米
新式160平方米農村三層樓房設計圖,客廳中空
占地:160平方米
大開間小進深的一層別墅設計圖,進深僅8.7米,獨立餐廚照樣美觀
占地:130.32平方米
面寬13米二層鄉村自建別墅戶型圖,帶堂屋和露臺
占地:135.47平方米
帶地下室二層雙拼別墅設計圖,兄弟和睦又省錢,全家人都滿意!
占地:308平方米
新農村兩層樓房設計圖,占地110平米,戶型簡單實用
占地:110平方米
140平方米新農村復式自建房子,三層別墅建筑圖紙及效果圖
占地:138平方米
面寬17米農村實用自建房一層別墅設計圖,簡約大氣經濟時尚
占地:192.94平方米
簡約實用農村自建房戶型圖,美觀經濟又通透,南北通透住得爽!
占地:160.6平方米
別致漂亮二層別墅設計圖紙,占地160平米左右,精致的外觀,讓人
占地:160平方米
一層農村小平房設計圖,功能齊全造價低,兩款戶型可選
占地:多戶型可選
高端大氣三層別墅設計圖,建好就是村里最靚的
占地:120平方米
實用型二層別墅設計圖,簡單大方最耐看,16.5米乘11米
占地:150.94平方米
四層簡單新農村房屋設計圖紙,造價低,適合農村自建
占地:多種戶型
中式復古四層別墅房屋設計圖紙,含外觀效果圖
占地:90平方米
四層豪華別墅設計圖及效果圖,高端房屋設計方案
占地:250平方米
農村兩層帶地下室別墅設計圖,還帶庭院規劃,適合農村建
占地:144.5平方米
樓中樓客廳挑高二層別墅設計圖,復式別墅方案推薦
占地:122平方米
120平方兩層房子設計圖及圖片,外觀大方好看,內部結構合理
占地:120平方米
農村一層小別墅設計圖,經濟大氣,16米乘9米
占地:124.12平方米
推薦:10套新農村自建房設計圖,2026年最新設計
閱讀次數:4825737次
100套鄉村別墅圖片大全,2026年最新設計
閱讀次數:2492203次
6款農村蓋一層平房的設計圖,10萬元就能建起來
閱讀次數:1852637次
這11個一層農村自建房別墅火爆了朋友圈!我最喜歡戶型十!你呢
閱讀次數:750268次
農村6萬元建一層小別墅圖,你敢相信嗎
閱讀次數:567686次
農村5萬塊就能自建房,6套普通房子設計圖分享,你沒看錯!
閱讀次數:419410次
8套農村漂亮三間平房圖片,非常適合在農村修建!
閱讀次數:411197次
農村自建房化糞池怎么做?附方案及施工過程
閱讀次數:391783次
農村一層三間平房設計圖,告別土氣養老房,讓人忍不住點贊
閱讀次數:350581次
新農村二層樓房圖片造價12萬,挑一套回家建房吧!
閱讀次數:349126次
