
|
大概建房的朋友都有這樣的焦慮,農村建房當然要住著舒服,大氣、寬敞是必然的,可現在誰給你批那么寬敞的地基呀。地基不夠我們高度可以湊啊,小地基的大別墅,設計師首推就是這款四層別墅戶型,占地100平米左右。 房屋介紹 層數: 四層 結構形式: 磚混結構 主體造價: 25-30萬 開間: 10.8米 進深: 12米 占地面積: 104.86平方米 建筑面積: 388.62平方米
這套四層別墅設計經典自然,外墻采用紅色瓷磚裝飾,并設有陽臺及向外突出的大窗戶,白色陽臺護欄及磚石柱,藍色的坡面屋頂。四層設有大露臺,室外景觀一覽無余。 平面圖展示:
一層平面圖 一 層:客廳、茶廳、臥室、廚房、餐廳、衛生間
二層平面圖 二 層:客廳(附陽臺)、臥室(附衛生間)、3臥室、衛生間
三層平面圖 三 層:客廳、臥室(附陽臺)、臥室(附衛生間)、臥室、書房、衛生間
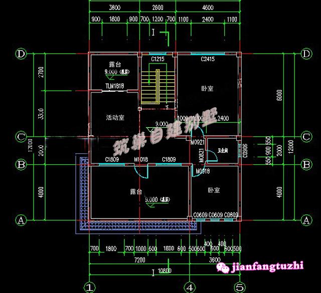
四層平面圖 四 層:活動室、2臥室、衛生間、露臺 圖紙之家-專注農村別墅/自建房設計18年,集合國內200余位經驗豐富的設計師,被評為口碑最好的農村建筑設計公司! |

新農村帶陽臺三層樓房圖紙,占地180平米左右,豪華大氣
占地:180平方米
10米×13米最好看的農村三層樓房圖,客廳中空
占地:124平方米
簡簡單單一層農村自建別墅方案,布局緊湊又不擁擠
占地:133.55平方米
110平方米農村兩層別墅設計效果圖及圖紙,12X12米
占地:110平方米
簡單的復式住宅設計圖,客廳挑高,帶外觀效果圖片
占地:148平方米
農村一層獨棟別墅設計圖,帶閣樓,設計感十足
占地:250平方米
新農村三層房屋設計圖紙大全,新農村住宅圖紙
占地:108平方米
農村一層中式三合院別墅設計圖紙,外觀漂亮極了
占地:195平方米
小戶型兄弟雙拼別墅房屋設計圖,帶外觀效果圖
占地:150平方米
150平方米自建現代二層別墅施工設計圖帶外觀圖,15x10米
占地:多戶型可選
最新農村20萬元二層半別墅設計圖,占地僅110多平
占地:110平方米
農村實用型一層半樓房圖片效果圖,占地140平米左右
占地:140平方米
一層帶閣樓農村別墅設計圖,多得一層可變空間,太值了!
占地:165.89平方米
三層現代平頂別墅設計圖,簡約時尚百看不厭,外觀令人驚艷!
占地:125.142平方米
100平方米農村二層CAD設計圖紙帶外觀圖,12X8米
占地:100平方米
農村二層樓建房造型圖及全套施工圖紙,占地110平米左右,帶地下
占地:110平方米
全新農村簡歐風格三層房屋別墅效果圖,110和210兩個戶型,帶電梯
占地:多種戶型
三層歐式自建房別墅設計方案,11x11米洋氣實用,飽受大家好評
占地:127平方米
170平方米雙拼別墅戶型建筑設計圖紙及外觀效果圖,復式單戶85平
占地:170平方米
農村二層小別墅自建房屋設計圖,客廳中空,占地150平米
占地:150平方米
推薦:10套新農村自建房設計圖,2026年最新設計
閱讀次數:4825737次
100套鄉村別墅圖片大全,2026年最新設計
閱讀次數:2492203次
6款農村蓋一層平房的設計圖,10萬元就能建起來
閱讀次數:1852637次
這11個一層農村自建房別墅火爆了朋友圈!我最喜歡戶型十!你呢
閱讀次數:750268次
農村6萬元建一層小別墅圖,你敢相信嗎
閱讀次數:567686次
農村5萬塊就能自建房,6套普通房子設計圖分享,你沒看錯!
閱讀次數:419410次
8套農村漂亮三間平房圖片,非常適合在農村修建!
閱讀次數:411197次
農村自建房化糞池怎么做?附方案及施工過程
閱讀次數:391783次
農村一層三間平房設計圖,告別土氣養老房,讓人忍不住點贊
閱讀次數:350581次
新農村二層樓房圖片造價12萬,挑一套回家建房吧!
閱讀次數:349126次
