
|
新農村就是跟原來不一樣的農村,就是比原來更漂亮的農村。自建房可以說是新農村的一大特色,越來越多的人加入到農村自建房的行列中,一棟棟的別墅拔地而起。從發展趨勢來看,未來的農村會和城市一樣繁華便利。想在農村建房的朋友,可要趕緊了,建房的成本會越往后越高。 下邊給大家帶來5套三層別墅設計,漂亮又大氣,適合新農村自建房,歡迎喜歡的朋友點贊收藏! 第一套
正面效果圖
背面效果圖
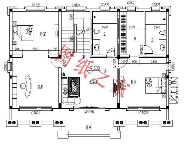
鳥瞰圖 占地面積:15.2m*12m,一層占地160平方米左右(含外門庭); 建筑高度:13.35米(含屋頂); 設計功能: 一層:客廳、廚房、餐廳、臥室、老人房、衛生間; 二層:玄關上空、臥室(帶衛生間、衣帽間)、臥室(帶衛生間)、臥室x2、衛生間; 三層:臥室(帶書房)、臥室(帶衣帽間、衛生間)、家庭廳、衛生間;
一層平面圖
二層平面圖
三層平面圖
立面圖 第二套
正面效果圖
背面效果圖
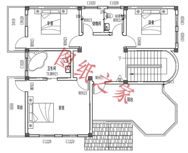
鳥瞰圖 占地面積:11.9m*10.9m,一層占地130平方米左右(含外門庭); 建筑高度:13.08米(含屋頂); 設計功能: 一層:客廳、廚房、餐廳、臥室(帶衛生)、臥室、休閑室、衛生間; 二層:起居室、臥室(帶衛生間)、臥室x2、衛生間、儲藏間、陽臺; 三層:臥室(帶衛生間)、臥室x2、衛生間、儲藏間、陽臺;
一層平面圖
二層平面圖
三層平面圖
立面圖 第三套
正面效果圖
背面效果圖
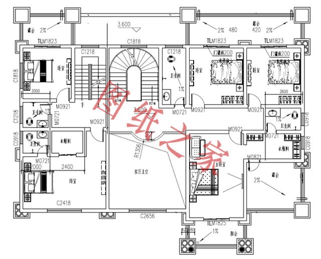
鳥瞰圖 占地面積:12.6m*11.6m,一層占地150平方米左右(含外門庭); 建筑層高:三層; 建筑高度:13.3米(含屋頂); 設計功能: 一層:客廳、廚房、餐廳、臥室×2、儲藏室、衛生間; 二層:客廳、小廳、臥室x3、衛生間、露臺; 三層:臥室、衛生間、多功能區域、大露臺;
一層平面圖
二層平面圖
三層平面圖
立面圖 第四套
正面效果圖
背面效果圖
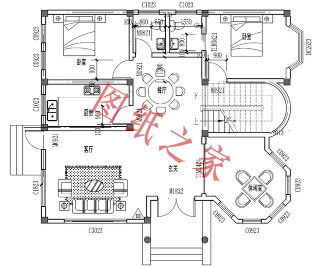
鳥瞰圖 占地面積:12.2m*13.1m,一層占地150平方米左右(含外門庭); 建筑高度:14米(含屋頂); 設計功能: 一層:客廳、廚房、餐廳、衛生間; 二層:臥室(帶衛生間,衣帽間)×2、臥室(帶衛生間); 三層:臥室(帶衛生間,衣帽間)、臥室(帶衛生間)、露臺;
一層平面圖
二層平面圖
三層平面圖
立面圖 第五套
正面效果圖
背面效果圖
鳥瞰圖 占地面積:19.6m*16.2m,一層占地260平方米左右(含外門庭); 建筑層高:三層; 建筑高度:13.08米(含屋頂); 設計功能:(兩戶戶型) 一 層:大戶(客廳、廚房、餐廳、長輩房含衛生間、娛樂室含儲藏間、衛生間),小戶(客廳、廚房、餐廳、衛生間、儲藏間) 二 層:大戶(客廳上空、主臥含衣帽間衛生間露臺、臥室×2、衛生間), 小戶(臥室含衣帽間衛生間、臥室、衛生間、露臺); 三 層:大戶(客廳、臥室、衣帽間、衛生間、露臺), 小戶(臥室、衣帽間、衛生間、露臺)
一層平面圖
二層平面圖
三層平面圖
立面圖
圖紙之家-專注農村別墅/自建房設計18年,集合國內200余位經驗豐富的設計師,被評為口碑最好的農村建筑設計公司! |

120平方米新農村四層別墅設計圖紙12X10米50萬以內
占地:120平方米
160平方米二層小別墅設計圖紙及效果圖大全,12X13米
占地:162平方米
平屋頂12米寬別墅三層設計圖,平頂照樣建的漂亮
占地:129.6平方米
12×12米農村二層經濟型自建房設計圖,設計了6間臥室
占地:140平方米
150平方米自建現代二層別墅施工設計圖帶外觀圖,15x10米
占地:多戶型可選
三層平頂現代風格,農村自建房設計圖,可帶電梯,百看不厭
占地:259.55平方米
頂配三拼三層別墅設計,獨立入戶+共享庭院,兄弟三家共享奢華
占地:367.44平方米
高端大氣三層歐式別墅設計圖,客廳中空,旋轉樓梯
占地:150平方米
新款鄉村二層半別墅設計圖紙帶效果圖,三層別墅外觀圖片大全
占地:108.795平方米
3款三層農村自建別墅設計圖,氣派十足,準備建房的快快查看
占地:多戶型可選
110平方米新農村三層別墅設計圖,含外觀效果圖
占地:109平方米
2026最美三層別墅設計圖紙及效果圖,十佳最美農村別墅
占地:151平方米
農村自建二層樓房設計圖及效果圖,二層房屋圖推薦
占地:105平方米
鄉村一層平房設計圖,面寬13米平面圖及造型圖
占地:170平方米
農村二層舒適好房,這款四開間別墅設計圖真的很不錯
占地:220.46平方米
12米面寬一層農村別墅設計圖,實用又舒適
占地:110.41平方米
農村三層樓房設計圖及圖片,客廳挑空,優化室內采光
占地:140平方米
170平方米歐式農村兩層小別墅設計圖紙帶外觀圖,精致好看
占地:多種戶型
農村15萬元二層小樓設計圖,15萬農村兩層小別墅圖片
占地:120平方米
帶配房的二層農村小別墅設計圖,大方適用,耐看經濟
占地:152.28平方米
推薦:10套新農村自建房設計圖,2026年最新設計
閱讀次數:4825737次
100套鄉村別墅圖片大全,2026年最新設計
閱讀次數:2492203次
6款農村蓋一層平房的設計圖,10萬元就能建起來
閱讀次數:1852637次
這11個一層農村自建房別墅火爆了朋友圈!我最喜歡戶型十!你呢
閱讀次數:750268次
農村6萬元建一層小別墅圖,你敢相信嗎
閱讀次數:567686次
農村5萬塊就能自建房,6套普通房子設計圖分享,你沒看錯!
閱讀次數:419410次
8套農村漂亮三間平房圖片,非常適合在農村修建!
閱讀次數:411197次
農村自建房化糞池怎么做?附方案及施工過程
閱讀次數:391783次
農村一層三間平房設計圖,告別土氣養老房,讓人忍不住點贊
閱讀次數:350581次
新農村二層樓房圖片造價12萬,挑一套回家建房吧!
閱讀次數:349126次
