
|
國慶假期很多朋友外出游玩,也會有不少人返鄉探親,他們一定會為各自家鄉的人變化而感到高興和震驚,一棟棟的農村小別墅讓人目不暇接。欣賞這些豪宅的同時,不妨暢想一下,如果自己也打算建房,想要建成什么樣子的呢? 今天給大家推薦6套農村三層自建房設計,居住舒適、經濟適用,快來看看吧! 第一套
正面效果圖
鳥瞰圖
背面效果圖 占地面積:11.92m*12.70m,148平方米左右; 建筑高度:12.33米(含屋頂); 設計功能: 一層戶型設計:客廳、餐廳、廚房、衛生間、臥室(帶衛生間)、娛樂室 二層戶型設計:客廳、休閑區、主臥、臥室x2(可做書房)、衛生間、陽臺 三層戶型設計:客廳、主臥、臥室x2(可做書房)、衛生間、露臺
一層平面圖
二層平面圖
三層平面圖 第二套
正面效果圖
鳥瞰圖
背面效果圖 占地面積:11.8m*12..8m,一層占地150平方米左右(含外門庭); 建筑高度:14.28米(含屋頂); 設計功能: 一層戶型設計:客廳、廚房、餐廳、主臥(帶衛生間)、臥室、衛生間; 二層戶型設計:起居室、臥室(衛生間)、臥室(帶衛生間,衣帽間)、臥室x2、衛生間; 三層戶型設計:主臥(帶衛生間、衣帽間)、次臥、書房、休閑廳、衛生間、露臺*2;
一層平面圖
二層平面圖
第三套
正面效果圖
鳥瞰圖
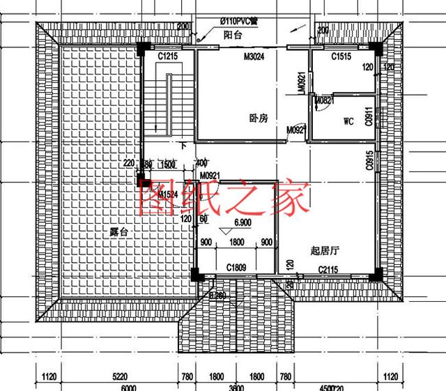
背面效果圖 占地面積:12.0m*13.5m,一層占地160平方米左右; 建筑高度:11.2米(含屋頂); 設計功能: 一層別墅戶型:門廳、客廳、廚房、餐廳、臥室(帶衛生間)、臥室、衛生間、儲藏室; 二層別墅戶型:休閑區、臥室(帶書房、衣帽間、衛生間)、兒童房(帶衛生間)、臥室、露臺; 三層別墅戶型:臥室×2、洗衣間、大露臺;
一層平面圖
二層平面圖
三層平面圖 第四套
別墅效果圖 占地面積:17.7m*11.3m,200平方米左右 建筑高度:12.60米(含屋頂); 設計功能: 一層別墅戶型:客廳(兼餐廳)、主臥(帶衛生間)、臥室x2、廚房、衛生間、儲藏間; 二層別墅戶型:客廳、主臥套間(帶衛生間和書房)、臥室x2、衛生間、陽臺x3; 三層別墅戶型:影音娛樂廳(健身房)、客房x2、儲藏間、衛生間、大露臺x2、陽臺;
一層平面圖
二層平面圖
三層平面圖 第五套
別墅效果圖 占地面積:11.5m*12.5m,140平方米左右; 建筑高度:12.51米(含屋頂); 設計功能: 一層別墅戶型:客廳、餐廳、廚房、衛生間、臥室、車庫;(車庫可以改成臥室或儲藏間) 二層別墅戶型:主臥(帶衛生間)、臥室x2、書房、娛樂室、衛生間; 三層別墅戶型戶型展示:起居室、主臥、次臥、書房、大露臺;
一層平面圖
二層平面圖
三層平面圖 第六套
別墅效果圖 占地面積:14.1m*12.9m,180平方米左右; 建筑高度:12.5米(含屋頂); 設計功能: 一層別墅戶型:門廳、客廳、餐廳、廚房、老人房(主臥)、衛生間、棋牌室(次臥); 二層別墅戶型:起居室(小客廳)、主臥(帶衣帽間、衛生間)、臥室x2、衛生間; 三層別墅戶型:起居室(客廳)、主臥(帶衣帽間、帶衛生間)、書房、大露臺;
一層平面圖
二層平面圖
三層平面圖
圖紙之家-專注農村別墅/自建房設計18年,集合國內200余位經驗豐富的設計師,被評為口碑最好的農村建筑設計公司! |

大氣自建三層雙拼別墅戶型圖方案,完美的戶型就是它
占地:287平方米
2026最新兄弟簡歐雙拼別墅設計圖紙,單戶130平米左右
占地:260平方米
鄉下建房一層半戶型圖,占地160平米,帶閣樓
占地:多種戶型
鄉村自建獨棟三層別墅樓房設計圖,預算30萬內
占地:120平方米
小L型新款二層別墅設計圖,復式客廳旋轉樓梯,14米乘13米
占地:182平方米
現代三層復式小別墅設計圖及外觀圖片,25萬造價
占地:105平方米
200多平方米新農村雙拼別墅設計圖紙,堂屋和樓梯共用
占地:207平方米左右
二層歐式農村小別墅設計圖,9.5米乘13米,戶型好到鄰居求圖紙
占地:118.32平方米
農村五開間大平層設計圖,主體15萬就能建。
占地:182.43平方米
新農村三層房屋設計圖紙(含效果圖),農村小別墅圖紙推薦
占地:116.15平方米
12米×10米左右一層別墅平房戶型圖及設計圖,造價低
占地:110平方米
230平方米新農村二層自建別墅設計圖紙帶外觀圖,20X11米
占地:227平方米
三層現代別墅設計圖紙,全套私人別墅圖紙(含外觀效果圖)
占地:170.38平方米
簡約實用農村自建房戶型圖,美觀經濟又通透,南北通透住得爽!
占地:160.6平方米
帶架空層的一層自建房太香了!防潮、停車、儲物全兼顧
占地:152.06平方米
豪華三層別墅設計圖紙,全套施工方案帶效果圖
占地:130平方米
新農村二層帶庭院的小別墅設計圖及效果圖
占地:137平方米
新農村二層住宅設計圖紙,簡單別墅設計圖(含效果圖)
占地:77.6平方米
100平左右鄉下三層樓房設計圖,戶型方正,小面積宅基地的福音
占地:100平方米
不帶廚房的一層別墅設計圖,三臥二廳超巴適,室外獨立廚房
占地:120平方米
推薦:10套新農村自建房設計圖,2026年最新設計
閱讀次數:4825737次
100套鄉村別墅圖片大全,2026年最新設計
閱讀次數:2492203次
6款農村蓋一層平房的設計圖,10萬元就能建起來
閱讀次數:1852637次
這11個一層農村自建房別墅火爆了朋友圈!我最喜歡戶型十!你呢
閱讀次數:750268次
農村6萬元建一層小別墅圖,你敢相信嗎
閱讀次數:567686次
農村5萬塊就能自建房,6套普通房子設計圖分享,你沒看錯!
閱讀次數:419410次
8套農村漂亮三間平房圖片,非常適合在農村修建!
閱讀次數:411197次
農村自建房化糞池怎么做?附方案及施工過程
閱讀次數:391783次
農村一層三間平房設計圖,告別土氣養老房,讓人忍不住點贊
閱讀次數:350581次
新農村二層樓房圖片造價12萬,挑一套回家建房吧!
閱讀次數:349126次
