
|
我們每個人都希望父母能夠安享晚年,不要老來還在忙碌,勞累;我們也并不想看到他們年邁勞累的身影!但是很多父母都是閑不住的,也不習慣大城市的生活,所以我們最好的孝敬方法就是給他們在農村建一棟中式四合院,讓他們喝喝茶,種種花,看看景安享晚年! 第一套:一層帶堂屋,農村房子的必須功能;二層大露臺,很適合老人活動養養花,曬曬太陽! 占地尺寸:21.6*17.3米 占地面積:241.59平方米 建筑面積:433.1平方米 結構類型:磚混結構 主體造價:35-45萬左右
第二套:一層有小院,在院子里種種樹,養養家禽父母肯定喜歡;二層有大露臺,喝茶,晾曬賞景最適合不過了! 占地尺寸:21X21米 占地面積:442平方米 建筑面積:600平方米 結構類型:框架結構 造價預算:60-72萬左右
第三套:帶大院子的中式四合院別墅。一層有堂屋,衣帽間,挑空客廳,適合有兩兄弟的家庭;二層到大露臺。 占地尺寸:26.4X16.4米 占地面積:423平方米 建筑面積:629平方米 結構類型:框架結構 主體造價:63-75萬左右
第四套:二層坡屋頂中式四合院。一層帶小院,堂屋;二層帶露臺。 占地尺寸:22.84X19.24米 占地面積:358.56平方米(不帶院子) 占地面積:437.76平方米(帶院子) 建筑面積:626.4平方米(不帶院子) 建筑面積:756.6平方米(帶院子) 結構類型:磚混結構 主體造價:60-75萬左右
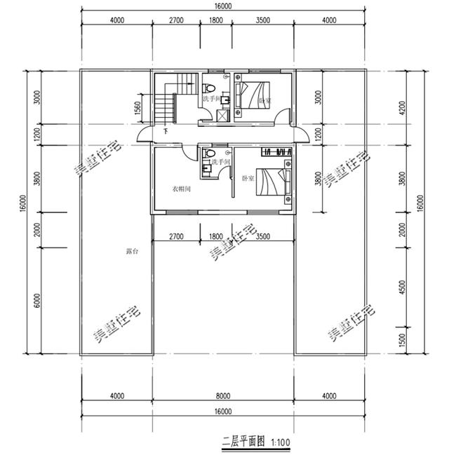
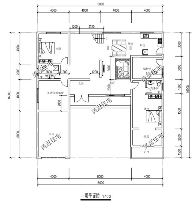
第五套:新中式風格四合院別墅。一層帶有車庫,娛樂廳,鍋爐房,書房,臥室特別適合農村舒適的慢生活;二層帶衣帽間,大露臺。 占地尺寸:16X16米 占地面積:160平方米 建筑面積:320平方米 結構類型:磚混結構 造價預算:30萬左右
![]()
圖紙之家-專注農村別墅/自建房設計18年,集合國內200余位經驗豐富的設計師,被評為口碑最好的農村建筑設計公司! |

鄉村高檔四層別墅樓設計圖,二三層復式挑空客廳
占地:148.992平方米
新農村二層帶露臺經濟型小別墅設計圖紙,含外觀效果圖
占地:120平方米
新中式二層雙拼別墅農村自建房子設計圖紙,面寬19米
占地:240平方米左右,單
新農村小開間三層樓房設計圖,占地100平米左右
占地:多種戶型
兩開間自建別墅設計圖,占地小造型簡約,不愁宅基地面寬小了
占地:118.4平方米
面寬不到10米的小戶型自建房戶型圖,全套設計圖紙可施工
占地:123.2平方米左右
100平左右鄉下三層樓房設計圖,戶型方正,小面積宅基地的福音
占地:100平方米
鄉村兄弟二層小戶型雙拼房屋別墅設計圖,造價低,面積小
占地:多種戶型
新農村二層自建房設計圖帶外觀圖片,自建戶型大全
占地:160平方米
最美二層樓別墅圖片大全及全套建筑設計圖紙,20萬左右
占地:140平方米
四層復式別墅設計方案,外觀氣派布局實用,舒適宜居美極了!
占地:204.64平方米
簡單漂亮實用的三層自建房設計圖,帶露臺,占地170平方米
占地:170平方米
新農村兩層半小洋樓房設計圖,預算33萬左右
占地:多種戶型
13x13米簡單二層帶閣樓最新別墅設計圖,精致美觀
占地:158.5平方米
簡歐風格三層別墅設計圖,外觀看起來很高端、上檔次
占地:139平方米
11x13米兩層半現代風別墅設計圖,??看過的都后悔建早了!
占地:126.02平方米
新農村140平米樓房圖四層獨棟別墅設計圖,簡歐外觀風格設計
占地:141平方米
兩層半30萬農村自建房別墅設計圖紙,客廳挑空,帶大露臺
占地:130平方米
農村4間2層樓房設計圖,戶型方正,四平八穩的二層農村別墅
占地:180平方米
一層半房屋別墅設計圖,帶閣樓圖、帶露臺,外觀新穎時尚
占地:130平方米
推薦:10套新農村自建房設計圖,2026年最新設計
閱讀次數:4825737次
100套鄉村別墅圖片大全,2026年最新設計
閱讀次數:2492203次
6款農村蓋一層平房的設計圖,10萬元就能建起來
閱讀次數:1852637次
這11個一層農村自建房別墅火爆了朋友圈!我最喜歡戶型十!你呢
閱讀次數:750268次
農村6萬元建一層小別墅圖,你敢相信嗎
閱讀次數:567686次
農村5萬塊就能自建房,6套普通房子設計圖分享,你沒看錯!
閱讀次數:419410次
8套農村漂亮三間平房圖片,非常適合在農村修建!
閱讀次數:411197次
農村自建房化糞池怎么做?附方案及施工過程
閱讀次數:391783次
農村一層三間平房設計圖,告別土氣養老房,讓人忍不住點贊
閱讀次數:350581次
新農村二層樓房圖片造價12萬,挑一套回家建房吧!
閱讀次數:349126次
