圖紙介紹:本方案兩個戶型,B戶型介紹及戶型展示往下拉。新農村兩層半小洋樓房設計圖,預算33萬左右,注意:本設計為獨立廚房,如果需要廚房,茶藝區施工時可以做為廚房,典型的歐式風格小別墅,外觀時尚大氣,外墻采用了真石漆處理墻面,室內一二層分別設置了客廳,窗戶也是大落地窗,屋頂的紅瓦洋氣十足。蓋一幢這樣的房子,一定能在鄉親們面前感覺倍兒有面子。
占地面積:10.76m*10.5m,118平方米左右;
建筑層高:三層;
建筑高度:11.2米(含屋頂);
設計功能:
一層戶型:門廳、客廳、茶藝區、餐廳、臥室(帶衛生間)、臥室、洗衣房、衛生間;
二層戶型:客廳、臥室x2、臥室(帶衛生間衣帽間)、衛生間、露臺;
三層戶型:臥室(帶衣帽間)、臥室、衛生間、陽臺、露臺;
圖紙目錄:
建 筑 圖:建筑設計說明、一層平面圖、二層平面圖、三層平面圖、屋頂平面圖、正立面圖、背立面圖、左立面圖、右立面圖、1-1剖面圖、樓梯大樣圖、門斗大樣圖、節點大樣圖、門窗詳圖、門窗表等;
結 構 圖:結構設計說明、基礎平面布置圖、基礎大樣圖、一層梁結構平面圖、二層梁結構平面圖、三層梁結構平面圖、屋頂梁結構平面圖、二層板結構平面圖、三層板結構平面圖、屋面板結構平面圖、樓梯大樣圖、節點大樣圖等;
給排水圖:給排水設計說明、一層給排水平面圖、二層給排水平面圖、三層給排水平面圖、屋頂給排水平面圖、衛生間大樣圖、給排水系統圖等;
電 氣 圖:電氣設計說明、配電系統圖、弱電系統圖、配電干線系統圖、一層照明平面圖、二層照明平面圖、三層照明平面圖、一層插座平面圖、二層插座平面圖、三層插座平面圖、一層弱電平面圖、二層弱電平面圖、三層弱電平面圖、接地平面圖、屋頂防雷平面圖等;
本套方案包含全套A3設計圖+彩色效果圖。






B戶型展示
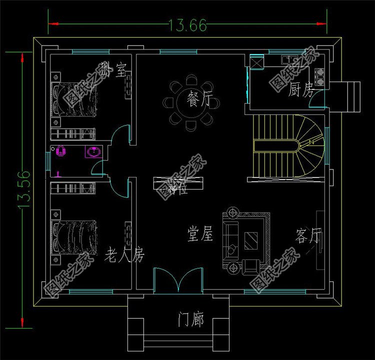
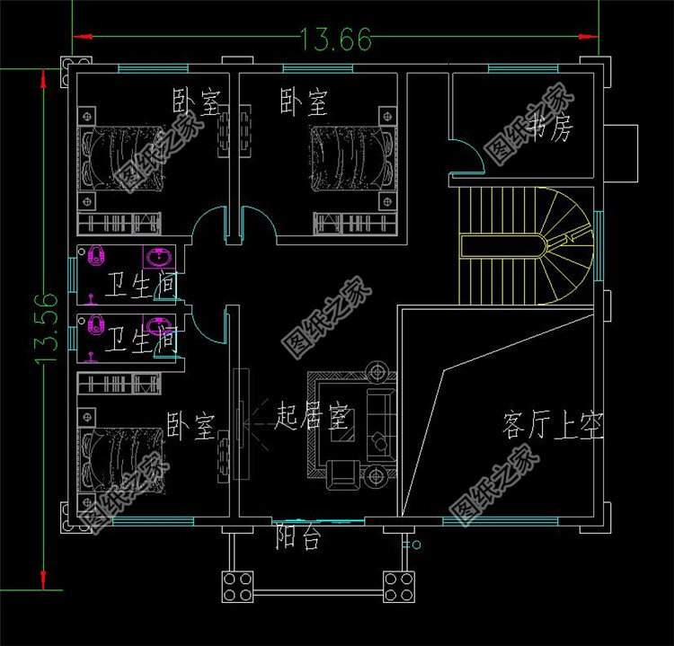
占地面積:13.66m*13.56m,166.8平方米;
建筑層高:三層;
建筑結構:磚混結構;
主體造價:32萬左右;
建筑高度:12.905米(含屋頂);
設計功能:
一層戶型:堂屋、客廳、餐廳、廚房、臥室x2、衛生間;
二層戶型:客廳上空、起居室、臥室(帶衛生間)、臥室X2、書房、衛生間、陽臺;
三層戶型:臥室X2、衛生間、露臺、陽臺;



































































































