
|
農村自建房,不可能每個人家的宅基地情況都那么理想。有時候經常是小面寬,甚至是5、6米的面寬也很常見。這時候不僅是外觀,室內布局的合理性也很重要,要充分考慮到采光和通風。今天帶來這10套小面寬戶型,占地百來平,面寬5~9米不等,趕緊看看有沒有合適自己的吧! 第1套:雖是小面寬,但這棟歐式洋樓卻并不顯局促,簡潔的立面設計,加之溫馨的配色,更合適鄉村自建。
占地尺寸:7.2m*12.2m 占地面積:88㎡ 建筑面積:240㎡ 總 高 度:11.9m 建筑情況:共設5室 2廳 3衛 1廚 1起居室 1書房 1衣帽間 1活動區 1陽臺 1露臺
第2套:時尚的現代風格,建筑立面通過線條凸出了別墅的層次感,擺脫了小面寬別墅造型的局限。
占地尺寸:4.5m*6.5m 占地面積:32.7㎡ 建筑面積:95㎡ 總 高 度:9m 建筑情況:共設2室 2廳 2衛 1廚 1健身區 1陽臺 1露臺
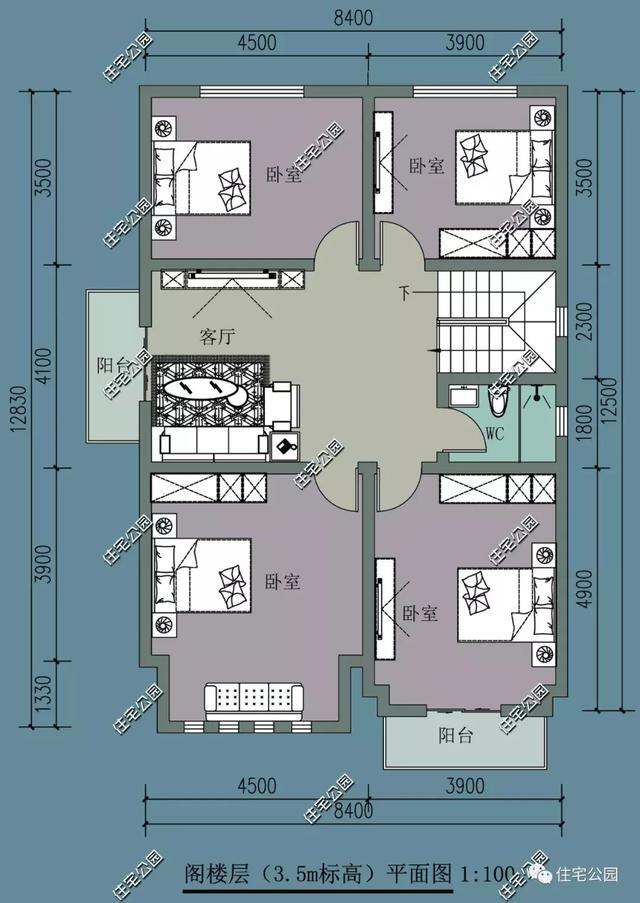
第3套:不僅僅是面寬限制,更適合那些對于建房層高有限制的地區,還能很好的控制建房成本。
占地尺寸:8.4m*12.5m 占地面積:113.5㎡ 建筑面積:227.5㎡ 總 高 度:8.9m 建筑情況:共設 6室 2衛 2廳 1廚 1餐廳 2陽臺
第4套:面寬限制大部分都是臨街宅基地,一層作為商鋪設計則是最好的選擇,用作出租或是自家商用,安居又樂業!
占地尺寸:8.04m*15.7m 占地面積:111.76㎡ 建筑面積:335㎡ 總 高 度:13.7m 建筑情況:共設7室 1廳 3衛 2廚 1商鋪 2陽臺
第5套:不用太大的宅基地,也能建出心儀的中式別墅。完全對稱的設計,造型四平八穩,符合農村朋友的審美。
占地尺寸:8.1m*11.5m 占地面積:97.91㎡ 建筑面積:249.89㎡ 總 高 度:10.9m 建筑情況:共設5室 3廳 5衛 1廚 1入戶平臺 1書房 2陽臺 1露臺 1活動室 1起居室
第6套:除開小面寬,這套戶型最大特點是兩側無窗,是農村最典型的宅基地情況。多設落地窗,增加室內的采光通風。
占地尺寸:5m*17.6m 占地面積:88㎡ 建筑面積:229㎡ 總 高 度:13.6m 建筑情況:共設3室 2廳 3衛 1廚 1起居室 2陽臺 2露臺
第7套:相較于前幾套小戶型,這套別墅面積更加充裕。
占地尺寸:9m*13.2m 占地面積:117.54㎡ 建筑面積:316.78㎡ 總 高 度:12.4m 建筑情況:共設7室 1廳 3衛 1廚 1中堂 1起居室 1陽臺 1露臺
第8套:面寬僅有5米也能設計出好戶型,通過層數盡量增加使用面積,外觀則為時尚簡約的現代風,不易過時。
占地尺寸:5.5m*18m 占地面積:99㎡ 建筑面積:396㎡ 建筑情況:共設4室 3廳 5衛 1廚 1前院 1起居室 1書房 1陽臺 1露臺
第9套:這套小面寬別墅造型很是亮眼,棕紅色與藍色屋頂搭配,充滿田園風情,讓人一見傾心。
占地尺寸:9m*11.7m 占地面積:102㎡ 建筑面積:288㎡ 總 高 度:10.5m 建筑情況:共設4室 2廳 5衛 1廚 1玄關 1起居室 1棋牌室 1書房 1健身房 1休閑室 1露臺
第10套:用不同的裝飾材料彰顯出建筑立面的層次感,現代簡約風格,內斂經典。
占地尺寸:8.74m*13.2m 占地面積:114.54㎡ 建筑面積:232.54㎡ 總 高 度:9.3m 建筑情況:共設5室 3廳 2衛 1廚 1露臺
![]()
圖紙之家-專注農村別墅/自建房設計18年,集合國內200余位經驗豐富的設計師,被評為口碑最好的農村建筑設計公司! |

80-90平米自建樓房設計圖,農村小別墅經典戶型圖
占地:86平方米
農村三層私人住宅設計圖紙及效果圖,帶車庫,帶露臺
占地:150平方米
140平米平屋頂二層新農村自建房設計圖,極簡主義設計 ,實用優
占地:143平方米
160平方農村三層別墅CAD設計圖紙,含外觀圖片效果圖
占地:156平方米
180平方米新農村雙拼戶型別墅房屋設計圖紙帶外觀圖17X11米
占地:180平方米
漂亮實用三層自建別墅設計圖紙,超高的性價比
占地:160平方米
帶地下室+挑空客廳,農村三層洋樓別墅誰家圖在
占地:97.74平方米
大氣農村三層歐式雙拼別墅全套施工圖紙,帶堂屋設計,外觀圖片
占地:196.056平方米
新農村復試兩層半樓房設計圖,帶大露臺,簡單經濟實用大氣
占地:190平方米
預算20萬左右三層別墅設計圖紙,新農村自建房推薦
占地:118平方米
90平農村自建房二層新款,占地不大但很實用,
占地:88平方米
全網都在抄的二層別墅!爆款12米面寬設計戶型太實用
占地:139.51平方米
時尚創意型二層小別墅設計圖,占地面積110平方米,外觀清新典雅
占地:110平方米
農村二層半別墅圖片大全,二層半別墅設計圖推薦
占地:160平方米
農村二層帶閣樓四間別墅設計圖,外觀美觀,戶型實用
占地:175平方米
最新小別墅設計圖,復式三層,外觀非常漂亮
占地:158平方米
12×11米兩層農村建房圖紙,農村建房最佳戶型,簡單的風格
占地:140平方米
新農村自建20萬二層小樓外觀圖及戶型圖,簡單大方,漂亮接地氣
占地:130平方米
平屋頂12米寬別墅三層設計圖,平頂照樣建的漂亮
占地:129.6平方米
簡歐式三層小別墅設計圖,帶地下室,客廳中空,占地150平米
占地:150平方米
推薦:10套新農村自建房設計圖,2026年最新設計
閱讀次數:4825737次
100套鄉村別墅圖片大全,2026年最新設計
閱讀次數:2492203次
6款農村蓋一層平房的設計圖,10萬元就能建起來
閱讀次數:1852637次
這11個一層農村自建房別墅火爆了朋友圈!我最喜歡戶型十!你呢
閱讀次數:750268次
農村6萬元建一層小別墅圖,你敢相信嗎
閱讀次數:567686次
農村5萬塊就能自建房,6套普通房子設計圖分享,你沒看錯!
閱讀次數:419410次
8套農村漂亮三間平房圖片,非常適合在農村修建!
閱讀次數:411197次
農村自建房化糞池怎么做?附方案及施工過程
閱讀次數:391783次
農村一層三間平房設計圖,告別土氣養老房,讓人忍不住點贊
閱讀次數:350581次
新農村二層樓房圖片造價12萬,挑一套回家建房吧!
閱讀次數:349126次
