
|
隨著經濟的發展,人們的生活水平也越來越高。現在好多農村自建房的人都選擇建別墅,按照自己喜歡的風格、需要的功能設計別墅,建成之后悠閑自在的享受生活。 下邊給大家介紹5套農村四層別墅,外觀新穎、功能齊全,這樣的別墅全村的都羨慕。 第一套
正面效果圖
鳥瞰圖
背面效果圖 占地面積:10.0m*9.0m,90平方米左右; 建筑高度:15.62米(含屋頂); 一層戶型設計:大廳、客廳、廚房、餐廳、衛生間、小臥室x2(可以合并為一個大臥室); 二層戶型設計:客廳、主臥(帶衛生間)、臥室、衛生間、陽臺x2; 三層戶型設計:客廳、臥室x2、衛生間、陽臺x3; 四層戶型設計:臥室、衛生間、大露臺、陽臺;
一層平面圖
二層平面圖
三層平面圖
四層平面圖 第二套
正面效果圖
鳥瞰圖
背面效果圖 占地面積:13.5m*11.0m,140平方米左右; 建筑高度:15.7米(含屋頂); 一層戶型設計:客廳、餐廳、廚房、臥室×2、棋牌室、衛生間; 二層戶型設計:客廳、廚房、餐廳、臥室(帶衛生間)、臥室×3、衛生間、露臺,陽臺; 三層戶型設計:同二層一樣; 四層戶型設計:臥室x2、健身區、露臺;
一層平面圖
二、三層平面圖
四層平面圖 第三套
正面效果圖
鳥瞰圖
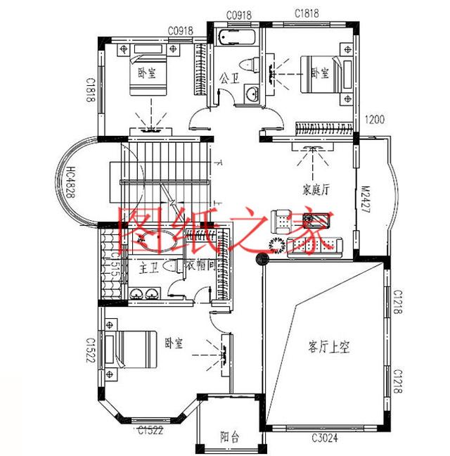
背面效果圖 占地面積:11.6m*12.6m,130平方米左右; 建筑高度:16.4米(含屋頂); 一層戶型設計:客廳、餐廳、廚房、臥室、車庫、衛生間、儲藏間; 二層戶型設計:客廳上空、臥室(帶化妝間,浴室,露臺)、臥室(衛生間); 三層戶型設計:客廳、主臥(帶衛生間)、臥室(帶書房、露臺)臥室、衛生間、露臺; 四層戶型設計:同三層一樣;
一層平面圖
二層平面圖
三、四層平面圖 第四套
正面效果圖
背面效果圖 占地面積:11.70m*15.10m,170平方米左右; 建筑高度:17.95米(含屋頂); 一層戶型設計:大廳、餐廳、廚房、衛生間、主臥(帶衛生間和衣帽間)、車庫; 二層戶型設計:客廳、主臥(帶衛生間和衣帽間)、臥室、健身房、棋牌室、衛生間、儲藏間; 三層戶型設計:客廳上空、主臥(帶衛生間和衣帽間)、臥室、起居室、書房、衛生間; 四層戶型設計:大餐廳(聚會專用)、廚房、衛生間、室內大露臺、休閑亭; 屋頂戶型設計:景觀涼亭、室外大露臺;
一層平面圖
二層平面圖
三層平面圖
四層平面圖
屋頂平面圖 第五套
別墅效果圖一
別墅效果圖二 占地面積:15.50m*11.00m,170平方米左右; 建筑高度:15.57米(含屋頂); 一層戶型設計:客廳、休閑廳(可以加隔斷)、餐廳、廚房、主臥(帶衛生間)、衛生間; 二層戶型設計:客廳上空、客廳、主臥(帶衣帽間和衛生間)、臥室x2、衛生間、陽臺; 三層戶型設計:活動廳(客廳)、主臥(帶衣帽間和衛生間)、臥室x2、衛生間、書房、露臺; 四層戶型設計:健身房、臥室、書房、陽光房、衛生間、露臺;
一層平面圖
二層平面圖
三層平面圖
四層平面圖 這幾套別墅的設計圖,你最喜歡哪一套? 我們提供數千套自建別墅設計圖,讓您建房無憂。需要查看詳情或更多圖紙請關注【圖紙之家】或點擊下面圖片。 圖紙之家-專注農村別墅/自建房設計18年,集合國內200余位經驗豐富的設計師,被評為口碑最好的農村建筑設計公司! |

面寬8米多小開間三層農村別墅設計圖,占地不足百平
占地:95.21
農村兄弟雙拼平房別墅設計圖,獨門獨戶,一層也能建雙拼
占地:274.18平方米
私人別墅房屋cad施工設計圖,造型精致、美觀
占地:105平方米
新款鄉村二層半別墅設計圖紙帶效果圖,三層別墅外觀圖片大全
占地:108.795平方米
165平方米三層雙拼農村房屋設計圖大全14x12
占地:168平方米
12米×10米左右一層別墅平房戶型圖及設計圖,造價低
占地:110平方米
復式樓房二層農村別墅圖,村里建一棟絕對人人都羨慕
占地:130.2平方米
170平方米新農村實用的三層雙拼設計圖紙,帶公用堂屋!
占地:173.62平方米
漂亮實用的新農村二層小樓圖,造價20萬左右,超大景觀露臺
占地:130平方米
時尚典雅歐式三層自建房設計圖,美觀大氣簡單舒適,好看到沒得
占地:153.12平方米
小面寬的農村簡單四層2建平屋頂別墅設計圖,農村自建房首選
占地:109.29平方米
13×16米農村自建樓房三層別墅戶型設計圖,大氣
占地:168平方米
農村16萬一層平房小院設計圖,左右對稱布局好,南北方都能建
占地:195.9平方米
300平方二層別墅四合院設計圖紙方案(效果圖+施工圖)
占地:332平方米
三層現代平頂別墅設計圖,簡約時尚百看不厭,外觀令人驚艷!
占地:125.142平方米
簡單大方四間二層小樓房設計圖,帶車庫,帶大露臺
占地:180平方米
150平米一層農村別墅設計圖,養老自住都很不錯,關鍵是造價也很
占地:156平方米
四層豪華別墅設計圖及效果圖,高端房屋設計方案
占地:250平方米
適合農村建的二層別墅設計圖,簡約美觀,讓人心動不已
占地:153平方米
120平米農村房屋設計圖,造價20萬左右,別墅造型結構精致
占地:120平方米
推薦:10套新農村自建房設計圖,2026年最新設計
閱讀次數:4825737次
100套鄉村別墅圖片大全,2026年最新設計
閱讀次數:2492203次
6款農村蓋一層平房的設計圖,10萬元就能建起來
閱讀次數:1852637次
這11個一層農村自建房別墅火爆了朋友圈!我最喜歡戶型十!你呢
閱讀次數:750268次
農村6萬元建一層小別墅圖,你敢相信嗎
閱讀次數:567686次
農村5萬塊就能自建房,6套普通房子設計圖分享,你沒看錯!
閱讀次數:419410次
8套農村漂亮三間平房圖片,非常適合在農村修建!
閱讀次數:411197次
農村自建房化糞池怎么做?附方案及施工過程
閱讀次數:391783次
農村一層三間平房設計圖,告別土氣養老房,讓人忍不住點贊
閱讀次數:350581次
新農村二層樓房圖片造價12萬,挑一套回家建房吧!
閱讀次數:349126次
