
|
農村里,其實還是蠻多,外形建的一般的房子,不過那都是很早前建的了,不同時期,不一樣,當然不能強求。現在農村建房,不僅建筑外形要好看,室內布局要合理,室內裝修同樣也要美美噠,這樣才能對得起花這么多錢建起的一棟別墅呀!今天小編就帶大家一起來看看這棟宮殿式別墅的室內室外! 別墅效果圖: 這棟三層別墅,外形很高級,滿滿的宮殿式別墅感,外立面色彩采用褐色和米色系,時尚又不容易淘汰,坡屋頂的紅色系給予整棟別墅以點綴。外墻造型感強,羅馬柱、雕花、墻邊都充分體現了這一點。南面采用大玻璃窗設計,不僅外看美觀,室內采光還很優越,左側客廳的大面積落地窗設計很搶眼!
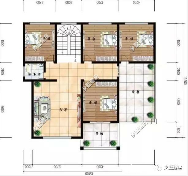
基礎信息 占地尺寸:15.1x13.2米; 占地面積:184.5平方米; 建筑面積:486.3平方米; 建筑高度:13米; 結構類型:框架結構; 主體造價參考:55萬左右; 一層平面圖: 設有:挑空客廳、門廳、衛生間、次臥、廚房、餐廳、老人套房。臺階上來入戶,進門是門廳(設墻,一眼看不見室內,家庭設計更隱私),右側是挑空客廳(寬敞又大氣)、公衛、次臥。右側是老人套房(套內設立獨立衛生間,更方便老人住家,老人房房門在一入戶旁邊,出門回家更方便),廚房、餐廳,廚房和餐廳相鄰,方便用餐、取餐。餐廳和次臥之間是樓梯,因為設有墻體,樓梯下可以作為儲藏室儲藏物品。
二層平面圖: 設有:主臥、3次臥、客廳、雙衛、陽臺、挑空客廳上空。二層是居住層,設4室1廳2衛,可以滿足家庭多人住家。雙衛的設計,方便家里多人同住一層。
三層平面圖: 設有:主臥、3次臥、客廳、獨衛、露臺。三層和二層一樣,也是四個臥室,相比較客廳要大一些,然后多一個大露臺。
這棟別墅,共計10個臥室,一般家庭住家是沒有這么多人住一起的,所以二層和三層,北面的小臥室,可以根據自己需求,改成書房、棋牌室、健身房等等。 下面是一組室內裝修實景圖,供大家裝修參考: 主臥一:
主臥二:
兒童房:
次臥:
客廳一:
客廳二:
客廳三:
客廳四:
茶室:
餐廳一:
餐廳二:
餐廳三: 圖紙之家-專注農村別墅/自建房設計18年,集合國內200余位經驗豐富的設計師,被評為口碑最好的農村建筑設計公司! |

鄉村最美三層別墅設計圖自建房戶型,外觀圖精致漂亮
占地:134平方米
五開間農村豪華三層別墅設計圖,大格局大氣派,大家庭建房首選
占地:227.04平方米
140平方米新農村四層房屋設計圖紙,農村自建推薦
占地:140平方米
一層農房別墅設計圖紙,140平方米,面寬15米
占地:140平方米
一層中式七字型房屋設計圖,帶院子經典設計,耐看不過時
占地:163.18平方米
預算30萬三層樓房設計圖含效果圖,戶型經典
占地:125平方米
建一棟就成了村里的門面擔當!三層歐式別墅,左右對稱太氣派
占地:173.67平方米
農村七字形獨棟一層別墅設計圖,設計感十足
占地:274.51平方米
高端大氣的三層新中式合院別墅設計圖紙及外觀效果圖
占地:203.4平方米
架空層的一層三合院別墅設計圖紙,這樣設計太贊了
占地:172.06平方米
300平大戶型豪華三層別墅設計圖,帶總統套房
占地:300平方米
155平方米新三層全套別墅設計資料,15x10米
占地:158平方米
現代三層復式小別墅設計圖及外觀圖片,25萬造價
占地:105平方米
2026年新款一層住宅別墅設計圖紙,中式風格漂亮極了
占地:207平方米
125平自建房設計圖二層戶型,建房選這款準沒錯
占地:124.04平方米
110平米一層小別墅設計方案,布局四室兩廳一廚兩衛
占地:110.5平方米
2款帶露臺農村別墅設計圖二層精選,造價超值性價比
占地:多戶型可選
130平方米復式三層別墅房屋設計圖,含外觀效果圖
占地:130平方米
簡單二層農村別墅設計圖,占地適中,簡約造型,實用又經濟!
占地:128.4平方米
二層歐式小別墅設計方案,全套建筑設計圖紙+外觀效果圖
占地:146平方米
推薦:10套新農村自建房設計圖,2026年最新設計
閱讀次數:4825737次
100套鄉村別墅圖片大全,2026年最新設計
閱讀次數:2492203次
6款農村蓋一層平房的設計圖,10萬元就能建起來
閱讀次數:1852637次
這11個一層農村自建房別墅火爆了朋友圈!我最喜歡戶型十!你呢
閱讀次數:750268次
農村6萬元建一層小別墅圖,你敢相信嗎
閱讀次數:567686次
農村5萬塊就能自建房,6套普通房子設計圖分享,你沒看錯!
閱讀次數:419410次
8套農村漂亮三間平房圖片,非常適合在農村修建!
閱讀次數:411197次
農村自建房化糞池怎么做?附方案及施工過程
閱讀次數:391783次
農村一層三間平房設計圖,告別土氣養老房,讓人忍不住點贊
閱讀次數:350581次
新農村二層樓房圖片造價12萬,挑一套回家建房吧!
閱讀次數:349126次
