
|
現在,商品房的普遍戶型結構是兩居室或三居室,因為這符合一般的三口之家或三世同堂的住房需求,可如果對于二胎家庭呢,又或者家里留客了呢?那就只能擠一擠了。所以,我們在設計自建房戶型時,一定要考慮住房的多種情況,除了棋牌室、健身房等高級設置,至少要預留五間臥室,這樣才能夠住。本期我們就推薦這樣的兩款設計方案,5+1的房間布局非常適合農村家庭,這可比商品房的三室兩廳實用多了。 第一款:
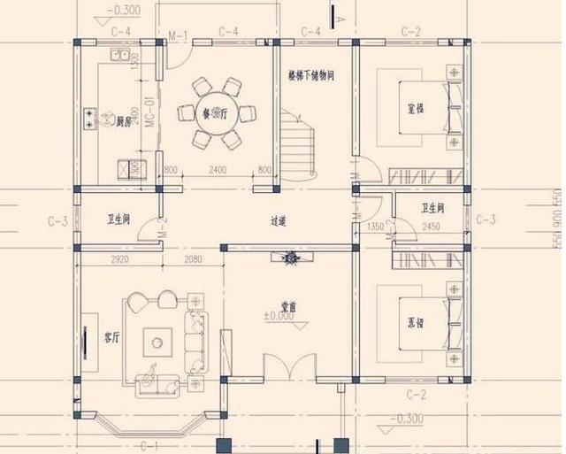
帶車庫的二層精致小別墅,帶小涼亭和小露臺,建筑設寬大的門廳,一旁的時尚型飄窗設計很驚艷,橙色的屋頂和屋檐,真石漆的整體外墻,咖色的建筑基線,整體裝飾簡潔大方;建筑設計尺寸:開間13.5米,進深11.5米,建筑占地145.6平米。
建筑入戶設堂屋,是主要的待客之所,東側設兩間臥室, 中間設公衛使用起來更加便捷,堂屋后設餐廳和廚房,餐廳和堂屋之間用作兩處隔斷,餐廳開后門,建筑最西側設車庫和樓梯間,樓梯下設貯藏室;二層設帶陽臺的客廳和三間臥室,預留一間獨立書房,室外設涼亭和露臺。 第二套:
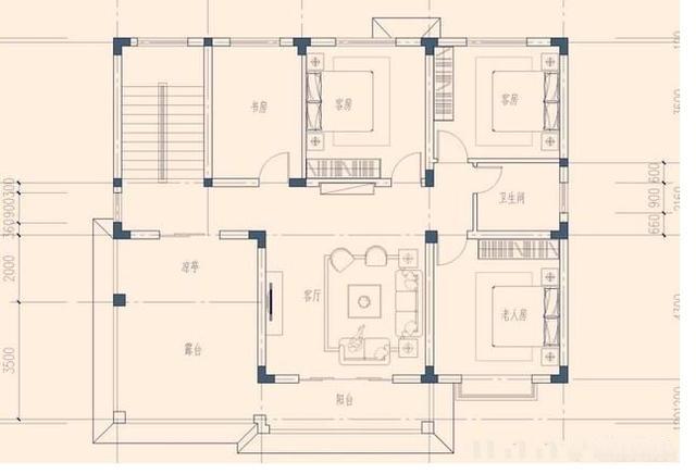
用文化石裝飾的美觀小別墅,二層建筑結構,建筑基線和底層均用深色文化石裝飾,頂層用淺色外墻漆裝飾,門套窗套、門廳、屋檐,均采用相同的裝飾效果,配上藍色的屋頂,整個建筑很有吸引力;建筑設小門樓,帶小八角形落地大窗,造型很時尚;建筑設計尺寸:開間13.3米,進深11.5米,建筑占地167平米。
建筑入戶設堂屋,左側設客廳,堂屋后設寬敞的過道,餐廳、廚房和公衛在客廳同側設計,東側設兩間臥室,陽面臥室自帶衛生間,為了充分利用空間,樓梯下照常做儲藏室;二層設起居室和兩間臥室,陽面臥室為大套房設計,帶書房、衣帽間、陽臺和衛生間,預留一間書房或臥室,起居室帶公用陽臺,陽面設陽光房和小露臺。 兩款設計方案均為五間房的實用級設計,5+1的功能布局能滿足現有大多數家庭的居住需求,建筑的結構簡單,裝飾簡潔,第一款帶車庫和堂屋,第二款帶堂屋和雙套房,都能提高家居環境的舒適性和便利性,涼亭和露臺是不錯的休閑活動之所,整體結構和功能非常接地氣。
圖紙之家-專注農村別墅/自建房設計18年,集合國內200余位經驗豐富的設計師,被評為口碑最好的農村建筑設計公司! |

自建一層農村別墅圖,經濟實用新選擇,建房必備參考戶型!
占地:142.88平方米
七字型設計新中式一層別墅設計圖,類合院風格
占地:267.3平方米
180平方米漂亮大氣三層雙拼別墅設計圖,自建房圖片
占地:186平方米
農村2開間三層經濟別墅設計圖,9.6米面寬,實用布局
占地:127.68平方米
農村二層半樓房設計圖及效果圖,歐式風格
占地:150平方米
新農村簡歐三層樓房圖片自建3層別墅施工設計圖及效果圖
占地:126平方米
農村120平三層樓房設計圖,造型現代,帶屋頂花園
占地:120平方米
農村4開間二層別墅設計圖,帶堂屋帶露臺,進深9米
占地:126平方米左右
鄉村三層別墅CAD建筑設計圖,110平方米戶型,帶效果圖和全套施工
占地:110平方米
160平小開間大進深農村三層別墅設計圖紙
占地:158.73平方米
鄉村仿古一層別墅圖片及設計圖,經典實用,占地170平
占地:170平方米
200平農村二層別墅設計圖,外觀現代簡約
占地:204平方米
14x11米一層平房戶型設計圖,帶前后門設計,好看不貴還實用!
占地:143.59平方米
115平漂亮的三層別墅設計方案,外觀圖片大氣、精致
占地:115平方米
新農村四合院別墅圖片及戶型方案圖,全套圖紙可施工
占地:154平方米左右
2026新款農村四層別墅設計圖紙戶型圖,帶挑空客廳
占地:150平方米
農村2026新式三間二層樓房,12×11.6米,戶型經典,造價實惠
占地:120平方米
新式三層別墅設計圖,客廳中空,占地125平米左右
占地:125平米
面寬13米二層新農村別墅自建房設計圖,功能實用,外觀大氣
占地:168.96平方米
60多平三層現代風格別墅設計圖,小戶型平屋頂
占地:66.4平方米
推薦:10套新農村自建房設計圖,2026年最新設計
閱讀次數:4825737次
100套鄉村別墅圖片大全,2026年最新設計
閱讀次數:2492203次
6款農村蓋一層平房的設計圖,10萬元就能建起來
閱讀次數:1852637次
這11個一層農村自建房別墅火爆了朋友圈!我最喜歡戶型十!你呢
閱讀次數:750268次
農村6萬元建一層小別墅圖,你敢相信嗎
閱讀次數:567686次
農村5萬塊就能自建房,6套普通房子設計圖分享,你沒看錯!
閱讀次數:419410次
8套農村漂亮三間平房圖片,非常適合在農村修建!
閱讀次數:411197次
農村自建房化糞池怎么做?附方案及施工過程
閱讀次數:391783次
農村一層三間平房設計圖,告別土氣養老房,讓人忍不住點贊
閱讀次數:350581次
新農村二層樓房圖片造價12萬,挑一套回家建房吧!
閱讀次數:349126次
