
|
現在農村自建房宅基地審批嚴格,一般能夠申請到的宅基地面積都較小,只修建一層的話過于浪費,四層的話在一些地方是不被允許的,所以二層和三層的戶型剛剛好,造型美觀大氣,造價也不高。今天推薦5套適合大眾的120平二層、三層農村自建房,雖然占地面積有限,但是同樣出類拔萃,讓然過目不忘。 戶型一
設計感極強的歐式風格,底層鋪設文化石耐臟又美觀,建筑線條明朗大氣。戶型設計尺寸:開間10.6米,進深10.83米,占地面積116.44平方米,建筑面積250.88平方米。
一二層總共設計6個臥室,三代同堂沒有絲毫問題,二層貼心設計書房,以及公共露臺,布局清晰明了,結構簡單。 戶型二
該戶型用常見的淺色磁珠做外墻裝飾,映入眼簾的就是大氣的門樓和闊氣的羅馬柱。設計尺寸:開間12.1米,進深9.55米,占地面積124.76平方米,建筑面積246.33平方米。
共設計有3間臥室,一間書房,一層有一個客廳,二層有一個起居室,兩個獨立衛生間,兩個朝南主臥帶內衛,廚房、餐廳和樓梯間的儲物室均有設計,二樓陽臺寬敞明亮。 戶型三
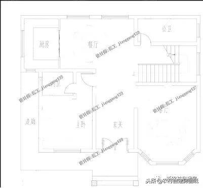
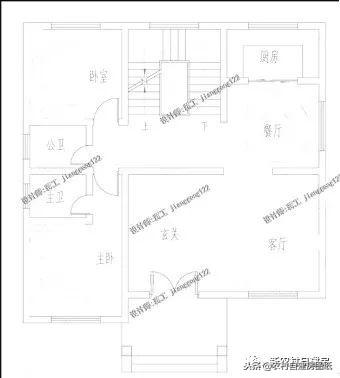
該戶型外形簡單清新,給人溫馨舒適的住家感。外墻大部分使用瓷磚裝飾,屋頂和外墻的顏色分明。入戶設計:開間10.8米,進深9.9米,占地面積119.63平方米,建筑面積245.25平方米。
上下兩層一共設計有5間臥室,一間書房,一層設計儲藏室。上下兩個獨立衛生間,二層主臥帶有內衛,二層兩個陽臺相連,觀景休閑。 戶型四
一款溫馨時尚的二層別墅,配色時尚和諧,造型美觀別致。外面采用真石漆和文化石搭配。簡單大方,大眾接受度高,
室內整體布局簡單實用,采取上卡水平對齊的結構,一定程度上節約造價,像玄關、大氣的挑空客廳、推攔門設計的廚房、帶有內衛的主臥、促進感情交流的起居室,都是新時代農村自建房的標準配置。 戶型五
米白色瓷磚外墻,變化多端的花瓶欄桿,多角度、多造型的玻璃窗設計,別墅不僅采光優良,格調更顯端莊大氣。
室內布局合理舒適,三樓的涼亭看上去有點雞肋,但是這是對生活品質的一種提升,也是一種長遠考慮。 圖紙之家-專注農村別墅/自建房設計18年,集合國內200余位經驗豐富的設計師,被評為口碑最好的農村建筑設計公司! |

性價比超高一層農村自建別墅設計圖,戶型耐看不用爬樓
占地:158.6平方米
農村三間兩層樓房設計圖,帶外觀效果圖
占地:140平方米
經典三層小別墅設計圖紙(效果圖+全套cad建筑圖),新農村自建
占地:120平方米
網紅款兩層別墅圖紙設計圖,外觀簡單好看,后面不開窗
占地:171平方米左右
114平方米農村四層別墅設計圖紙及效果圖,11X11米
占地:114平方米
230平方農村雙拼別墅設計圖,26x11米自建房屋戶型
占地:230平方米
80平方米農村四層房屋設計圖紙及效果圖
占地:80平方米
新農村小洋樓三層別墅戶型設計圖,開間9米,造價25萬
占地:94平方米
私人別墅房屋cad施工設計圖,造型精致、美觀
占地:105平方米
農村二層舒適好房,這款四開間別墅設計圖真的很不錯
占地:220.46平方米
農村15萬元二層小樓設計圖,外觀簡潔、樸素,造價低
占地:138平方米
15萬左右新中式二層別墅設計圖平面圖,占地110平米左右
占地:110平方米
帶車庫新農村二層四間別墅設計效果圖帶全套建筑施工圖,217平方
占地:217.21平方米
130平新農村三層房屋設計圖紙,預算30萬以內,蓋房推薦
占地:132平方米
農村三層雙拼別墅設計圖,帶外觀效果圖,推薦
占地:190平方米
100平方米實用二層半小別墅設計圖紙(帶閣樓層),住著安逸
占地:100平方米左右
私人二層歐式別墅建筑設計圖(效果圖+全套別墅設計方案)
占地:144平方米
農村二層半新中式小別墅設計圖(帶閣樓層),二層半自建房戶型
占地:144平方米
高端大氣三層別墅設計圖,建好就是村里最靚的
占地:120平方米
16米乘12米農村二層別墅設計圖,布局舒適寬敞、客廳挑空
占地:188.18平方米
推薦:10套新農村自建房設計圖,2026年最新設計
閱讀次數:4825737次
100套鄉村別墅圖片大全,2026年最新設計
閱讀次數:2492203次
6款農村蓋一層平房的設計圖,10萬元就能建起來
閱讀次數:1852637次
這11個一層農村自建房別墅火爆了朋友圈!我最喜歡戶型十!你呢
閱讀次數:750268次
農村6萬元建一層小別墅圖,你敢相信嗎
閱讀次數:567686次
農村5萬塊就能自建房,6套普通房子設計圖分享,你沒看錯!
閱讀次數:419410次
8套農村漂亮三間平房圖片,非常適合在農村修建!
閱讀次數:411197次
農村自建房化糞池怎么做?附方案及施工過程
閱讀次數:391783次
農村一層三間平房設計圖,告別土氣養老房,讓人忍不住點贊
閱讀次數:350581次
新農村二層樓房圖片造價12萬,挑一套回家建房吧!
閱讀次數:349126次
