
|
建房子是農村家庭的大事,想必大家在建房的時候,都希望自家的房子漂亮大氣,獨一無二,這樣才花的錢也值,但也有不少人因挑選到不適合自家的需求的戶型,建成了才覺得后悔,此時房子已建成,鋼筋水泥房屋無法重頭再來,悔不當初。 因此,我們要慎重挑選圖紙,找到適合自家的圖紙,下面給大家分享3款30萬以內二層半三層占地面積約110㎡農村自建房全套施工效果圖,一起來看看有沒有合適您家的。 【戶型1】 開間進深:10.6m×10m 占地面積:105.88㎡ 建筑面積:269.91㎡ 結構形式:磚混構 參考造價:23萬元
戶型1
戶型點評 戶型1屬于簡歐設計風格,簡單的歐式設計,帶給人簡潔大氣的視覺感受,超大拱形落地窗設計帶來時尚感,利用多處浮雕裝飾提升設計檔次,讓整棟房子看起來更有質感。設計功能齊全,一層主要設有日常生活所需的功能區域,入餐廳廚房等,二三層則側重臥室的布局,方便而實用。 功能設計: 一層: 前廳、客廳、餐廳、廚房、臥室、衛生間、儲藏室 二層: 主臥室(帶衣帽間、帶衛生間)、2間次臥室、起居室(帶露臺)、衛生間 三層: 臥室(帶衣帽間、帶衛生間)、臥室、衛生間、露臺 平面圖展示
一層平面圖
二層平面圖
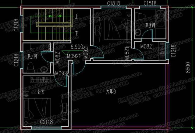
三層平面圖 【戶型2】 開間進深:9.96m×10.56m 占地面積:111.68㎡ 建筑面積:305.6㎡ 結構形式:磚混結構 參考造價:25萬元
戶型2 戶型點評 戶型2也屬于歐式風格,采用比較鮮艷的顏色裝飾,紅色給人熱情洋溢的感覺,鮮艷奪目,有凸窗設計,立體感豐富,四面開窗,室內的采光透氣,共有8間臥室,適合人口多的農村家庭建造。 功能設計: 一層: 客廳、餐廳、廚房、臥室×2、衛生間 二層: 客廳(帶陽臺)、臥室×3、書房、衛生間 三層: 臥室×3、書房、衛生間、露臺 平面圖展示
一層平面圖
二層平面圖
三層平面圖 【戶型3】 開間進深:11.2m×9.9m 占地面積:112.88㎡ 建筑面積:318.6㎡ 結構形式:磚混結構 參考造價:28萬元
戶型3
戶型點評 戶型3設計時尚大氣,融入拱形元素,線條優美,多面體結構設計帶有多扇窗戶,室內采光效果佳,二樓有陽臺,三樓有大露臺,休閑活動空間充足。空間設計上,室內經過合理分區,功能全面,是農村別墅建造的理想設計。 功能設計: 一層: 門廳、廚房、餐廳、衛生間、客廳、主臥室(衣帽間、衛生間) 二層: 兒童房、客廳、衛生間、陽臺、書房、主臥室(衛生間)、臥室 三層: 主臥室(衛生間、陽臺)、書房、兒童房、露臺花園、衛生間 平面圖展示
一層平面圖
二層平面圖 圖紙之家-專注農村別墅/自建房設計18年,集合國內200余位經驗豐富的設計師,被評為口碑最好的農村建筑設計公司! |

一層農村三合院別墅設計方案圖,秀氣優美,大氣又實用
占地:191.18平方米
客廳中空的三層豪華小別墅設計圖,時尚靚麗,鄉下建一棟有面子
占地:171.25平方米
簡約L型一層平房自建房設計圖,經濟實用
占地:145.283平方米
100平米兩間三層樓房設計圖,農村蓋房舒服實用最重要
占地:100平方米
新中式二層農村別墅設計圖紙及外觀圖,面寬15米左右
占地:148.86平方米
三層新農村自建房屋設計圖紙,占地120平米左右
占地:120平方米
歐式二層5大間別墅設計圖,新穎獨特的外觀,面寬20米
占地:180.14平方米
歐式二層別墅平面圖,全套cad設計圖紙和外觀效果圖
占地:202平方米
一層帶閣樓農村別墅設計圖,多得一層可變空間,太值了!
占地:165.89平方米
小戶型二層農村別墅設計圖,占地140平經典漂亮
占地:139.54平方米
四層(三層半)復式別墅設計圖片大全,歐式風格
占地:174平方米
農村4間2層樓房設計圖,帶車庫,外觀時尚,帶屋頂花園
占地:210平方米
帶車庫三間復式三層樓房設計圖,外觀精致、大方
占地:150平方米
兩開間自建別墅設計圖,占地小造型簡約,不愁宅基地面寬小了
占地:118.4平方米
260平方米兩層帶車庫四合院房屋設計圖紙及效果圖
占地:260平方米
私人別墅房屋cad施工設計圖,造型精致、美觀
占地:105平方米
農村實用型一層半樓房圖片效果圖,占地140平米左右
占地:140平方米
最美二層樓別墅圖片大全及全套建筑設計圖紙,20萬左右
占地:140平方米
仿古中式四合院別墅設計戶型圖,外觀圖古典風格
占地:524平方米
最新140平米三層自建房屋設計圖紙,本戶型帶小院
占地:140平米
推薦:10套新農村自建房設計圖,2026年最新設計
閱讀次數:4825737次
100套鄉村別墅圖片大全,2026年最新設計
閱讀次數:2492203次
6款農村蓋一層平房的設計圖,10萬元就能建起來
閱讀次數:1852637次
這11個一層農村自建房別墅火爆了朋友圈!我最喜歡戶型十!你呢
閱讀次數:750268次
農村6萬元建一層小別墅圖,你敢相信嗎
閱讀次數:567686次
農村5萬塊就能自建房,6套普通房子設計圖分享,你沒看錯!
閱讀次數:419410次
8套農村漂亮三間平房圖片,非常適合在農村修建!
閱讀次數:411197次
農村自建房化糞池怎么做?附方案及施工過程
閱讀次數:391783次
農村一層三間平房設計圖,告別土氣養老房,讓人忍不住點贊
閱讀次數:350581次
新農村二層樓房圖片造價12萬,挑一套回家建房吧!
閱讀次數:349126次
