圖紙介紹:四層復式別墅設計圖片大全,歐式風格,高聳大氣,十分氣派,外墻采用統一的顏色裝飾,簡單而大方,正立面高低錯落的結構設計,給人一種豐富的視覺感,門頭立柱方形設計,二三層南北兩層多處設計小陽臺,而且窗戶也是配置很多,屋頂還帶陽光房,室內采光度高,屋頂有露臺設計,方便農村晾曬東西,同時也可以做屋頂花園,欣賞室外風景等。
占地面積:12.9m*13.6m,174平方米左右;
建筑層高:四層;
建筑高度:15.72米(含屋頂);
設計功能:
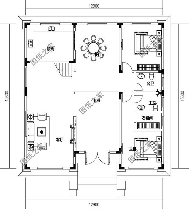
一層戶型:玄關、客廳、廚房、餐廳、臥室(帶衣帽間)、臥室、衛生間;
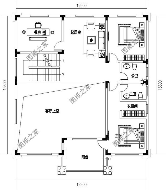
二層戶型:客廳上空、起居室、書房、主臥(帶衛生間衣帽間)、臥室、衛生間、陽臺;
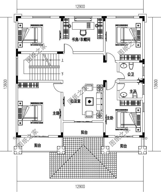
三層戶型:起居室、書房/衣帽間、臥室(帶衛生間)、臥室x3、衛生間、陽臺;
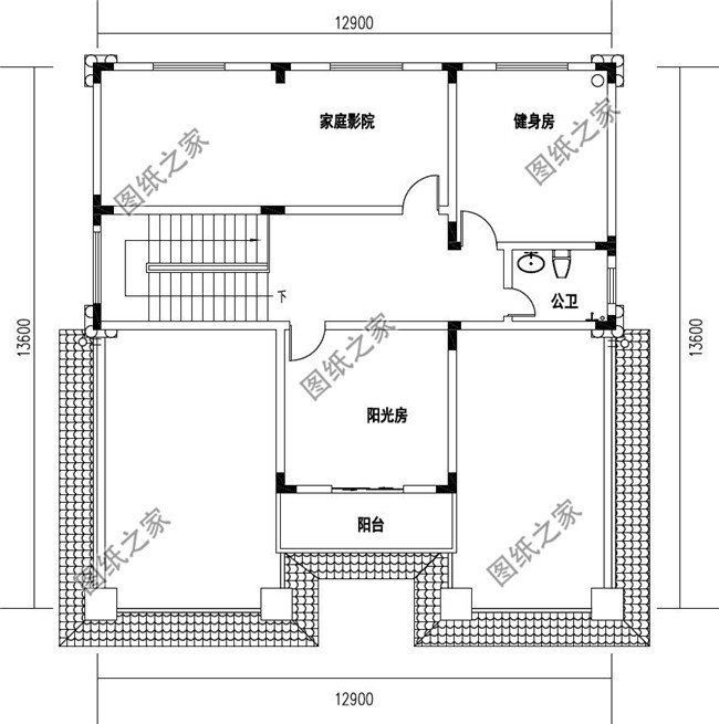
四層戶型:家庭影院、健身房、陽光房、衛生間、陽臺。露臺;
圖紙目錄:
建筑圖:建筑設計說明、一層平面圖、二層平面圖、三層平面圖、四層平面圖、屋頂平面圖、正立面圖、背立面圖、左立面圖、右立面圖、1-1剖面圖、樓梯大樣圖、門斗大樣圖、節點大樣圖、門窗表等;
結 構 圖:結構設計說明、基礎平面布置圖、一層頂梁結構平面圖、一層頂板結構平面圖、二層頂梁結構平面圖、二層頂板結構平面圖、三層頂梁結構平面圖、三層頂板結構平面圖、坡屋頂梁結構平面圖、坡屋頂板結構平面圖、樓梯配筋大樣圖、節點大樣圖等;
給排水圖:給排水設計說明、一層給排水平面圖、二層給排水平面圖、三層給排水平面圖、四層給排水平面圖、屋頂給排水平面圖、衛生間大樣圖、給排水系統圖等;
電 氣 圖:電氣設計說明、配電系統圖、弱電系統圖、一層照明平面圖、二層照明平面圖、三層照明平面圖、四層照明平面圖、一層插座平面圖、二層插座平面圖、三層插座平面圖、四層插座平面圖、一層弱電平面圖、二層弱電平面圖、三層弱電平面圖、四層弱電平面圖、基礎接地平面圖、屋頂防雷平面圖等;
本套圖紙含全套A3施工圖+高清效果圖,拿到即可施工!



















































































