
|
都是家人是我們永遠的依靠,那么家就是我們永遠的港灣,現在城市的房價一天比一天高,進城買房越來越難,高額的房貸能壓得一個家庭喘不過來氣,而現在農村的發展越來越好,所以很多人都愿意回到農村自建房,農村建房最重要的圖紙,今天小編就給大家帶來十款農村別墅圖紙,給你一個最溫馨的家! 一層別墅 款式一:
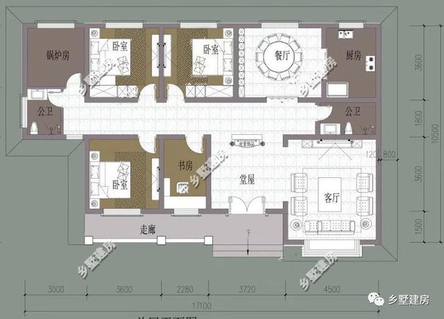
現在很多地方都是老人在家居住,子女一年才回來一兩次,一層別墅就是大家最好的選擇,成本低,空間足夠,能夠滿足老人們的日常生活,也能保證子女回來有地方居住,這款一層別墅采用藍色為外觀,顯得更加陽光,也富有時尚氣息。
平面有三間臥室一間書房,堂屋、客廳以及廚房餐廳都具備,還有兩個衛生間,以及農村專用的鍋爐房,完全可以滿足家庭的日常使用。 二層別墅: 款式二:
二層別墅應該是農村建房的主流,這一款帶有淡淡的田園氣息,能夠更好的融入農村的自然風光中,一層是紅褐色的外墻,不易弄臟,紅色的坡屋頂顯得別墅更加生機勃勃,門樓的設計也十分霸氣。
一層進門處設有入戶平臺作為緩沖空間,進門后是客廳,左側是臥室以及雜物間,再往內是餐廳廚房以及衛生間。
二層有兩間臥室兩間衛生間以及一間書房,還有一個小客廳以及一個室外露臺。 款式三:
第三款也是二層別墅,帶有車庫和室內露臺,現在農村的經濟實力也逐漸增強,車庫能夠滿足農村有車家庭的需求。 款式四:
第四款別墅一層采用的褐色外觀,更符合周邊的環境,大面積的開窗也保證看室內能夠獲得更加充足的采光與通風。 款式五:
第五款是新穎的現代風格別墅,在農村建這樣一棟別墅,你肯定成為全村最耀眼的那一個。 三層別墅: 款式六:
如果說二層是舒適休閑,那么三層應該就是大空間更有氣勢了,第六款是歐式風格的三層別墅,帶著異域他鄉的風采,也更有特色。
一層是老人房,客房以及生活空間。
二層是主要的居住空間。
三層可以作為客房以及休閑區域。 款式七:
三層面積比較大,也可以選擇挑空客廳與建一個車庫,能夠更好的滿足生活需求。 款式八:
對于宅基地比較小的家庭來說,三層別墅是不二的選擇。 庭院別墅: 款式九:
新中式的庭院別墅,應該也是很多人都喜歡的一種款式,黑瓦白墻,綠意悠悠,能夠讓你的生活更加愜意。
款式十:
最后一款是仿四合院的設計,也是比較有特色的農村別墅設計,家中地基足夠的可以也建一棟。 上面這十款別墅你更喜歡哪一款呢?看上了就趕緊回村建一棟吧,為你的家庭建一個最溫馨的港灣吧! 圖紙之家-專注農村別墅/自建房設計18年,集合國內200余位經驗豐富的設計師,被評為口碑最好的農村建筑設計公司! |

豪華二層別墅設計圖紙及別墅圖片,旋轉樓梯,內設佛堂,大大落
占地:260平方米
左右對稱的歐式高端三層別墅設計圖,外觀氣派、豪華
占地:200平方米
簡單實用二層自建房子設計圖,主體造價僅17萬
占地:106.387平方米
新中式風格二層住宅設計圖,農村自建房不土氣
占地:144.5平方米
新中式二層農村住宅設計圖,戶型方正,主體造價21萬
占地:135.81平方米
挑空客廳戶型歐式二層別墅設計圖紙,高端大氣帶車庫
占地:236.09平方米
帶架空層的農村一層小別墅設計圖,大氣穩重又很實用
占地:123.5平方米
農村中式四合院房屋圖片及設計圖,白墻黛瓦的江南風格
占地:337平方米
鄉村自建獨棟三層別墅樓房設計圖,預算30萬內
占地:120平方米
三層獨棟帶露臺房屋設計圖,含外觀圖片大全
占地:110平方米
新中式農村自建二層別墅設計圖,占地160平米左右,客廳中空
占地:160平方米
農村三層自建房子圖紙設計方案,開間11米左右
占地:151.96平方米
大氣自建三層雙拼別墅戶型圖方案,完美的戶型就是它
占地:287平方米
農村40萬房子圖片外觀設計效果圖,帶地下室,外觀時尚大氣
占地:110平方米
好看又簡單二層仿古中式四合院樓房設計圖
占地:352平方米
時尚大方的農村二層自建房屋設計圖紙,占地120平米左右
占地:120平米
造價12萬一層簡單自建房設計戶型圖,占地面積140平方米左右
占地:137.76平方米
經濟實用二層復式樓房設計圖 ,占地150平方米,造價25萬左右
占地:150平方米
鄉村20萬內三層別墅房屋設計圖,面積適中、戶型經典
占地:100平方米
160平方米歐式一層半別墅施工設計圖紙13X13米
占地:160平方米
推薦:10套新農村自建房設計圖,2026年最新設計
閱讀次數:4825737次
100套鄉村別墅圖片大全,2026年最新設計
閱讀次數:2492203次
6款農村蓋一層平房的設計圖,10萬元就能建起來
閱讀次數:1852637次
這11個一層農村自建房別墅火爆了朋友圈!我最喜歡戶型十!你呢
閱讀次數:750268次
農村6萬元建一層小別墅圖,你敢相信嗎
閱讀次數:567686次
農村5萬塊就能自建房,6套普通房子設計圖分享,你沒看錯!
閱讀次數:419410次
8套農村漂亮三間平房圖片,非常適合在農村修建!
閱讀次數:411197次
農村自建房化糞池怎么做?附方案及施工過程
閱讀次數:391783次
農村一層三間平房設計圖,告別土氣養老房,讓人忍不住點贊
閱讀次數:350581次
新農村二層樓房圖片造價12萬,挑一套回家建房吧!
閱讀次數:349126次
