
|
下半年是建房的好時機,尤其是南方,氣候溫和,施工起來更方便。今天小編給大家挑選了2款高品質二層半三層經典實用40萬以內農村房屋設計全套施工圖,均是歐式設計風格,不過外觀和布局上大有不同,來看看你更喜歡哪一款?! 【戶型1】 開間進深:11.6m×13.2m 占地面積:156㎡ 建筑面積:375㎡ 結構形式:框架結構 參考造價:40萬元
戶型1
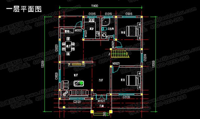
戶型點評 戶型1外立面結構設計豐富,一樓設有走廊,二三樓均有大露臺,屋頂高低錯落,很有層次感,采用淡黃色墻漆裝飾外墻,屋頂使用比較鮮艷的橙色,色彩鮮明對比,給人加深印象。室內空間的功能多樣化設計,環境舒適。 功能設計 一層: 客廳、門廳、門廊、2臥室、廚房、餐廳、衛生間 二層: 主臥(附露臺、衣帽間、主衛)、次臥、兒童房(附陽臺)、公衛、書房、起居室 三層: 臥室(附陽臺)、臥室、衛生間、活動室、露臺 平面圖展示
一層平面圖
二層平面圖
三層平面圖 【戶型2】 開間進深:11.98m×11.48m 占地面積:155.1㎡ 建筑面積:402.9㎡ 結構形式:砌體結構 參考造價:38萬元
戶型2 戶型點評 戶型2屬于歐式風格設計方案,整體外觀設計漂亮大方,采用多飄窗設計,豐富外立面立體感,同時延伸室內的空間,可以從室內欣賞到窗外美景。四樓正面的窗戶拱形設計,柔化線條,別致美觀。布局合理緊湊,功能多樣,臥室根據生活的便利而設計,有衛生間、陽臺等。 功能設計 一層: 客廳、臥室、廚房、餐廳、儲藏室、衛生間 二層: 臥室(附陽臺,衣帽間,衛生間)、臥室(附衣帽間,衛生間)、臥室(附衛生間) 三層: 臥室(附衣帽間,衛生間)、書房、陽光房(附露臺) 平面圖展示
![]() 圖紙之家-專注農村別墅/自建房設計18年,集合國內200余位經驗豐富的設計師,被評為口碑最好的農村建筑設計公司! |

帶車庫的一層雙拼別墅設計方案,出入方便保安全,大氣優雅還長
占地:179.7平方米
農村三層樓房設計圖及圖片,客廳挑空,優化室內采光
占地:140平方米
一層田園風坡屋頂平房設計圖,造型漂亮時尚
占地:134.9平方米
建完被夸半年!現代風三層農村別墅,顏值抗打還百看不厭
占地:136.01平方米
140平三層復式別墅設計圖及外觀效果圖
占地:140平方米
90平方米小戶型自建三層房屋設計圖紙及外觀效果圖
占地:91平方米左右
兄弟雙拼別墅設計戶型圖及設計方案圖,帶外觀效果圖,外觀好看
占地:185平方米(單棟)
開間9到10米簡約別墅設計圖紙帶效果圖,全套別墅設計方案
占地:122平方米
鄉下120平米二層樓房設計圖,23萬就可以建漂亮別墅
占地:120平方米
農村三層樓房設計圖紙及效果圖,經典自建圖紙
占地:201平方米
農村現代新中式三合院設計圖及效果圖片,外觀好看極了
占地:多戶型可選
新式帶挑空客廳三層鄉村別墅設計圖,占地170平左右
占地:170平方米
80平方米新農村三層房屋設計圖,新農村住宅圖紙精選
占地:80平方米
小戶型兄弟雙拼別墅房屋設計圖,帶外觀效果圖
占地:150平方米
最新12x9米一層平房別墅設計圖,好看不貴居住舒適!
占地:108平方米
新中式三層雙拼別墅設計圖,外觀圖片美觀、大氣
占地:176平方米
帶地下室三間二層農村自建房設計圖,現代平屋頂設計
占地:99.98平方米
面寬13米帶堂屋三層農村別墅圖,新中式大氣風格
占地:151.58平方米
125平方米三層新農村房屋建筑施工設計圖帶外觀圖
占地:126平方米
一層平房小面積雙拼房屋住宅設計圖,造價低,面積適中
占地:245.7平方米
推薦:10套新農村自建房設計圖,2026年最新設計
閱讀次數:4825737次
100套鄉村別墅圖片大全,2026年最新設計
閱讀次數:2492203次
6款農村蓋一層平房的設計圖,10萬元就能建起來
閱讀次數:1852637次
這11個一層農村自建房別墅火爆了朋友圈!我最喜歡戶型十!你呢
閱讀次數:750268次
農村6萬元建一層小別墅圖,你敢相信嗎
閱讀次數:567686次
農村5萬塊就能自建房,6套普通房子設計圖分享,你沒看錯!
閱讀次數:419410次
8套農村漂亮三間平房圖片,非常適合在農村修建!
閱讀次數:411197次
農村自建房化糞池怎么做?附方案及施工過程
閱讀次數:391783次
農村一層三間平房設計圖,告別土氣養老房,讓人忍不住點贊
閱讀次數:350581次
新農村二層樓房圖片造價12萬,挑一套回家建房吧!
閱讀次數:349126次
