
|
很多人都認為現在建房就應該建成三層結構,因為這代表著大氣,代表著檔次,可是也要充分考慮自己的經濟實力和實際狀況,不是任何人都適合建三層,也不是任何人都需要建三層,對于大多數家庭來說,二層結構的自建房其實就足夠了,我們可以將主體框架的省下來的預算,大幅加強建筑的內外部裝飾,同樣能打造一款精致的住房;本期,我們推薦兩款磚混結構的農村自建房,每一款都是六間臥室的布局,開間12米左右很實用。 第一款:
帶閣樓的二層小別墅,建筑開間11.2米,進深13.6米,雖然進深較大,但建筑戶型依然在我們能接受的范圍之內,建筑占地143.66平米,總建筑面積283.66平米,建筑高度10.7米;建筑采用西側入戶,設小門廳,建筑正立面居中設寬體大窗,屋頂的拱形閣樓大窗,給建筑造型增添了不少的美感;建筑外用分層裝飾的效果,建筑勒腳和中立柱用深色文化石,一層采用黃色外墻磚,頂層采用白色外墻漆,逐層遞減很時尚。
建筑入戶設玄關,東側進入待客區,上臺階進入生活區,大客廳預留休閑娛樂區,待客休閑娛樂和生活休憩嚴格區分,設10平米以上的大廚房和20平米以上的大餐廳,多人就餐也不成問題,一層設一間臥室和一個衛生間;二層設五間臥室,其中陽面設三間,并且三間均帶陽臺,其中兩間為開放式陽臺,一間為大型封閉式陽臺,另設一間寬敞的步入式衣帽間;閣樓采光充足,功能自定。 第二款:
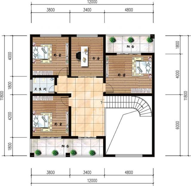
簡約風格的二層小別墅,建筑開間12.1米,進深11.8米,建筑占地125.77平米,總建筑面積262.34平米,建筑高度8.5米,3.4米的寬體入戶很寬敞,3.8米的門外廊設計很實用,門外廊和上層陽臺均為1.8米的大寬度設計,室外活動空間很富裕;建筑勒腳用黑色外墻磚裝飾,外墻整體采用淺黃色外墻磚裝飾,整體效果簡單清新。
建筑入戶設前廳,右側設復式客廳和旋轉樓梯,樓梯繞客廳而建,豪華又別致,客廳、餐廳、廚房均獨立設計,餐廳設后門,同樣設1.8米的寬門廊,一層設兩間臥室,公衛在兩臥室之間,兩臥室不對門設計,避免尷尬;二層設三間臥室、一間獨立書房,預留家庭起居室,設一處衛生間和兩處大陽臺。 兩款設計方案均采用六個房間的功能設置,上下層結構統一,磚混結構施工方便。 圖紙之家-專注農村別墅/自建房設計18年,集合國內200余位經驗豐富的設計師,被評為口碑最好的農村建筑設計公司! |

12.8乘10米一層平房別墅設計圖,四室二廳南北通透
占地:128.85平方米
140平中式徽派一層別墅設計圖,一層照樣建這樣漂亮
占地:140平方米
10米×12米30萬以內農村建房三層豪華歐式別墅圖,處處顯品味
占地:120平方米
12米×10米左右一層別墅平房戶型圖及設計圖,造價低
占地:110平方米
占地180平豪華三層農村別墅自建房設計圖,歐式與現代相融合
占地:183.706平方米
小戶型現代新農村三層房屋設計建筑圖及效果圖
占地:108平方米
110平農村二層房屋設計圖,戶型特別接地氣,造價經濟還實用
占地:110.05平方米
經典三層雙拼樓房設計圖,經典外觀,經典戶型
占地:225平方米
四開間二層別墅設計圖,造型精美經典舒適,火爆全村的戶型
占地:150.882平方米
11x13米兩層半現代風別墅設計圖,??看過的都后悔建早了!
占地:126.02平方米
簡單現代平屋頂兩層四間自建樓房設計圖紙施工方案,簡潔又實用
占地:192平方米
帶車庫農村二層雙拼別墅設計圖,外觀現代
占地:235平方米
最實用一層小別墅設計方案,造價不高顏值高,家家都喜歡!
占地:143.48平方米
平頂新中式三層農村別墅設計圖,最適合鄉村自建占地150平米
占地:150.35平方米
徽派自建房一層設計圖,七字型設計,獨立餐廚便捷實用
占地:171.65平方米
農村120平三層樓房設計圖,造型現代,帶屋頂花園
占地:120平方米
人字坡房屋一層別墅設計圖,簡約低調超實用,、
占地:101.17平方米
30萬預算三層別墅設計圖紙及效果圖,新農村自建推薦
占地:110平方米
110平預算20萬內三層別墅設計圖,含效果圖
占地:110平方米
帶電梯的農村歐式雙拼三層豪宅別墅設計圖,樓梯電梯共用
占地:268.448平方米
推薦:10套新農村自建房設計圖,2026年最新設計
閱讀次數:4825737次
100套鄉村別墅圖片大全,2026年最新設計
閱讀次數:2492203次
6款農村蓋一層平房的設計圖,10萬元就能建起來
閱讀次數:1852637次
這11個一層農村自建房別墅火爆了朋友圈!我最喜歡戶型十!你呢
閱讀次數:750268次
農村6萬元建一層小別墅圖,你敢相信嗎
閱讀次數:567686次
農村5萬塊就能自建房,6套普通房子設計圖分享,你沒看錯!
閱讀次數:419410次
8套農村漂亮三間平房圖片,非常適合在農村修建!
閱讀次數:411197次
農村自建房化糞池怎么做?附方案及施工過程
閱讀次數:391783次
農村一層三間平房設計圖,告別土氣養老房,讓人忍不住點贊
閱讀次數:350581次
新農村二層樓房圖片造價12萬,挑一套回家建房吧!
閱讀次數:349126次
