
|
帶有挑空客廳的戶型是現在很多農村家庭的建房首選,這種設計時尚大氣,進門就能給人一種豪華大方的感覺,自己住在里面也會覺得很舒適,今日給大家推薦推薦2款高品質圖紙:帶挑空客廳+落地窗三層農村自建別墅,一起來看看圖紙詳情介紹! 【戶型1】 圖紙介紹 層數: 三層 結構形式: 框架結構 主體造價: 40萬 開間:12米 進深:12米 占地面積: 139.60平方米 建筑面積:388.20平方米
戶型1正面效果圖 戶型1給人印象最深刻的,便是一樓的2扇超大落地窗,時尚大氣。落地窗對應的室內功能區域便是客廳,客廳挑空設計,寬敞明亮。外墻采用淡黃色墻漆裝飾,邊線使用比較深的黃色劃分,讓外立面視覺效果更豐富,屋頂采用經典的紅色,顏色沖擊感強烈,露臺與屋頂有高度落差,讓整個外立面看起來更具層次感。
背面效果圖 設計功能
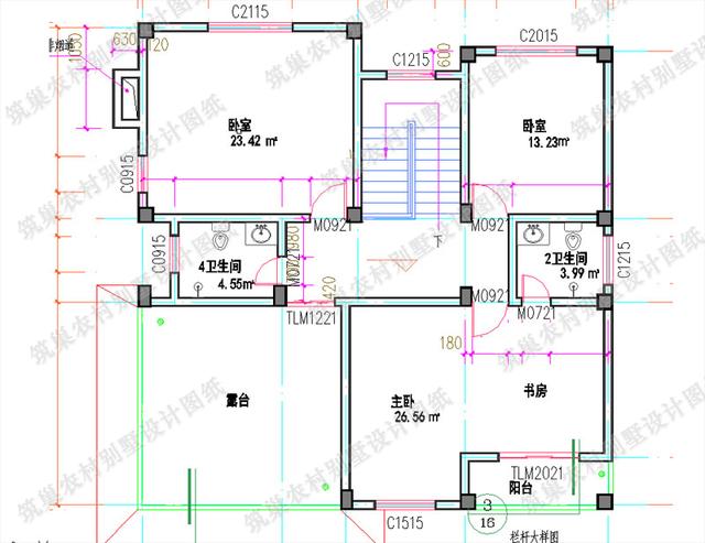
一層平面圖 一 層: 客廳、餐廳、廚房、衛生間、臥室、車庫 一樓設有車庫,車庫有大門,也有小門直接通入室內,可以拿來做臥室或者娛樂間等其他功能使用。客廳采用現代人比較喜歡的流行設計,挑空樓板中空設計,更顯得高端大氣。
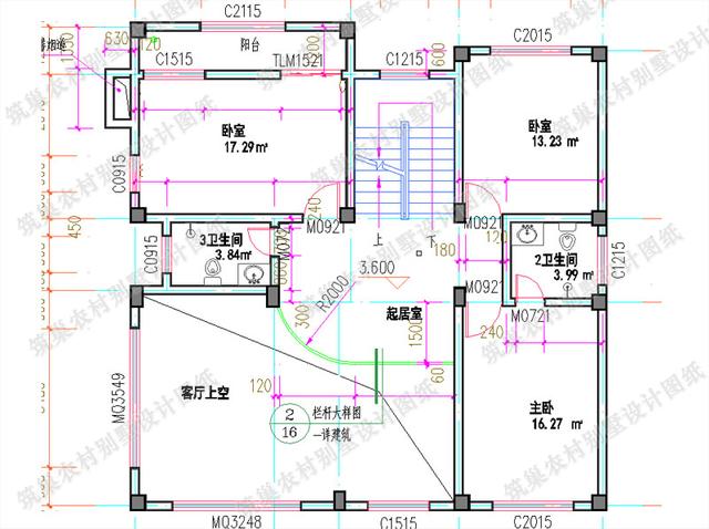
二層平面圖 二 層: 客廳上空、起居室、衛生間、主臥室(帶衛生間)、次臥室(帶陽臺)、臥室 二樓共有3個臥室,主臥室帶衛生間,一間次臥帶陽臺,尺寸適宜,十分方便。
三 層: 主臥(帶書房、帶衛生間、帶陽臺)、臥室、露臺、衛生間 三樓主臥室是豪華套間,帶有書房衛生間和陽臺,滿足主人的精神享受。此外還設有大露臺,活動空間充足。 【戶型2】 圖紙詳情 層數: 三層 結構形式: 框架結構 主體造價:35萬 開間: 13米 進深:11米(不含門柱)含門柱進深是12.8米 占地面積: 140.87平方米 建筑面積:366.86平方米
戶型2有八面體結構設計,并采用多落地窗增加外觀美感及室內的采光,外觀獨特時尚。布局完善,側重空間流暢性,功能設計齊全,車庫的設計方便停放車輛,二三層樓均設有露臺,活動空間充足,可以晾曬、觀景。一層客廳挑空設計,還有旋轉樓梯時尚元素,二三層設有多個臥室套間,滿足大家庭住房需求。 設計功能及平面圖展示
一 層: 門廳、挑空客廳、餐廳、廚房、衛生間、臥室、陽臺、車庫
二 層: 主臥室(帶衣帽間、書房、衛生間、陽臺)、臥室(帶陽臺)、臥室、衛生間 三 層: 休息廳(帶陽臺)、臥室(帶衛生間、露臺、大露臺)、臥室(帶陽臺)、臥室、衛生 圖紙之家-專注農村別墅/自建房設計18年,集合國內200余位經驗豐富的設計師,被評為口碑最好的農村建筑設計公司! |

新款三層豪華大氣歐式別墅設計圖,3種戶型設計方案
占地:125平方米左右
大氣的美式三層別墅設計圖,外觀效果圖氣派、美觀
占地:148平方米
中式二層對稱別墅設計圖,帶地下室設計,整體造價經濟
占地:171.6平方米
占地105平實用三層樓房別墅設計圖紙,造型方正簡單大氣
占地:105平方米
新中式農村自建二層別墅設計圖,占地160平米左右,客廳中空
占地:160平方米
農村中式一層三合院自建房戶型方案圖,帶庭院設計
占地:222平方米
占地200平農村二層自建房設計方案戶型,陽面臥室多
占地:208平方米
中國最美的四合院別墅設計圖方案,復式挑空客廳戶型
占地:343.57平方米
新中式別墅一層自建房設計,戶型實用緊湊
占地:170.54平方米
農村建房二樓設計圖,占地百平帶配房設計,顏值高布局好
占地:103.11平方米
中式四合院農村自建房設計圖,白墻黛瓦,四水歸堂
占地:137.72平方米
人字坡房屋一層別墅設計圖,簡約低調超實用,、
占地:101.17平方米
2026二層農村新款別墅設計圖,帶車庫,帶鍋爐房
占地:180平方米
農村一層五間(6間)新農村設計圖方案,含外觀圖片
占地:193.47平方米
帶車庫的農村四合院別墅設計圖,富貴人家的象征,日子越過越興
占地:219.24平方米
帶柴火房農村一層自建房設計圖,戶型布局接地氣
占地:126.29平方米
帶地下室的農村三層雙拼別墅設計圖,復式戶型,面寬23米
占地:261.6平方米左右
2026新款三層小別墅設計圖,占地150平米,帶地下室
占地:150平方米
小戶型農村三層房屋設計圖,占地120平米,布局非常合理,外表典
占地:120平方米
四層雙拼豪華別墅設計圖及外觀效果圖,貴族氣質爆棚
占地:188.5平方米
推薦:10套新農村自建房設計圖,2026年最新設計
閱讀次數:4825737次
100套鄉村別墅圖片大全,2026年最新設計
閱讀次數:2492203次
6款農村蓋一層平房的設計圖,10萬元就能建起來
閱讀次數:1852637次
這11個一層農村自建房別墅火爆了朋友圈!我最喜歡戶型十!你呢
閱讀次數:750268次
農村6萬元建一層小別墅圖,你敢相信嗎
閱讀次數:567686次
農村5萬塊就能自建房,6套普通房子設計圖分享,你沒看錯!
閱讀次數:419410次
8套農村漂亮三間平房圖片,非常適合在農村修建!
閱讀次數:411197次
農村自建房化糞池怎么做?附方案及施工過程
閱讀次數:391783次
農村一層三間平房設計圖,告別土氣養老房,讓人忍不住點贊
閱讀次數:350581次
新農村二層樓房圖片造價12萬,挑一套回家建房吧!
閱讀次數:349126次
