
戶型一本戶型為3層新農村獨棟別墅,占地面積114平米,總建筑面積305平米,總占地面積194平米,建筑高度10.8米。 一層設有客廳、餐廳、廚房、老人臥室、衛生間、淋浴室,外面有院場,設有洗衣池、沼氣池、家禽圈舍; 二層設有主臥室、起居廳、書房、衛生間、大曬臺; 三層設有次臥室、客房、兒童房帶書房、衛生間。 本戶型采用平屋頂與坡屋頂相結合,外觀、造型簡潔大方,色彩明快,房間尺度設計適宜,空間利用率高,適合獨家小院建設。
戶型二3層農村自建房別墅設計圖紙帶閣樓和車庫 圖紙簡介: 建筑占地:門面13.32米*進深13.72米 = 182.75平方米 建筑高度:9.9m; 建筑層數:三層帶閣樓; 屋頂形式:坡屋頂; 結構形式:混合結構; 設計功能: 一層為臥室、廚房、客廳、餐廳、衛生間、車庫; 二層為三臥兩衛,屋面平臺; 三層沒有規劃房間用途; 圖紙目錄:圖紙包含一層、二層三層、屋頂平面圖;立面、側面、剖面圖;還有有一張完整的結構圖,一到三層的結構圖,屋頂結構圖,大樣圖,節點圖等。 戶型為單家獨院式,占地面積13米*13.7米,建筑高度9.9米。一層設有客廳、餐廳、廚房、臥室、衛生間、車庫;二層設有三臥兩衛、屋面平臺;三層房間用途自由規劃;本戶型采用坡屋頂,混合結構,外觀、造型簡潔大方,色彩明快,房間尺度設計適宜,空間利用率高,造價適中。 32.8萬
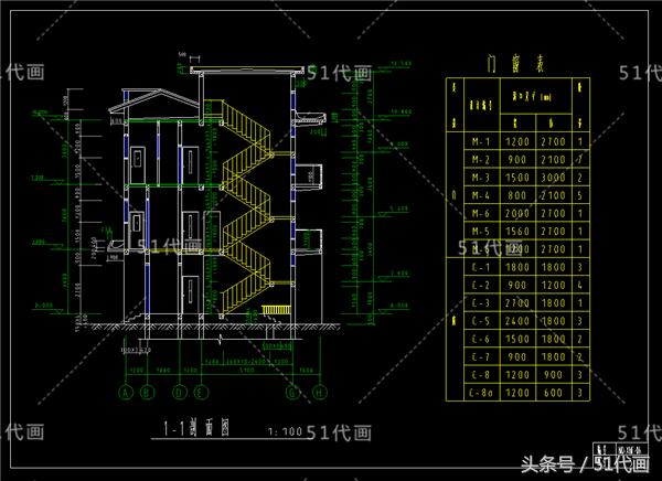
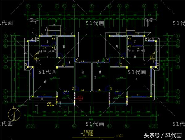
戶型三該套圖紙信息有: (1)效果圖1份; (2)各層平面設計圖; (3)各個立面圖; (4)剖面圖(含樓梯設計圖); (5)地梁平面圖、夾層梁平面圖; (6)結構設計說明。 戶型為單家獨院式,建筑面積282.35平米,總高度12.8米。 一層設有老人房、儲藏室、衛生間、廚房、客廳、餐廳、樓梯間; 二層設有臥室、衣帽間、衛生間、陽臺; 三層設有臥室、衛生間、棋牌活動室及屋頂花園。 本戶型外觀造型簡潔大方,房間尺度設計適宜,空間利用率高,分區功能簡明,合理通暢,設計使用年限50年,耐火等級為二級;屋面防水等級2級;抗震設防烈度為6度。
圖紙之家-專注農村別墅/自建房設計18年,集合國內200余位經驗豐富的設計師,被評為口碑最好的農村建筑設計公司! |

二開間小戶型設計三層農村自建房方案,經濟型適合小宅基地建房
占地:107.02平方米
農村二層住宅別墅設計圖,貼心實用,12.8米乘14.5米
占地:156.16平方米
18X12米農村二層溫馨小別墅設計圖,美式風格
占地:203平方米
經典三層農村房屋設計圖紙,占地100平米左右,外觀典雅精致,內
占地:100平方米
時尚現代的二層農村別墅設計圖,年輕人建房的不二之選
占地:131.76平方米
普通農村二層房子設計圖 ,復式結構,帶車庫,占地160平米左右
占地:160平方米
二間二層小型別墅設計圖,美觀、經濟、實用!
占地:96平方米
中國最美的四合院別墅設計圖方案,復式挑空客廳戶型
占地:343.57平方米
最新高端四層別墅外觀效果圖及全套設計圖,真土豪就這樣建
占地:174.08平方米
鄉下建房一層戶型圖,一層住宅設計圖紙,誰說一層平房不能叫別
占地:200平方米
對稱設計二層歐式別墅設計圖,優雅時尚有品位
占地:151.85平方米
農村一層四開間自建別墅,美麗住宅如詩如畫里15米乘10米
占地:142平方米
農村三層歐式別墅豪宅戶型圖設計方案,復式中空客廳+旋轉樓梯
占地:134.84平方米
小型農村二層自建樓房設計圖,面寬10米小占地經濟
占地:78.54平方米
二層農村兄弟雙拼別墅設計圖,一墻之隔互不干擾,鄰居看了都喜
占地:164.24平方米
兩戶190平方米新農村雙拼別墅全套設計方案及效果圖
占地:191平方米
二層現代風格雙拼別墅設計圖,平屋頂,帶地下室設計
占地:192.47平方米
農村小別墅一層設計圖紙,外觀漂亮極了,130和160兩個戶型
占地:多種戶型可選
15×10米農村二層四合院自建房戶型圖,小型四合院設計圖
占地:150平方米
鄉村高檔四層別墅樓設計圖,二三層復式挑空客廳
占地:148.992平方米
推薦:10套新農村自建房設計圖,2026年最新設計
閱讀次數:4825737次
100套鄉村別墅圖片大全,2026年最新設計
閱讀次數:2492203次
6款農村蓋一層平房的設計圖,10萬元就能建起來
閱讀次數:1852637次
這11個一層農村自建房別墅火爆了朋友圈!我最喜歡戶型十!你呢
閱讀次數:750268次
農村6萬元建一層小別墅圖,你敢相信嗎
閱讀次數:567686次
農村5萬塊就能自建房,6套普通房子設計圖分享,你沒看錯!
閱讀次數:419410次
8套農村漂亮三間平房圖片,非常適合在農村修建!
閱讀次數:411197次
農村自建房化糞池怎么做?附方案及施工過程
閱讀次數:391783次
農村一層三間平房設計圖,告別土氣養老房,讓人忍不住點贊
閱讀次數:350581次
新農村二層樓房圖片造價12萬,挑一套回家建房吧!
閱讀次數:349126次
