
|
現在大多數農村地區生活水平可以說是很高了,房子一家比一家建的好看,什么風格款式的都有,今天小編給大家推薦的三款農村三層半自建房設計圖紙,外觀好看,大氣又時尚,一點不比城里差。室內還有電梯設計,客廳中空,別提多時尚又氣派了,樓頂還有大露臺,可以滿足住戶的各種需要。
第一款:農村三層半別墅設計圖,戶型簡單實用
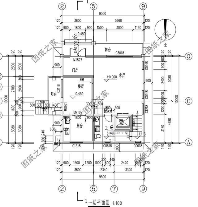
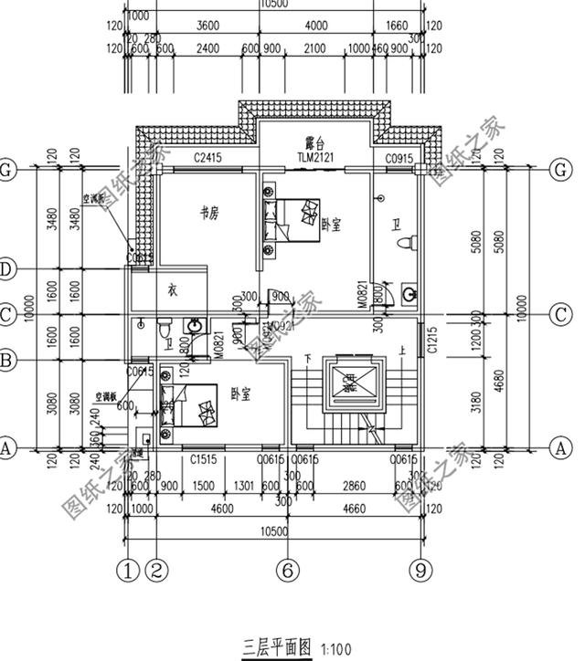
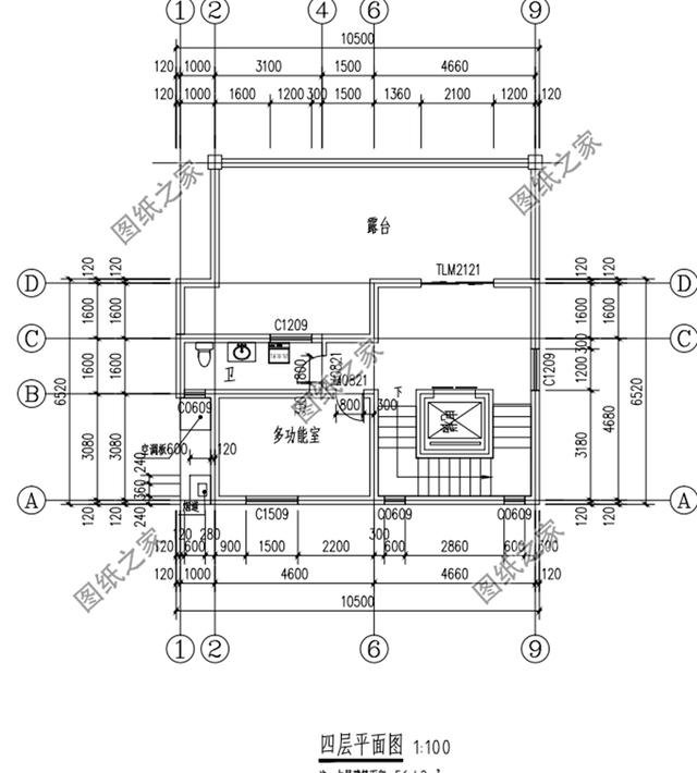
![]() 圖紙介紹:這款三層半自建別墅占地95平米左右,帶電梯設計,方便業主生活使用,二層以上設置房間都為套間,大大的提升業主的生活品質,外觀清新亮麗。 占地面積:9.5m*10.0m,95平方米左右; 建筑層高:四層; 建筑高度:12.7米(含屋頂); 設計功能: 一層戶型展示:客廳、餐廳、廚房、衛生間、電梯; 二層戶型展示:臥室(帶衛生間、衣帽間、露臺)、臥室(帶衛生間)、臥室(帶衣帽間)、衛生間; 三層戶型展示:臥室(帶書房、衣帽間、露臺、衛生間)、臥室(帶衛生間); 四層戶型展示:多功能室、衛生間、大露臺; ![]() ![]() ![]() ![]() 第二款:農村三層半別墅設計圖,帶車庫設計,占地127平米
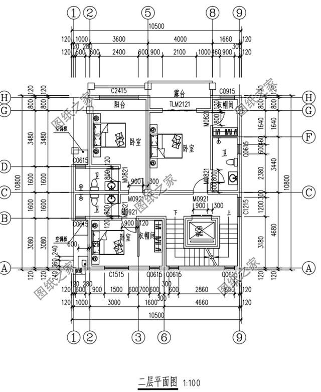
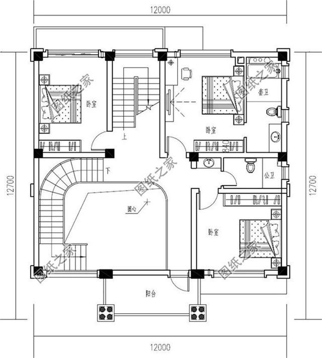
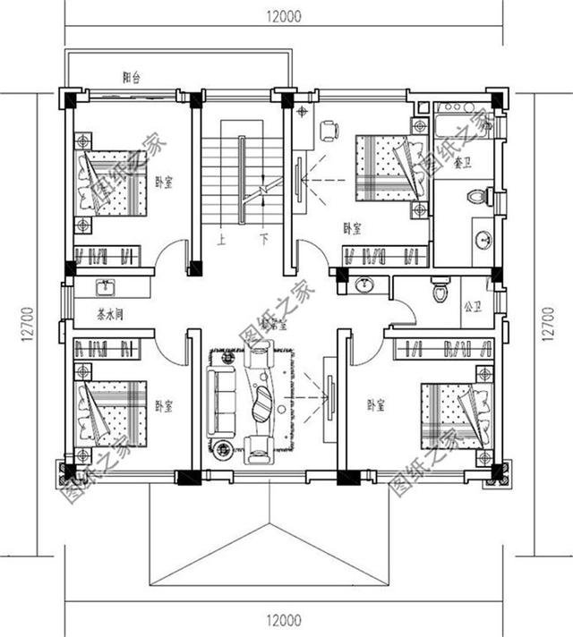
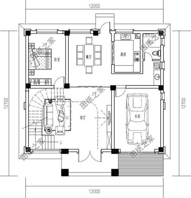
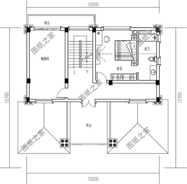
![]() 圖紙介紹:本戶型占地127平方米左右,簡歐風格,帶車庫設計,戶型方正大氣,無論外觀還是布局設計都好的沒話說,多窗設計保證了室內采光及通風。 占地面積:12m*12.7m,127平方米左右; 建筑層高:四層; 建筑高度:15.66米(含屋頂); 設計功能: 一層戶型:客廳、廚房、餐廳、臥室、衛生間、車庫; 二層戶型:客廳上空、臥室(帶衛生間)、臥室x2、衛生間、陽臺; 三層戶型:起居室、臥室(帶衛生間)、臥室x3、茶水間、衛生間; 四層戶型:臥室(帶衛生間)、儲物間、陽臺; ![]() ![]() ![]() ![]() 第三款:農村三層半別墅設計圖紙,占地185平米左右
![]() 圖紙介紹:這款戶型占地185平米左右,戶型大氣時尚,背面有多個窗戶,可以加強室內采光和通風。多邊形窗的使用還能加強別墅的立體感,室內布局規劃合理,功能齊全,適合農村建造。 占地面積:13m*15.8m,185.04平方米左右; 建筑層高:四層; 建筑高度:16.144米(含屋頂); 設計功能: 一層戶型:玄關、客廳、廚房、餐廳、茶室(棋牌室)、臥室(帶衣帽間)、衛生間; 二層戶型:客廳、書房、臥室(帶衛生間)、臥室x3、衛生間、陽臺; 三層戶型:客廳、書房、臥室(帶衛生間)、臥室x3、衛生間、陽臺; 四層戶型:書房、臥室x2、衛生間、露臺、涼亭; ![]() ![]() ![]() ![]() 這三款別墅外觀大氣,住的舒適,大家更喜歡哪款呢?
圖紙之家-專注農村別墅/自建房設計18年,集合國內200余位經驗豐富的設計師,被評為口碑最好的農村建筑設計公司! |

120平米農村三層房屋設計圖,客廳中空,戶型合理
占地:120平方米
農村20萬元二層小樓圖片及全套圖紙,外型美造價低
占地:多種戶型
二層農村自建四合院設計圖,中式外觀古樸有質感200-300平方米
占地:270平方米左右
中式古風別墅設計圖,一層三合院設計,經濟舒適,時尚與傳統的
占地:275.7平方米
農村房子設計圖三層獨棟別墅方案,占地130平方米
占地:130平方米
農村120方三層自建房子圖,好看又不貴的三層農村別墅
占地:120平方米
160平方米農村二層別墅設計效果圖帶CAD建筑圖
占地:160平方米
農村一層平房別墅設計圖紙,130平米左右,主體十幾萬
占地:130平方米左右
經典三層小別墅設計圖紙(效果圖+全套cad建筑圖),新農村自建
占地:120平方米
占地110平米兩層半農村房子設計圖,簡單實用
占地:110.25平方米
新款三層農村自建別墅設計圖,中式風復式客廳
占地:158.96平方米
四層自建別墅設計圖,有車庫帶露臺,時尚大氣給你一個五星級的
占地:152.51平方米
四開間二層別墅設計圖,造型精美經典舒適,火爆全村的戶型
占地:150.882平方米
農村三層15萬自建房圖,小戶型別墅設計方案圖
占地:60平方米
高端二層新中式四合院別墅設計圖,含全套CAD施工圖
占地:217平方米
農村三室二廳一層小平房設計圖,簡單實用型
占地:113.4平方米
兩層半30萬農村自建房別墅設計圖紙,客廳挑空,帶大露臺
占地:130平方米
300平四層別墅房屋設計圖,含外觀效果圖,大面積、多臥室
占地:261平方米
2026農村漂亮的一層平房圖片平面圖與全套施工圖紙,戶型周正
占地:150平方米
100平方米新農村二層別墅設計圖紙,帶屋頂露臺
占地:100平方米
推薦:10套新農村自建房設計圖,2026年最新設計
閱讀次數:4825737次
100套鄉村別墅圖片大全,2026年最新設計
閱讀次數:2492203次
6款農村蓋一層平房的設計圖,10萬元就能建起來
閱讀次數:1852637次
這11個一層農村自建房別墅火爆了朋友圈!我最喜歡戶型十!你呢
閱讀次數:750268次
農村6萬元建一層小別墅圖,你敢相信嗎
閱讀次數:567686次
農村5萬塊就能自建房,6套普通房子設計圖分享,你沒看錯!
閱讀次數:419410次
8套農村漂亮三間平房圖片,非常適合在農村修建!
閱讀次數:411197次
農村自建房化糞池怎么做?附方案及施工過程
閱讀次數:391783次
農村一層三間平房設計圖,告別土氣養老房,讓人忍不住點贊
閱讀次數:350581次
新農村二層樓房圖片造價12萬,挑一套回家建房吧!
閱讀次數:349126次
