
|
建房子不是住一天兩天的事,房子是要住一輩子的。所以我們要非常的慎重,我們都希望能住到自己老了的時候,在這里安享晚年,不再奔波。到那個時候別人看到你們家的房子,還能驚嘆的說你們家的房子真不錯,心里真的美滋滋了。 下面分享的這套別墅,外觀非常漂亮,50年都不會過時,布局也是很實用,一共有8室3廳帶車庫,還有中空客廳。別墅的占地尺寸是15.5X13.2米,占地面積大約184平米,預算的主體造價約48-55萬左右。
整棟別墅的外觀采用的是紅色和白色的搭配,是一種比較溫暖喜慶的配色。在農村比較適合 屋頂層次分明,層層疊疊非常耐看
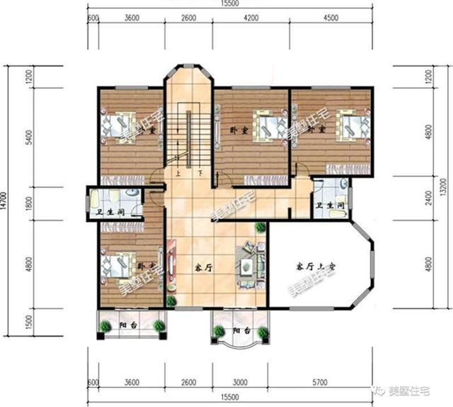
一層布局 進門是娛樂室,旁邊是客廳,往前走就是餐廳了,還有廚房和洗衣房 一間臥室,1公衛,還有車庫 每個空間都比較私密
二層布局 3臥室、1公衛、1私衛、客廳、2陽臺、客廳中空 主臥帶有衛生間和陽臺,客廳也有陽臺
三層布局 主臥帶有衛生間、衣帽間和陽臺,兩間次臥,1公衛、還有超大露臺 這套別墅的外觀和布局,你們覺得怎么樣? 圖紙之家-專注農村別墅/自建房設計18年,集合國內200余位經驗豐富的設計師,被評為口碑最好的農村建筑設計公司! |

新中式農村自建房三層設計圖,外觀布局均滿分
占地:142.18平方米
漂亮實用三層自建別墅設計圖紙,超高的性價比
占地:160平方米
2026新中式農村三層別墅圖,外觀漂亮,看一眼就愛上
占地:240平方米
四層豪華歐式別墅自建樓房設計圖紙,帶效果圖和全套施工圖
占地:300平方米
大氣農村三層歐式雙拼別墅全套施工圖紙,帶堂屋設計,外觀圖片
占地:196.056平方米
戶型獨特的、二層臥室挑高的別墅房屋設計圖,外觀簡歐風格
占地:250平方米
100平內的三層豪華歐式別墅房屋設計圖紙 ,簡歐風格
占地:94平方米左右
農村二層舒適好房,這款四開間別墅設計圖真的很不錯
占地:220.46平方米
三層新農村小別墅設計圖紙,占地120平米,客廳中空,帶大露臺
占地:120平方米
私人二層中式四合院別墅建筑設計圖,新農村經濟實用戶型
占地:145平方米
經典一層帶閣樓三合院別墅設計圖,18米乘9.5米
占地:118.63平方米
高端大氣三層別墅設計圖,建好就是村里最靚的
占地:120平方米
帶地下室+挑空客廳,農村三層洋樓別墅誰家圖在
占地:97.74平方米
農村最好看18萬左右兩層小樓圖,外觀、造型簡潔大方
占地:120平方米
極簡大氣二層別墅設計圖,15米面寬,簡約大氣,年輕人的最愛!
占地:150平方米
現代四合院別墅設計圖紙,二層戶型,外觀時尚漂亮
占地:287.97平方米
一層半中式合院別墅設計圖,帶配房,有庭有院有品位
占地:135平方米左右
小戶型三層別墅設計圖,戶型經典,外觀精致、美觀
占地:95平方米
10米×13米最好看的農村三層樓房圖,客廳中空
占地:124平方米
30萬預算三層別墅設計圖紙及效果圖,新農村自建推薦
占地:110平方米
推薦:10套新農村自建房設計圖,2026年最新設計
閱讀次數:4825737次
100套鄉村別墅圖片大全,2026年最新設計
閱讀次數:2492203次
6款農村蓋一層平房的設計圖,10萬元就能建起來
閱讀次數:1852637次
這11個一層農村自建房別墅火爆了朋友圈!我最喜歡戶型十!你呢
閱讀次數:750268次
農村6萬元建一層小別墅圖,你敢相信嗎
閱讀次數:567686次
農村5萬塊就能自建房,6套普通房子設計圖分享,你沒看錯!
閱讀次數:419410次
8套農村漂亮三間平房圖片,非常適合在農村修建!
閱讀次數:411197次
農村自建房化糞池怎么做?附方案及施工過程
閱讀次數:391783次
農村一層三間平房設計圖,告別土氣養老房,讓人忍不住點贊
閱讀次數:350581次
新農村二層樓房圖片造價12萬,挑一套回家建房吧!
閱讀次數:349126次
