
|
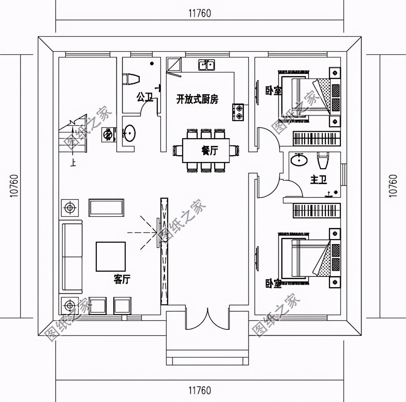
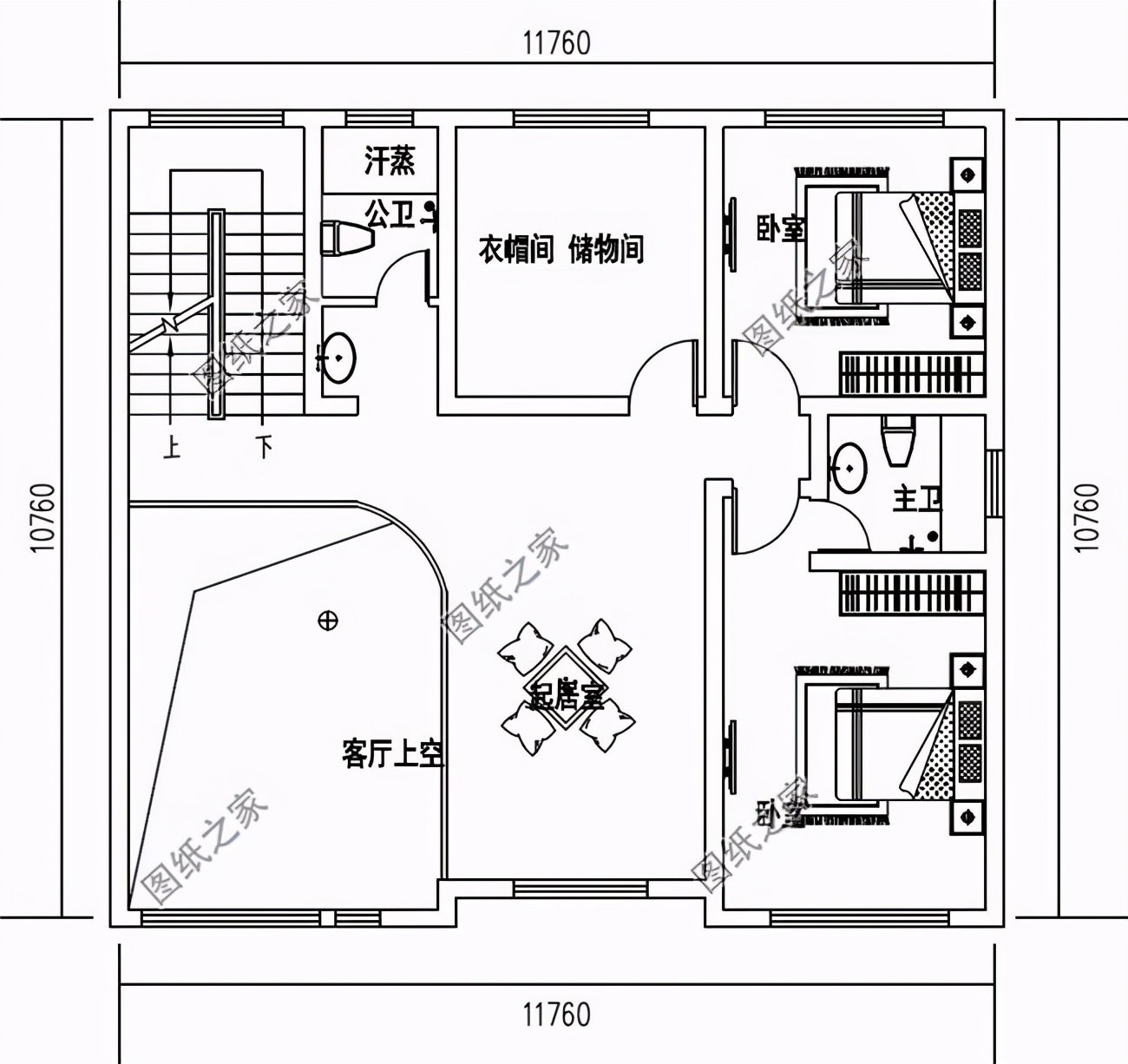
城里有房,老家有別墅,這才是圓滿人生。在老家,建一棟不大不小的別墅,閑暇時,帶著一家老小回去小住,偶爾體驗一下鄉村生活,也是一種享受。今天推薦三款農村二層半別墅設計圖圖以及戶型圖,帶露臺設計,占地適中,一家住正好,溫馨舒適。 第一款:現代時尚二層別墅設計圖以及戶型圖,平屋頂設計![]() ![]() ![]() 這款現代風格的別墅設計,新型材料的運用,幾何形狀的設計,藝術裝飾的設計,別墅的上上下下無不充斥著現代、時尚的感覺,整體外立面的設計語言非常簡潔,除了筆直的白墻就是各種形狀的窗戶。內部戶型十分合理,由于是平屋頂設計,屋頂的使用范圍很廣,為日常生活提供了便利。 占地面積:11.76m*10.76m,130平方米左右; 建筑層高:二層; 建筑高度:10米(含屋頂); 設計功能: 一層戶型:客廳、廚房、餐廳、臥室(帶衛生間)、臥室、衛生間; 二層戶型:客廳上空、起居室、臥室(帶衛生間)、臥室、衣帽間儲物間、衛生間 ![]() ![]() 第二款:農村二層半新中式別墅設計圖以及戶型圖,主體造價24萬左右![]() 平屋頂坡屋頂相結合,帶庭院規劃誰,漂亮經濟實用。整體配色和諧經典,讓人眼前一亮。坡屋頂和平頂的造型富有層次感,門廳的甄瓦不僅具有造型感,而且可以防止飄雨。三樓的露臺可打造空中花園,觀景聊天,舒適極了。獨樹一幟的新中式風格,比起中國人最愛的傳統中式,這種風格更現代、更時尚一點。 占地面積:13.14m*12.16m,140.68平方米左右; 建筑層高:二層; 建筑高度:11.44米(含屋頂); 設計功能: 一層戶型:客廳、廚房、餐廳、臥室(帶衣帽間)、衛生間; 二層戶型:起居室、臥室(帶衣帽間)、臥室x3、衛生間、陽臺; 三層戶型:儲藏室、露臺 ![]() ![]() ![]() 第三款:帶地下室(車庫)二層別墅設計圖,經典大氣![]() 帶地下室或架空層的別墅在農村比較常見,一可能是宅地比較低,避免潮濕,隔熱防水;二是面積不夠用,蓋個地下室來儲藏雜物等。此棟別墅的地下室是為了隔熱防潮,架空層比較低,車庫的門置在側面,為了整體的美觀性同時方便進出。旋轉樓梯加復式客廳,簡單實用的風格,布局很實用,很適合在農村建房使用。 占地面積:14.76m*11.86m,149.7平方米左右; 建筑層高:二層; 建筑高度:9.88米(含屋頂); 設計功能: 地下室:車庫、娛樂室、儲藏室; 一層戶型:客廳、廚房、餐廳、臥室(帶衛生間)、臥室、衛生間; 二層戶型:客廳上空、活動室、書房、臥室(帶衛生間)x2、臥室、陽臺 ![]() ![]() ![]() 小編推薦的農村二層半別墅設計圖以及戶型圖就到這里了,喜歡的就收藏吧!
圖紙之家-專注農村別墅/自建房設計18年,集合國內200余位經驗豐富的設計師,被評為口碑最好的農村建筑設計公司! |

經濟實用型二層農村小別墅設計圖,造價25萬內,外觀看起來時尚
占地:120平方米
占地160平米的二層簡歐別墅設計圖,外觀圖時尚漂亮
占地:160.28平方米
四間兩層別墅房屋設計圖,外觀效果圖好看
占地:235平方米
農村三層別墅新款圖片及戶型設計圖紙大全,110平簡歐風格
占地:110平方米左右
農村最漂亮平頂三層別墅設計圖,10.5乘11.5米
占地:119.35平方米
經典二層農村自建房屋別墅設計圖紙,占地110平米左右
占地:110平方米
農村15萬元二層小樓圖,占地100平米左右,簡單實用,戶型合理
占地:100平方米
鄉下建房一層平房設計圖紙及戶型圖,占地150平米左右
占地:150平方米
占地180平方米二層農村新款樓房別墅設計圖,外觀漂亮
占地:180平方米
帶地下室三層新農村房屋設計圖紙,外觀效果大氣
占地:220平方米
新款鄉村二層半別墅設計圖紙帶效果圖,三層別墅外觀圖片大全
占地:108.795平方米
最火現代風三層半別墅設計圖,時尚簡約寬敞舒適
占地:169平方米
七字形農村自建房二層設計圖,“L”型別墅設計,簡約時尚!
占地:209平米左右
小面寬的農村簡單四層2建平屋頂別墅設計圖,農村自建房首選
占地:109.29平方米
農村二層住宅樓圖紙及效果圖,帶地下室,戶型好
占地:220平方米
二層自建房屋設計圖,帶小院,帶地下室,外觀現代、時尚,內部
占地:200平米
農村平屋頂三層現代風別墅戶型圖,簡約實用經濟顏值高
占地:111.9平方米
鄉下二層樓房住宅設計圖紙及效果圖,農村二層小洋樓
占地:140平方米
大開間小進深的一層別墅設計圖,進深僅8.7米,獨立餐廚照樣美觀
占地:130.32平方米
豪華雙拼三層別墅設計圖,在農村建一棟,將是最靚的風景!
占地:186.85平方米
推薦:10套新農村自建房設計圖,2026年最新設計
閱讀次數:4825737次
100套鄉村別墅圖片大全,2026年最新設計
閱讀次數:2492203次
6款農村蓋一層平房的設計圖,10萬元就能建起來
閱讀次數:1852637次
這11個一層農村自建房別墅火爆了朋友圈!我最喜歡戶型十!你呢
閱讀次數:750268次
農村6萬元建一層小別墅圖,你敢相信嗎
閱讀次數:567686次
農村5萬塊就能自建房,6套普通房子設計圖分享,你沒看錯!
閱讀次數:419410次
8套農村漂亮三間平房圖片,非常適合在農村修建!
閱讀次數:411197次
農村自建房化糞池怎么做?附方案及施工過程
閱讀次數:391783次
農村一層三間平房設計圖,告別土氣養老房,讓人忍不住點贊
閱讀次數:350581次
新農村二層樓房圖片造價12萬,挑一套回家建房吧!
閱讀次數:349126次
