
|
如果宅基地足夠寬敞,別墅還是建得越大越好,外觀華麗大氣,內部設計可以更寬敞,也能放下更多的功能空間。下邊給大家推薦5套二層別墅,占地面積從大到小分別是350、250、240、220、210平米左右,非常適合家里宅基地面積足夠的家庭,建成之后在村里一定倍兒有面子! 第一套
正面效果圖
鳥瞰效果圖 占地面積:19.24m*18.00m(帶院子的尺寸),350平方米左右; 建筑層高:二層; 建筑高度:10.09米(含屋頂); 設計功能: 一層戶型:院子、車庫、客廳、餐廳、廚房、衛生間、臥室(帶衛生間)、儲藏間、大廳(根據實際情況隔斷); 二層戶型:客廳、臥室x5(其中2個臥室帶衛生間)、書房、露臺;
一層平面圖
二層平面圖 第二套
別墅效果圖 占地面積:18.20m*16.00m,250平方米左右; 建筑層高:二層; 建筑高度:10.15米(含屋頂); 設計功能: 一層戶型:門廳、客廳、廚房、餐廳、臥室(帶衛生間)、衛生間x2(可以做成一個)、車庫; 二層戶型:客廳、棋牌室、臥室x4(都帶衛生間,可以根據實際情況去掉)、衛生間;
一層平面圖
二層平面圖 第三套
正面效果圖
鳥瞰效果圖
背面效果圖 占地面積:20.5m*14.6m,240平方米左右; 建筑層高:二層; 建筑高度:9.9米(含屋頂); 設計功能: 一層戶型:堂屋、客廳、餐廳、廚房、土灶房、衛生間×2、臥室×2、棋牌室、儲藏間、車庫; 二層戶型:休閑廳、主臥(帶衛生間)×3、臥室x2、衛生間、大露臺;
一層平面圖
二層平面圖 第四套
正面效果圖
鳥瞰效果圖
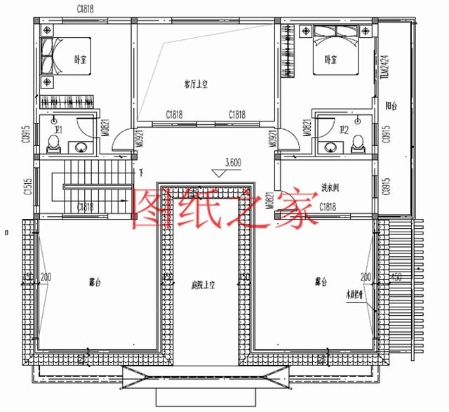
背面效果圖 占地面積:15.3m*14.6m,占地220平方米左右; 建筑層高:二層; 建筑高度:9.2米(含屋頂); 設計功能: 一層戶型:客廳、餐廳、廚房、衛生間、臥室(帶衛生間)×2、臥室; 二層戶型:客廳上空、臥室(帶衛生間)×2、洗衣間、大露臺×2、庭院上空;
一層平面圖
二層平面圖 第五套
別墅效果圖 占地面積:13.2m*16.2m,210平方米左右; 建筑層高:二層; 建筑高度:9.31米(含屋頂); 設計功能: 一層戶型:客廳、臥室、廚房、餐廳、衛生間、車庫、曬衣間 二層戶型:客廳、主臥(衣帽間、衛生間)、2臥室、衛生間、露臺
一層平面圖
二層平面圖 這幾套別墅的設計圖,你最喜歡哪一套? 圖紙之家-專注農村別墅/自建房設計18年,集合國內200余位經驗豐富的設計師,被評為口碑最好的農村建筑設計公司! |

二層自建房屋設計圖,帶小院,帶地下室,外觀現代、時尚,內部
占地:200平米
鄉村二層簡歐小戶型別墅圖設計,占地90平方米左右
占地:92.12平方米
面寬14.5米三層獨棟別墅設計圖,經典設計,大氣之作
占地:123.85平方米
新中式農村三層樓房設計圖,帶地下室,主體建筑面積110平米
占地:110平方米
120平方米新農村四層房屋設計圖紙和效果圖
占地:120平方米
120平米三層別墅房屋設計圖,帶車庫,帶閣樓
占地:120平方米
農村蓋房設計大全一層房子的設計圖紙,色調清新靚麗
占地:220平方米
復式別墅農村四層霸氣豪宅設計圖紙,建好你就是村里第一
占地:136.356平方米
115平漂亮的三層別墅設計方案,外觀圖片大氣、精致
占地:115平方米
農村四層樓房設計圖,占地120平方米,歐式風格,高端大氣
占地:120平方米
帶架空層的兩層別墅設計圖,通透又明亮,建在農村絕對有面子
占地:106.79平方米
古典韻味的四層房屋設計圖,占地140平米左右,這樣的外觀配上紅
占地:140平方米
簡單的復式住宅設計圖,客廳挑高,帶外觀效果圖片
占地:148平方米
進深15米新農村三層房屋設計圖紙,農村住宅設計圖集
占地:128平方米
13x13米簡單二層帶閣樓最新別墅設計圖,精致美觀
占地:158.5平方米
占地70平方米的三層獨棟別墅設計圖,小戶型自建房屋效果圖
占地:70平方米左右
新中式復式三層別墅設計圖紙,最美的新中式別墅
占地:130平方米
面寬8米農村二間二層小別墅設計方案,施工簡單造價低
占地:73.77平方米
農村小別墅一層設計圖紙,全套施工圖兩款戶型可選
占地:多種戶型可選
150平方米自建現代二層別墅施工設計圖帶外觀圖,15x10米
占地:多戶型可選
推薦:10套新農村自建房設計圖,2026年最新設計
閱讀次數:4825737次
100套鄉村別墅圖片大全,2026年最新設計
閱讀次數:2492203次
6款農村蓋一層平房的設計圖,10萬元就能建起來
閱讀次數:1852637次
這11個一層農村自建房別墅火爆了朋友圈!我最喜歡戶型十!你呢
閱讀次數:750268次
農村6萬元建一層小別墅圖,你敢相信嗎
閱讀次數:567686次
農村5萬塊就能自建房,6套普通房子設計圖分享,你沒看錯!
閱讀次數:419410次
8套農村漂亮三間平房圖片,非常適合在農村修建!
閱讀次數:411197次
農村自建房化糞池怎么做?附方案及施工過程
閱讀次數:391783次
農村一層三間平房設計圖,告別土氣養老房,讓人忍不住點贊
閱讀次數:350581次
新農村二層樓房圖片造價12萬,挑一套回家建房吧!
閱讀次數:349126次
