
|
伴隨著農村經濟的發展,農村人口不斷增加,現在農村自建房的隊伍日益壯大,但是宅基地的審批卻是大不如前,很多家庭好不容易審批下來的的宅基地只有一百多平方米了。好多人覺得這么小的宅基地根本不夠用,但是想想城里的商品房,一百平方米完全足夠一家四口居住了。如果再蓋成兩三層的小別墅,三代人住在一起也不在話下。今天給大家介紹4套小戶型的三層別墅,新穎別致、美觀大氣,適合宅基地面積較小的家庭修建! 第一套
別墅效果圖 占地面積:9.00m*10.5m,占地95平方米左右; 建筑層高:三層; 建筑高度:11.20米(含屋頂); 設計功能: 一 層:門廳、大客廳、廚房、餐廳、衛生間、主臥(帶衛生間); 二 層:小客廳、主臥(帶衛生間)、臥室x2、衛生間、露臺x2; 三 層:起居室(娛樂室)、臥室x2、衛生間、衣帽間、大露臺(屋頂花園);
一層平面圖
二層平面圖
三層平面圖 第二套
別墅效果圖 占地面積:11.10m*9.70m,一層建筑面積100平方米左右; 建筑層高:三層; 建筑高度:12.14米(含屋頂); 設計功能: 一 層:玄關、客廳、廚房、餐廳、臥室、衛生間、洗衣房; 二 層:客廳上空、小客廳、臥室x3、衛生間、露臺; 三 層:小客廳、臥室x3、衛生間、大露臺;
一層平面圖
二層平面圖
三層平面圖 第三套
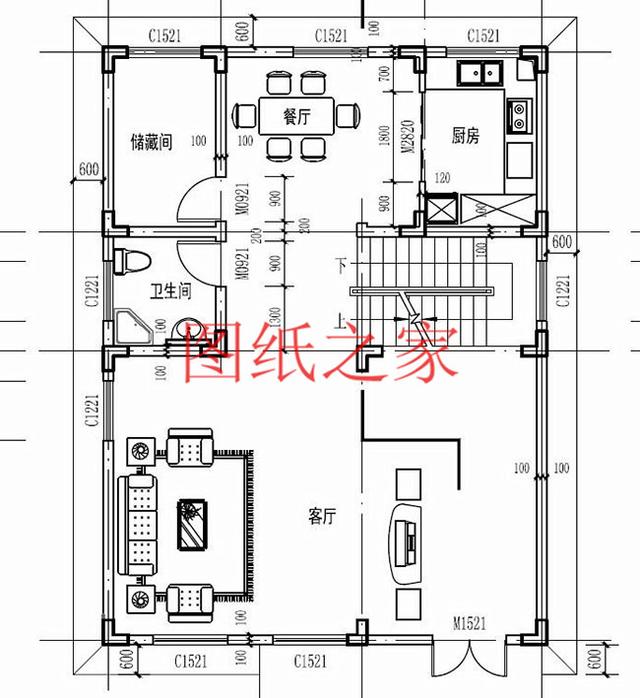
別墅效果圖 占地面積:8.9m*12.0m,106平方米左右; 建筑層高:三層; 建筑高度:12.00米(含屋頂); 設計功能: 一 層:客廳、餐廳、廚房、儲藏間、衛生間; 二 層:客廳、主臥(帶衛生間)、臥室、衛生間、露臺; 三 層:起居室、臥室x3(帶衛生間)、大露臺;
一層平面圖
二層平面圖
三層平面圖 第四套
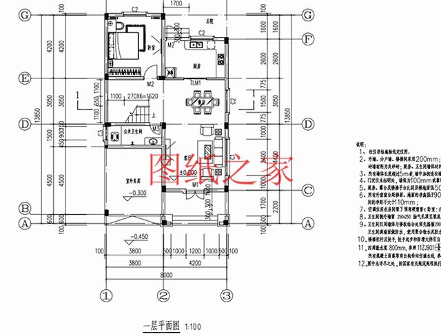
別墅效果圖 占地面積:8m*13.85m,110平方米左右; 建筑層高:三層; 建筑高度:11.53米(含屋頂); 設計功能: 一 層:客廳、廚房、餐廳、多功能房、臥室、室外車庫 二 層:客廳、主臥室、臥室、陽臺 三 層:臥室x2、儲藏間、露臺、陽臺
一層平面圖
二層平面圖
三層平面圖
圖紙之家-專注農村別墅/自建房設計18年,集合國內200余位經驗豐富的設計師,被評為口碑最好的農村建筑設計公司! |

歐式獨棟二層小別墅設計圖,客廳中空,占地126平米
占地:120平方米
造型新穎漂亮的農村二層現代風別墅設計圖,老少皆宜的外觀
占地:144.54平方米
農村一層小別墅設計圖,經濟大氣,16米乘9米
占地:124.12平方米
農村60萬三層別墅新款式設計圖,外觀和實用性并駕齊驅
占地:170平方米
徽派3層農村小別墅設計圖,廣東新農村住宅設計圖集
占地:110平方米
四層巴洛克別墅設計圖,旋轉樓梯搭配超大挑空客廳,很有氣勢
占地:146平方米
120平米三層別墅房屋設計圖,帶車庫,帶閣樓
占地:120平方米
130平新農村三層房屋設計圖紙,預算30萬以內,蓋房推薦
占地:132平方米
一層中式七字型房屋設計圖,帶院子經典設計,耐看不過時
占地:163.18平方米
造價33萬左右超漂亮的三層別墅圖紙設計圖,旋轉樓梯戶型設計
占地:121.59平方米
戶型獨特的、二層臥室挑高的別墅房屋設計圖,外觀簡歐風格
占地:250平方米
預算30萬三層樓房設計圖含效果圖,戶型經典
占地:125平方米
12x10三層別墅設計圖,農村自建房推薦戶型
占地:120平方米
歐式風格高檔三層別墅設計圖紙,帶高清外觀效果圖
占地:105平方米
簡單的二層樓房圖片及設計方案,自建樓房必看
占地:140平方米
被包工頭夸爆的二層別墅戶型!建好未來幾年必火
占地:189.98平方米
三層帶車庫樓中樓建房別墅圖紙,占地130平米左右,戶型室內布局
占地:130平方米
最漂亮五間一層自建別墅設計圖,布局實用顏值高!
占地:多戶型可選
180平方米新農村三層別墅設計圖紙,效果圖+全套cad施工圖
占地:180平方米
三層平頂現代別墅設計圖,實用不花冤枉錢,建好倍有面子
占地:113.02平方米
推薦:10套新農村自建房設計圖,2026年最新設計
閱讀次數:4825737次
100套鄉村別墅圖片大全,2026年最新設計
閱讀次數:2492203次
6款農村蓋一層平房的設計圖,10萬元就能建起來
閱讀次數:1852637次
這11個一層農村自建房別墅火爆了朋友圈!我最喜歡戶型十!你呢
閱讀次數:750268次
農村6萬元建一層小別墅圖,你敢相信嗎
閱讀次數:567686次
農村5萬塊就能自建房,6套普通房子設計圖分享,你沒看錯!
閱讀次數:419410次
8套農村漂亮三間平房圖片,非常適合在農村修建!
閱讀次數:411197次
農村自建房化糞池怎么做?附方案及施工過程
閱讀次數:391783次
農村一層三間平房設計圖,告別土氣養老房,讓人忍不住點贊
閱讀次數:350581次
新農村二層樓房圖片造價12萬,挑一套回家建房吧!
閱讀次數:349126次
