
|
建筑材料價格上漲,房價也漲,對于普通家庭來說,擁有屬于自己的一套房子可真不容易,可能要花上一輩子的積蓄,還要還房貸,累還不要緊,每天忙忙碌碌,每個月的生活費都要精打細算,過著緊巴巴的日子,也沒有多少存款。很多人也受夠了這樣的日子,決定會農村老家蓋棟新房子,留在老家發展。 二層別墅對于農村來說,是一種比較實用的戶型,很多農村家庭建房都比較喜歡蓋二層,今天小編為大家分享1款12x11米二層農村小別墅設計圖。
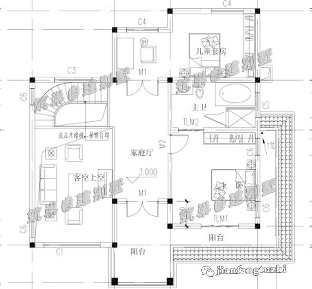
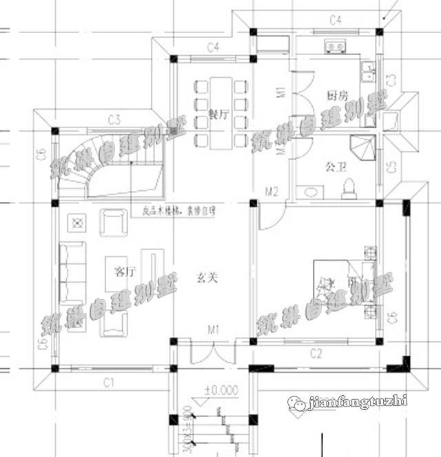
本戶型精致大方,通風采光效果好,戶型方正,動靜明確合理,干濕分明,窗戶設計多樣,功能分配明確。 圖紙詳情 層數: 二層 結構形式: 磚混結構 主體造價: 15-17萬 開間: 11.94米 進深: 11.44米 占地面積: 136.6平方米 建筑面積: 243平方米 功能設計及平面布局圖:
一層平面圖 一 層:餐廳、廚房、衛生間、客廳、玄關、臥室
二層平面圖 二 層: 客廳上空、家庭廳、臥室、兒童套房、陽臺、衛生間
圖紙之家-專注農村別墅/自建房設計18年,集合國內200余位經驗豐富的設計師,被評為口碑最好的農村建筑設計公司! |

歐式二層別墅平面圖,全套cad設計圖紙和外觀效果圖
占地:202平方米
帶開放式車庫二層農村自建別墅設計方案,造價僅15萬
占地:89.412平方米
農村自建超漂亮中式四合院別墅設計圖,22X25米
占地:473平方米
二層半農村小別墅設計方案圖,南方設計圖精選
占地:82平方米
160平方米現代新農村四合院兩層別墅施工圖紙及效果圖
占地:157平方米
鄉下120平米二層樓房設計圖,23萬就可以建漂亮別墅
占地:120平方米
農村三層半別墅設計圖及外觀效果圖,三層半樓房設計方案推薦
占地:100平方米
17X12米三層雙拼別墅自建房設計圖,歐式風格,戶型方正
占地:190平方米
最新設計的三層農村別墅圖紙,帶車庫,帶露臺,占地150平米左右
占地:150平方米
豪華二層別墅設計圖紙及效果圖,帶車庫,歐式別墅方案
占地:170平方米
12x12農村三層別墅設計圖,自建房屋推薦戶型
占地:148平方米
100平米兩間三層樓房設計圖,農村蓋房舒服實用最重要
占地:100平方米
200平方二層小別墅設計圖紙,含效果圖,歐式風格帶車庫
占地:197.6平方米
面寬15米一層四間現代風別墅,外觀漂亮布局實用,養老度假超巴
占地:180平方米
2026年最新款四間二層別墅設計圖,15米乘13米
占地:171.01平方米
200平農村二層別墅設計圖,外觀現代簡約
占地:204平方米
130平四間二層小洋樓設計圖,含外觀圖片
占地:130平方米
26萬二層平頂別墅樓設計圖,客廳中空,占地120平米
占地:120平方米
最火現代風三層半別墅設計圖,時尚簡約寬敞舒適
占地:169平方米
四合院別墅設計效果圖及平面圖,全套施工圖紙
占地:220平方米
推薦:10套新農村自建房設計圖,2026年最新設計
閱讀次數:4825737次
100套鄉村別墅圖片大全,2026年最新設計
閱讀次數:2492203次
6款農村蓋一層平房的設計圖,10萬元就能建起來
閱讀次數:1852637次
這11個一層農村自建房別墅火爆了朋友圈!我最喜歡戶型十!你呢
閱讀次數:750268次
農村6萬元建一層小別墅圖,你敢相信嗎
閱讀次數:567686次
農村5萬塊就能自建房,6套普通房子設計圖分享,你沒看錯!
閱讀次數:419410次
8套農村漂亮三間平房圖片,非常適合在農村修建!
閱讀次數:411197次
農村自建房化糞池怎么做?附方案及施工過程
閱讀次數:391783次
農村一層三間平房設計圖,告別土氣養老房,讓人忍不住點贊
閱讀次數:350581次
新農村二層樓房圖片造價12萬,挑一套回家建房吧!
閱讀次數:349126次
