
|
現在走進農村,你就會發現農村的面貌正在發生翻天覆地的變化,許多美觀大氣的農村別墅亭亭玉立。雖然大家的生活水平有了顯著提高,但是在建房方面還是需要謹慎一點,奢華復雜的別墅設計對于普通人來說成本太高,簡單大氣才受大家的歡迎。今天給大家帶來6套二層別墅設計,看看有沒有你喜歡的。 第一套
正面效果圖
背面效果圖
鳥瞰圖 占地面積:12.00m*10.80m,130平方米左右; 建筑高度:9.06米(含屋頂); 設計功能: 一層戶型:玄關、客廳、餐廳、廚房、衛生間、臥室(衛生間)、儲藏間(樓梯下面); 二層戶型:客廳、主臥(帶衛生間和書房或衣帽間)、臥室x2、衛生間、露臺、陽臺;
一層平面圖
二層平面圖
立面圖 第二套
正面效果圖
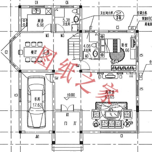
背面效果圖 占地面積:15.10m*11.70m,175平方米左右; 建筑高度:9.90米(含屋頂); 設計功能: 一層戶型:門廳、客廳、餐廳、廚房、衛生間、臥室x3(2個臥室帶衛生間,衛生間建造時可以根據需求調整); 二層戶型:客廳上空、休息區、臥室x3(其中2個臥室帶衛生間,衛生間建造時可以根據需求調整)、衛生間、露臺x2;
一層平面圖
二層平面圖
立面圖 第三套
正面效果圖
鳥瞰圖 占地面積:12.30m*13.50m,165平方米左右; 建筑高度:8.47米(含屋頂); 設計功能: 一層戶型:客廳、餐廳、廚房、衛生間、臥室(帶衛生間)、車庫(可以做臥室); 二層戶型:主臥(帶衛生間)、臥室(帶書房、衣帽間、露臺)、臥室、室內露臺;
一層平面圖
二層平面圖
立面圖 第四套
別墅效果圖 占地面積:12.30m*9.50m,118平方米左右; 建筑高度:10.8米(含屋頂); 設計功能: 一層戶型:堂房、客廳、餐廳、廚房、衛生間、臥室、雜物間; 二層戶型:主臥(帶衛生間)、臥室x3、書房、衛生間、露臺; 閣樓戶型:閣樓(可以自定義功能區)
一層平面圖
二層平面圖
閣樓平面圖
立面圖 第五套
別墅效果圖 占地面積:10.20m*9.90m,100平方米左右; 建筑高度:9.50米(含屋頂); 設計功能: 一層戶型:客廳、餐廳、廚房、主臥(帶衛生間)、衛生間、儲藏間(樓梯下); 二層戶型:客廳、臥室x3、衛生間、露臺、陽臺;
一層平面圖
二層平面圖
立面圖 第六套
別墅效果圖 占地面積:12.50m*11.00m,一層建筑面積125平方米左右; 建筑高度:9.80米(含屋頂); 設計功能: 一層戶型:走廊、門廳、客廳、餐廳、廚房、臥室x2、衛生間、儲藏間(樓梯下面); 二層戶型:客廳、主臥(帶書房)、臥室x2、衛生間、陽臺; 附帶挑高二層戶型:客廳上空、主臥(帶書房)、臥室x2、衛生間、陽臺;
一層平面圖
二層平面圖
客廳挑空二層平面圖
立面圖 這6套別墅的設計圖,你最喜歡哪一套? 圖紙之家-專注農村別墅/自建房設計18年,集合國內200余位經驗豐富的設計師,被評為口碑最好的農村建筑設計公司! |

新中式三層樓房設計圖紙,帶地下室,地下車庫,帶電梯
占地:230平方米
后面帶小院的農村房屋設計圖,適合鄉村自建
占地:300平方米
185平方米二層自建別墅設計施工圖紙及外觀效果圖,15x13米
占地:186平方米
現代風格二層別墅設計圖,外觀時尚、大氣
占地:153平方米
三層平頂現代別墅設計圖,實用不花冤枉錢,建好倍有面子
占地:113.02平方米
150平方米大平層別墅設計圖,時尚大氣舒適實用
占地:149.43平方米
2026新款三層小別墅設計圖,占地150平米,帶地下室
占地:150平方米
面寬11米超實用的農村一層別墅設計圖,南北通透造價不高
占地:110.47平方米
120平二層別墅房屋設計圖,造型美觀、現代
占地:120平方米
三層農村自建房別墅設計圖紙,大廳中空,外觀高端大氣
占地:230平方米
兩層半20多萬復式農村自建房設計圖,經典不過時戶型
占地:120平方米
80平方米農村四層房屋設計圖紙及效果圖
占地:80平方米
獨棟二層別墅cad設計圖紙,平屋頂自建別墅方案精選
占地:190平方米
新款240平方米三層雙拼別墅設計圖,歐式兄弟雙拼圖片
占地:240平方米
經典的農村三層小樓房設計圖,外觀圖片時尚、精致
占地:100平方米
精致農村別墅圖,150平米一層三合院設計,四臥二廳舒適宜居
占地:149.43平方米
最新潮的90平方米三層房屋設計圖 ,古樸典雅又不失時尚
占地:90平方米
150平米田園風格二層別墅設計圖紙,沉穩大氣有內涵
占地:150平方米
200平方米農村二層中式四合院設計圖,含外觀圖片
占地:200平方米
2026年新款別墅外觀圖及全套施工圖紙,占地面積13×10米
占地:130平方米
推薦:10套新農村自建房設計圖,2026年最新設計
閱讀次數:4825737次
100套鄉村別墅圖片大全,2026年最新設計
閱讀次數:2492203次
6款農村蓋一層平房的設計圖,10萬元就能建起來
閱讀次數:1852637次
這11個一層農村自建房別墅火爆了朋友圈!我最喜歡戶型十!你呢
閱讀次數:750268次
農村6萬元建一層小別墅圖,你敢相信嗎
閱讀次數:567686次
農村5萬塊就能自建房,6套普通房子設計圖分享,你沒看錯!
閱讀次數:419410次
8套農村漂亮三間平房圖片,非常適合在農村修建!
閱讀次數:411197次
農村自建房化糞池怎么做?附方案及施工過程
閱讀次數:391783次
農村一層三間平房設計圖,告別土氣養老房,讓人忍不住點贊
閱讀次數:350581次
新農村二層樓房圖片造價12萬,挑一套回家建房吧!
閱讀次數:349126次
