
|
想要回農村建一所小房子,不需要很多錢,30萬就能建的起,有一個小房子,圍個小院子,種點花花草草,喂點小鴨小雞,有遠方也有詩意,這樣的生活神仙都羨慕。
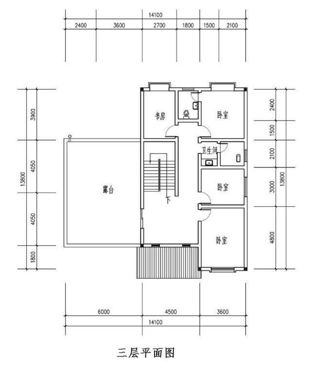
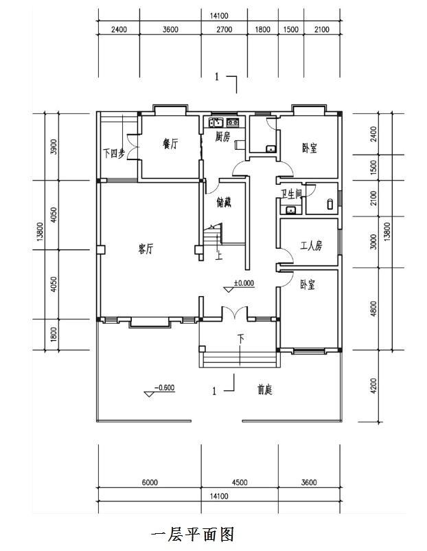
這款二層別墅設計圖開間14.1米,進深13.8米,占地面積194.58平方米含院子,建筑面積440.55平方米,采用的是三層磚混結構,主體造價30萬左右。
設計功能非常的全,一層有寬敞的客廳、2間臥室,一間工人房,廚房、餐廳、衛生間和儲藏室都有;二層設計有3間臥室、2衛生間、一個大的休閑廳、露臺和書房;三層設計有3臥室、2衛生間、書房和屋頂露臺。
圖紙之家-專注農村別墅/自建房設計18年,集合國內200余位經驗豐富的設計師,被評為口碑最好的農村建筑設計公司! |

二層新中式別墅設計施工圖,廚房在配房,占地140平米
占地:141平方米
三層現代別墅設計圖紙,全套私人別墅圖紙(含外觀效果圖)
占地:170.38平方米
給爸媽建養老房?100 平人字坡一層房太合適!簡約低調還實用
占地:102.6平方米
一層新中式三合院設計,建好城里大平層都不香了
占地:294.12平方米
160平方米三層帶大露臺的復式別墅設計圖紙
占地:155平方米
一層中式四合院別墅設計圖,符合國人審美,簡單大氣穩妥沉穩
占地:388平方米
農村最好看兩層小樓圖及全套CAD施工圖紙,新中式風格,簡潔大氣
占地:150平方米
140平米平屋頂二層新農村自建房設計圖,極簡主義設計 ,實用優
占地:143平方米
14米乘10米農村二層別墅新款,外觀對稱設計,經久耐看!
占地:140平方米
巴洛克風格農村二層別墅設計圖(偏法式),對稱式設計,太講究
占地:210.25平方米
80平方米二層房屋設計圖,造價10萬左右
占地:80平方米
時尚耐看現代二層農村別墅設計圖,14米×11米,年輕人建房的不二
占地:138.125平方米
百余平三層豪華別墅設計圖,高品位穩重耐看,全村都羨慕的豪華
占地:108.95平方米
農村二層半樓房設計圖及效果圖,歐式風格
占地:150平方米
復式挑空二層別墅設計圖,占地175平米,建好住著很舒適
占地:175.44平方米
14×12米二層自建房蓋別墅設計圖,簡單對稱也很漂亮
占地:157.868平方米
占地180平方米二層鄉村小洋樓設計戶型圖及圖紙,外觀華麗
占地:180平方米
140平方米三層半新農村房屋別墅設計圖,帶車庫
占地:140平方米
80平方米新農村二層房屋設計圖紙,造價15萬左右
占地:80平方米
現代二層樓房圖片造價25萬,含全套設計圖,風格獨特
占地:多戶型可選
推薦:10套新農村自建房設計圖,2026年最新設計
閱讀次數:4825737次
100套鄉村別墅圖片大全,2026年最新設計
閱讀次數:2492203次
6款農村蓋一層平房的設計圖,10萬元就能建起來
閱讀次數:1852637次
這11個一層農村自建房別墅火爆了朋友圈!我最喜歡戶型十!你呢
閱讀次數:750268次
農村6萬元建一層小別墅圖,你敢相信嗎
閱讀次數:567686次
農村5萬塊就能自建房,6套普通房子設計圖分享,你沒看錯!
閱讀次數:419410次
8套農村漂亮三間平房圖片,非常適合在農村修建!
閱讀次數:411197次
農村自建房化糞池怎么做?附方案及施工過程
閱讀次數:391783次
農村一層三間平房設計圖,告別土氣養老房,讓人忍不住點贊
閱讀次數:350581次
新農村二層樓房圖片造價12萬,挑一套回家建房吧!
閱讀次數:349126次
