
|
現在城市化是大的趨勢,但是城市里交通擁堵、空氣污染,還有嚴重的噪聲,這些都遠遠比不了農村。好多人都想等孩子長大了、可以獨立了,就回老家修棟別墅,想要多大就修多大! 下邊給大家推薦6套二層別墅圖紙,看看有沒有喜歡的吧! 第一套
正面效果圖
背面效果圖
鳥瞰圖 占地面積:14.8m*9.3m,138平方米左右(不含走廊); 建筑高度:8.63米(含屋頂); 設計功能: 一層戶型:門廳、客廳、廚房、餐廳、儲藏間、臥室x2、衛生間、雜物間; 二層戶型:健身廳、客廳、主臥(帶書房)、臥室x2、書房、衛生間、陽臺;
一層平面圖
二層平面圖
立面圖 第二套
別墅效果圖 占地面積:11.9m*10.2m,120平方米左右; 建筑高度:8.47米(含屋頂); 設計功能: 一層戶型:玄關、客廳、餐廳、廚房、儲藏間、主臥(含衛生間)、衛生間; 二層戶型:客廳、主人套間(含衛生間、衣帽間、書房)、臥室、衛生間、露臺;
一層平面圖
二層平面圖
立面圖 第三套
正面效果圖
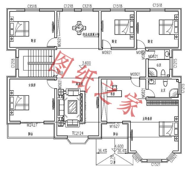
鳥瞰圖 占地面積:17.4m*14.4m,一層建筑面積235平方米左右; 建筑高度:9.00米(含屋頂); 設計功能: 一層戶型:玄關、客廳、餐廳、廚房、主臥(帶衛生間)、臥室x2、衛生間、儲藏間(樓梯下,或洗衣房); 二層戶型:起居室、棋牌室、主臥套房(帶衛生間和書房)、臥室x4、衛生間、陽臺;
一層平面圖
二層平面圖
立面圖 第四套
別墅效果圖 占地面積:14.8m*12.4m,一層建筑面積180平方米左右; 建筑高度:9.6米(含屋頂); 設計功能: 一層戶型:門廳、客廳、臥室、廚房、餐廳、主臥(帶衛生間)、臥室、衛生間、洗衣房(或自定義)、儲物間; 二層戶型:客廳、主臥(帶衛生間)、臥室x2、書房、娛樂房、衛生間、陽臺x2;
一層平面圖
二層平面圖
立面圖 第五套
正面效果圖
背面效果圖 占地面積:20.7m*11.7m,240平方米左右(不含走廊); 建筑高度:8.60米(含屋頂); 設計功能: 一層戶型:門廳、客廳、餐廳、廚房、娛樂室、臥室x4(其中2個帶衛生間)、衛生間、儲藏間、走廊(走廊可以不建); 二層戶型:起居室、臥室x4、大套房(帶衛生間、衣帽間、書房)、衛生間、露臺x2、陽臺x2;
一層平面圖
二層平面圖
立面圖 第六套
正面效果圖
背面效果圖 占地面積:11.1m*10.8m,120平方米左右; 建筑高度:10.08米(含屋頂); 設計功能: 一層戶型:玄關、客廳、餐廳、廚房、臥室x2、衛生間; 二層戶型:小客廳、休息區(棋牌室)、臥室x4、衛生間;
一層平面圖
二層平面圖
立面圖
圖紙之家-專注農村別墅/自建房設計18年,集合國內200余位經驗豐富的設計師,被評為口碑最好的農村建筑設計公司! |

高端大氣三層半別墅客廳挑空設計,豪華農村自建房圖
占地:179.52平方米
帶KTV的四開間的二層別墅設計圖,造型美觀經濟實用
占地:240.22平方米
一層4間自建平房別墅及全套戶型圖紙,占地160平左右,簡單實用
占地:162.13平方米
可以傳家的新中式二層別墅,經典耐看,再過幾十年也不過時
占地:146.81平方米
農村一層五間(6間)新農村設計圖方案,含外觀圖片
占地:193.47平方米
13x13米簡單二層帶閣樓最新別墅設計圖,精致美觀
占地:158.5平方米
120平米簡單實用型農村小別墅設計圖,二層屋頂為全露臺,小開間
占地:120平方米
農村自建房三間設計圖,花錢少效果好12米乘9米,經濟適用性價比
占地:108.9平方米
90平米三層農村房子設計圖,簡單大氣實用
占地:94.28平方米
歐式三層雙拼別墅設計圖,精致大氣布局實用,兄弟建房上上之選
占地:234平方米
帶架空層一層農村別墅設計圖,回鄉建房優選,家有豪宅幸福來敲
占地:124.76平方米
農村四間二層別墅設計方案圖,外觀精致、時尚
占地:152平方米
四層(三層半)復式別墅設計圖片大全,歐式風格
占地:174平方米
二層小別墅設計方案圖,平頂設計帶cad施工圖和外觀效果圖
占地:147平方米
20萬左右農村雙拼別墅住宅設計圖,簡單小戶型設計
占地:120平方米
時尚大氣的三層現代風別墅設計圖,露臺+挑空客廳
占地:321平方米
田園輕奢三層帶露臺的鄉村別墅設計圖紙,11x10米
占地:106.64平方米
12x10米農村建房圖紙,客廳中空,讓你后半輩子在稱贊聲中度過
占地:120平方米
180平方別墅房屋設計圖,外觀效果圖美觀
占地:180平方米
簡單平房農村自建一層別墅設計圖,時尚大氣,造價經濟
占地:166平方米
推薦:10套新農村自建房設計圖,2026年最新設計
閱讀次數:4825737次
100套鄉村別墅圖片大全,2026年最新設計
閱讀次數:2492203次
6款農村蓋一層平房的設計圖,10萬元就能建起來
閱讀次數:1852637次
這11個一層農村自建房別墅火爆了朋友圈!我最喜歡戶型十!你呢
閱讀次數:750268次
農村6萬元建一層小別墅圖,你敢相信嗎
閱讀次數:567686次
農村5萬塊就能自建房,6套普通房子設計圖分享,你沒看錯!
閱讀次數:419410次
8套農村漂亮三間平房圖片,非常適合在農村修建!
閱讀次數:411197次
農村自建房化糞池怎么做?附方案及施工過程
閱讀次數:391783次
農村一層三間平房設計圖,告別土氣養老房,讓人忍不住點贊
閱讀次數:350581次
新農村二層樓房圖片造價12萬,挑一套回家建房吧!
閱讀次數:349126次
