
|
在大家心里,別墅是一個美好生活的象征,如果能給自己修建一棟小別墅,絕對是一大樂事。所以現在很多條件合適的家庭在自建房的時候就會選擇修建別墅,與過去那些灰暗陳舊的房子相比,不僅外觀更加新穎別致,住起來也舒適方便了許多。 下邊給大家推薦7套農村三層別墅,占地150平造價不到40萬,一起來看看吧! 第一套
正面效果圖
鳥瞰效果圖
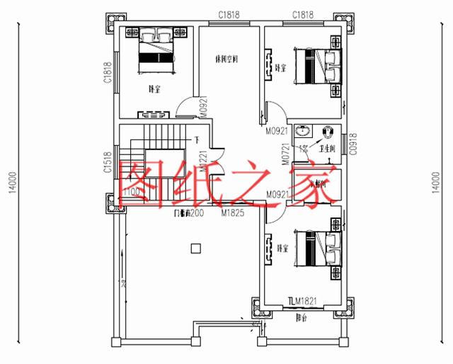
背面效果圖 占地面積:12.8m*12.0m,150平方米左右; 建筑高度:11.9米(含屋頂); 設計功能: 一層戶型:客廳、餐廳、廚房、主臥(帶衛生間)、衛生間、儲藏間; 二層戶型:客廳、主臥(帶衛生間)、臥室x3、衛生間、陽臺x2; 三層戶型:主臥(帶衛生間)、臥室x2、衛生間、大露臺;
一層平面圖
二層平面圖
三層平面圖 第二套
正面效果圖
鳥瞰效果圖
背面效果圖 占地面積:12.5m*12.4m,一層占地150平方米左右; 建筑高度:11.7米(含屋頂); 設計功能: 地下戶型:功能自定義; 一層戶型:客廳、廚房、餐廳、臥室(帶衛生間)、茶室、衛生間; 二層戶型:客廳上空、起居室、臥室(帶衛生間)、臥室x2、衛生間、書房; 三層戶型:臥室x3、書房、衛生間、大露臺;
地下平面圖
一層平面圖
二層平面圖
三層平面圖 第三套
正面效果圖
鳥瞰效果圖
背面效果圖 占地面積:10.0m*17.0m,一層占地150平方米左右(含外門庭); 建筑高度:12.7米(含屋頂); 設計功能: 一層戶型:客廳、廚房、土灶房、餐廳、臥室、衛生間、車庫(可以做成臥室); 二層戶型:客廳、臥室(帶衣帽間)、臥室x2、衛生間、書房; 三層戶型:臥室(帶衣帽間)、臥室x2、休閑空間、衛生間、大露臺;
一層平面圖
二層平面圖
三層平面圖 第四套
正面效果圖
鳥瞰效果圖
背面效果圖 占地面積:14.0m*11.0m,一層占地150平方米左右; 建筑高度:11.4米(含屋頂); 設計功能: 一層戶型:廚房、餐廳、辦公室(帶衛生間)、辦公室×3、衛生間;(辦公室可作臥室); 二層戶型:客廳、臥室(帶衛生間)×2、臥室x3、衛生間、陽臺; 三層戶型:客廳、臥室(帶衛生間)、臥室x2、衛生間、露臺×2;
一層平面圖
二層平面圖
三層平面圖 第五套
正面效果圖
鳥瞰效果圖
背面效果圖 占地面積:12.0m*14.1m,一層占地150平方米左右(含外門庭); 建筑高度:13.08米(含屋頂); 設計功能: 一層戶型:客廳、廚房、餐廳、臥室×2、棋牌室、衛生間、洗衣房; 二層戶型:客廳、臥室x4、衛生間、陽臺; 三層戶型:臥室x3、書房就、衛生間、大露臺;
一層平面圖
二層平面圖
三層平面圖 第六套
別墅效果圖 占地面積:11.88m*12.88m,150平方米左右; 建筑高度:12.03米(含屋頂); 設計功能: 一層戶型:玄關、客廳、餐廳、廚房、棋牌室、主臥(帶衛生間)、臥室、衛生間; 二層戶型:客廳、主臥(帶衛生間)、主臥(帶衣帽間和衛生間)、臥室x3、衛生間、陽臺x2; 三層戶型:客廳、主臥(帶衛生間和衣帽間)、臥室x2、衛生間、露臺x2;
一層平面圖
二層平面圖
三層平面圖 第七套
別墅效果圖 占地面積:12.9m*11.6m,150平方米左右; 建筑高度:12.0米(含屋頂); 設計功能: 一層戶型:客廳、茶廳、餐廳、廚房、儲藏室、衛生間; 二層戶型:臥室x3、衛生間; 三層戶型:臥室x2、衛生間、陽臺X2;
一層平面圖
二層平面圖
三層平面圖 這幾套別墅的設計圖,你最喜歡哪一套? 圖紙之家-專注農村別墅/自建房設計18年,集合國內200余位經驗豐富的設計師,被評為口碑最好的農村建筑設計公司! |

2026年最新三層房屋設計圖紙,12米×11米,實用接地氣
占地:130平方米
10萬農村別墅設計圖小戶型,經濟、耐看、實用
占地:多種戶型
140平方米清新別致新農村兩層房屋設計圖紙大全12x13米
占地:140平方米
兄弟四間三層雙拼別墅設計圖,造價40萬左右
占地:210平方米
8×12米農村三層別墅自建房設計圖,小開間精選方案
占地:103平方米
12米乘9米占地百平一層平房戶型設計圖,布局寬敞大氣又舒適
占地:108平方米
農村三層帶露臺、帶車庫房屋設計圖,含外觀圖片
占地:155平方米
新中式農村兄弟合建三層雙拼別墅全套設計圖紙,3款戶型方案
占地:多種戶型
農村三間三層豪宅設計圖,自建別墅推薦戶型,帶地下室
占地:170平方米
帶堂屋設計一層三合院設計圖,白墻黛瓦古韻悠悠,比高層舒服接
占地:179.37平方米
高端大氣中式四合院二層別墅小樓設計圖,外觀古香古色
占地:213平方米
超實用的農村一層別墅設計圖,經濟實惠養老自住都不錯,
占地:128.35平方米
農村兩層帶地下室別墅設計圖,還帶庭院規劃,適合農村建
占地:144.5平方米
新款的農村自建房子中式二層四合院別墅設計圖,占地300平左右
占地:304平方米
帶堂屋新農村三層房屋別墅設計圖紙,帶外觀效果圖
占地:214平方米
二層農村自建小別墅設計圖,歐式風格,占地160平方米
占地:160平方米
最新潮的90平方米三層房屋設計圖 ,古樸典雅又不失時尚
占地:90平方米
200平方米別墅設計圖紙(含效果圖),農村別墅方案精選
占地:200.26平方米
背面不開窗二層別墅設計圖,對稱設計簡單好看,眾多建房者的選
占地:183.79平方米
豪華大氣三層農村房屋設計圖,對稱的主體設計大氣恢宏
占地:240平方米
推薦:10套新農村自建房設計圖,2026年最新設計
閱讀次數:4825737次
100套鄉村別墅圖片大全,2026年最新設計
閱讀次數:2492203次
6款農村蓋一層平房的設計圖,10萬元就能建起來
閱讀次數:1852637次
這11個一層農村自建房別墅火爆了朋友圈!我最喜歡戶型十!你呢
閱讀次數:750268次
農村6萬元建一層小別墅圖,你敢相信嗎
閱讀次數:567686次
農村5萬塊就能自建房,6套普通房子設計圖分享,你沒看錯!
閱讀次數:419410次
8套農村漂亮三間平房圖片,非常適合在農村修建!
閱讀次數:411197次
農村自建房化糞池怎么做?附方案及施工過程
閱讀次數:391783次
農村一層三間平房設計圖,告別土氣養老房,讓人忍不住點贊
閱讀次數:350581次
新農村二層樓房圖片造價12萬,挑一套回家建房吧!
閱讀次數:349126次
