
|
自古至今,我國的建筑觀念就是房子以方正形的為好。無論是在農村自建房還是在城市買房,大多講求戶型方正;就算是外墻還是內部廳房,也大多是方形的,四平八穩、不偏不倚。 其實方正的房子除了采光通風好、利用率高之外,在風水上也是有講究的。方正的別墅戶型更有利于合家平安、夫妻和睦、父母慈愛、子女孝順… 【戶型1】 開間進深:11.9*12.7米 結構形式:磚混結構 建筑面積:204平方米 主體造價:18-20萬
適合農村改善型住房,保留了很濃的農民住宅風俗,戶型合理,房間多。 功能設計 一層:廚房、餐廳、堂屋、廁所、老人臥室、酒窖、多功能房、豬圈等。 二層:4個臥室、衛生間、曬臺等
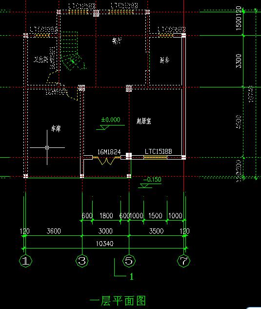
一層平面圖 【戶型2】 開間進深:10.34米*10.74米 占地面積:100平方米 總建筑面積:281平方米 建筑高度:10米 磚混結構:參考造價39萬元。輕鋼結構50萬元。
本戶型為3層新農村獨棟別墅,采用坡屋頂,外觀造型古樸大方,色彩清新淡雅,富有古色古香的韻味;房間尺度設計適宜,空間利用率高。 功能設計 一層:車庫、起居室、餐廳、廚房、衛生間等。 二層:主臥室、臥室、臥室、衣柜、衛生間、餐廳、廚房等。 三層:臥室、露臺、衛生間等。
一層平面圖 【戶型3】 層數: 四層結構形式: 框架結構主體造價: 30-35萬 開間: 11.55米進深: 11.975米占地面積: 121平方米建筑面積: 390平方米
本戶型采用坡屋頂,暗棕紅色波形面瓦,外觀、造型簡潔大方,色彩明快,整體平面布局緊湊、功能分區合理,房間尺度設計適宜,空間利用率高。 功能設計 一 層:廚房、餐廳、客廳、廁所、臥室 二 層:2臥室、公共衛生間、起居室 三 層:3個次臥,1個主臥帶衛生間和更衣間,公共衛生間,起居室、陽臺
一層平面圖
二層平面圖 圖紙之家-專注農村別墅/自建房設計18年,集合國內200余位經驗豐富的設計師,被評為口碑最好的農村建筑設計公司! |

鄉村二層半別墅圖紙設計,歐式風格、錯落有致,150平左右
占地:149.76
120平方三層房子設計圖,漂亮實用農村自建小別墅設計圖
占地:120平方米
戶型簡單實用的三層農村房屋設計圖紙,復式結構,大面積開窗,
占地:170平方米
農村25萬別墅款式二層自建房設計圖,外觀圖時尚
占地:115平方米
2026新款戶型三層新農村別墅房屋設計圖紙,外觀對稱
占地:160平方米
大氣的150平方米新中式三層別墅建筑圖及效果圖
占地:150平方米左右
簡單實用二層自建房子設計圖,主體造價僅17萬
占地:106.387平方米
農村三層別墅設計圖紙,造價50萬左右,中式風格,沉穩內斂
占地:160平方米
105平方米新農村三層別墅設計圖,全套CAD建筑圖+效果圖
占地:105平方米
三層現代簡約農村雙拼小別墅圖,好看精致,開間17米
占地:187平方米
小占地二層徽派別墅設計圖,白墻黛瓦韻味十足,太氣派了
占地:89.6平方米
四開間2層別墅設計圖,外觀圖配色清新淡雅,占地200平米
占地:200平方米
簡約而不簡單的二層新中式鄉墅設計圖,占地150平左右
占地:150.78平方米
120平方米三層歐式別墅設計圖,進門就是旋轉樓梯
占地:119.76平方米
新農村帶陽臺三層樓房圖紙,占地180平米左右,豪華大氣
占地:180平方米
新款240平方米三層雙拼別墅設計圖,歐式兄弟雙拼圖片
占地:240平方米
二層美式自建別墅設計圖,全套施工圖+外觀效果圖
占地:145平方米
新中式三層樓房設計圖,外觀精致布局也是相當的樸實
占地:140平方米
占地70平米一層小戶型別墅設計圖,功能齊全造價低,耐看實用
占地:70.19平方米
高端四間五間兩層別墅設計圖紙,開間20米自建房效果圖
占地:265平方米
推薦:10套新農村自建房設計圖,2026年最新設計
閱讀次數:4825737次
100套鄉村別墅圖片大全,2026年最新設計
閱讀次數:2492203次
6款農村蓋一層平房的設計圖,10萬元就能建起來
閱讀次數:1852637次
這11個一層農村自建房別墅火爆了朋友圈!我最喜歡戶型十!你呢
閱讀次數:750268次
農村6萬元建一層小別墅圖,你敢相信嗎
閱讀次數:567686次
農村5萬塊就能自建房,6套普通房子設計圖分享,你沒看錯!
閱讀次數:419410次
8套農村漂亮三間平房圖片,非常適合在農村修建!
閱讀次數:411197次
農村自建房化糞池怎么做?附方案及施工過程
閱讀次數:391783次
農村一層三間平房設計圖,告別土氣養老房,讓人忍不住點贊
閱讀次數:350581次
新農村二層樓房圖片造價12萬,挑一套回家建房吧!
閱讀次數:349126次
