
|
今天小編為大家介紹一棟很少見的三拼現代別墅,業主家里宅基地較大,就想著建一棟別墅不僅可以滿足家人居住還可以出租掙錢,最終就決定建這棟三拼現代別墅,比較符合現代人的審美觀。三拼現代別墅,滿足一家人居住還可出租,幾年掙回建別墅的錢。 別墅設計:簡約才是真,這棟中式小樓耐看至極,經典韻味盡顯。
建筑為現代風格別墅,主體結構為磚混結構,色彩搭配相對比較簡單,只有黑白兩種顏色,使整個別墅看起來有種簡約的美
從建筑的俯視圖可以看出占地面積是不小的, 屋頂設計為坡頂,簡單卻利于建筑在雨季雨水的排出,這樣屋頂就不會有積水的問題。
每棟別墅之間利用豎向條窗確定空間劃分,白色的選擇使得建筑看起來干凈整潔。
建筑正立面效果圖
建筑右立面效果圖
建筑左立面效果圖
建筑背立面效果圖 接下來和小編一起看看平面設計圖
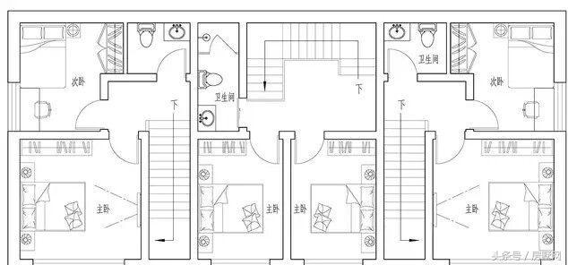
一層采用通透布局,開放式廚房和客餐廳一體化讓室內空間更加開闊。客廳作為接待客人使用,整個一層都是合理布局。
每個二樓都有兩間臥室,滿足一家人居住。 圖紙之家-專注農村別墅/自建房設計18年,集合國內200余位經驗豐富的設計師,被評為口碑最好的農村建筑設計公司! |

經濟實用二層樓房設計圖紙,功能布局多,12×11米
占地:130平方米
占地180平方米二層農村新款樓房別墅設計圖,外觀漂亮
占地:180平方米
巴洛克風格農村二層別墅設計圖(偏法式),對稱式設計,太講究
占地:210.25平方米
130平方米農村兩層別墅圖紙及效果圖12X11米
占地:133平方米
125平方米復式三層別墅房屋設計圖,房間多,采光好
占地:125平方米
農村自建房別再做傳統客廳!“客廳+茶室”一體設計,寬敞明亮
占地:143.73平方米
90平方米新農村住宅設計二層小別墅設計圖紙11x9米
占地:90平方米
簡單農村二層平屋頂房屋設計圖,外觀簡潔、大方
占地:200平方米
平屋頂12米寬別墅三層設計圖,平頂照樣建的漂亮
占地:129.6平方米
七字型一層平房別墅設計圖紙,15X16米
占地:177.9平方米
最新歐式三層別墅設計圖紙,超漂亮,預算30到40萬
占地:160平方米
全套歐式二層別墅設計cad圖紙,含效果圖,帶車庫
占地:211平方米
簡易農村別墅房子設計圖,好看實惠,施工也簡單
占地:200平方米
農村五間房子設計圖,大戶型別墅設計圖推薦
占地:240平方米
20萬農村一層半小洋樓圖,自建別墅設計方案推薦
占地:155平方米
150平米簡歐三層農村別墅設計圖,低調又奢華
占地:151.2平方米
二層復式雙拼別墅設計圖(客廳中空),含外觀效果圖
占地:195平方米
2款現代風格農村兩層別墅設計圖,時尚漂亮
占地:多戶型可選
面寬8米農村二間二層小別墅設計方案,施工簡單造價低
占地:73.77平方米
三層新農村住宅房屋設計圖,溫馨美觀的戶型
占地:180平方米
推薦:10套新農村自建房設計圖,2026年最新設計
閱讀次數:4825737次
100套鄉村別墅圖片大全,2026年最新設計
閱讀次數:2492203次
6款農村蓋一層平房的設計圖,10萬元就能建起來
閱讀次數:1852637次
這11個一層農村自建房別墅火爆了朋友圈!我最喜歡戶型十!你呢
閱讀次數:750268次
農村6萬元建一層小別墅圖,你敢相信嗎
閱讀次數:567686次
農村5萬塊就能自建房,6套普通房子設計圖分享,你沒看錯!
閱讀次數:419410次
8套農村漂亮三間平房圖片,非常適合在農村修建!
閱讀次數:411197次
農村自建房化糞池怎么做?附方案及施工過程
閱讀次數:391783次
農村一層三間平房設計圖,告別土氣養老房,讓人忍不住點贊
閱讀次數:350581次
新農村二層樓房圖片造價12萬,挑一套回家建房吧!
閱讀次數:349126次
