
|
不論南方北方,二層的自建房在哪都是實用經濟的。今天給大家推薦3套最受歡迎的農村2層別墅,外觀非常相似的,但是宅地尺寸天壤之別的農村二層別墅,簡歐式戶型,有一種獨特的韻味。
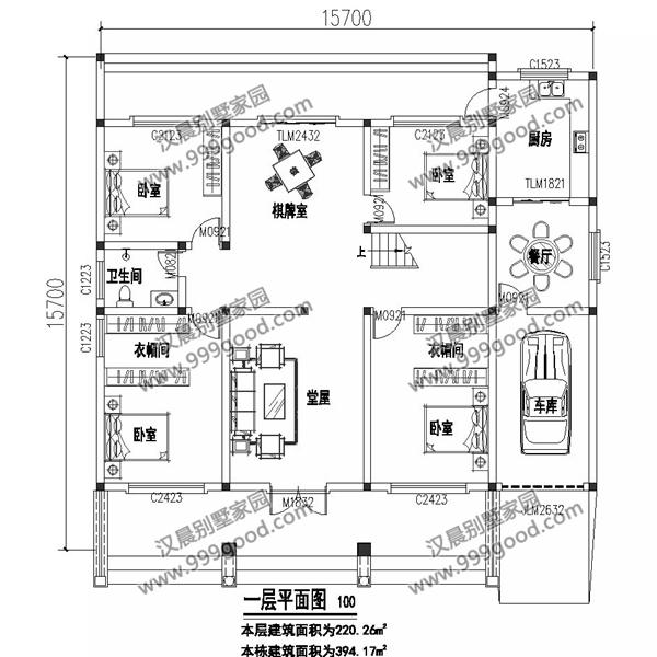
別墅設計說明: 廣東勞先生定制的兩層別墅,非常喜歡這樣大開間的簡約戶型。右邊的臥室可以車庫,可以廚房等。
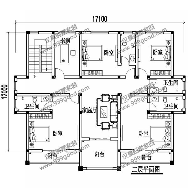
別墅功能說明:四開間設計,有客廳、餐廳、廚房、土灶房、客廳、茶室、還有電梯
廣東人就是有錢,兩層也弄電梯為了方便老人和小孩。
非常精致的三開間別墅,沒有車庫設計,戶型結構非常平實普通。利用簡單優雅的元素裝飾,造型感十足
別墅功能:入戶有一個非常長的門廳設計,中間的留白非常多,注重活動區域的自由。 衛生間和茶室有外挑,時刻保證了室內環境空氣的清新。
這是第一套圖紙的原版形式,客戶把車庫的地方改成了餐廳廚房等。背面也非常接地氣,一體化的陽臺形式,實用性非常大。
平面功能:堂屋設計比較獨特,主臥有衣帽間,有車庫和廚房已經餐廳連為一體。
前后都有臺階,不僅抬高氣勢。上下結構呈對齊形式,方便施工和降低成本。
圖紙之家-專注農村別墅/自建房設計18年,集合國內200余位經驗豐富的設計師,被評為口碑最好的農村建筑設計公司! |

農村200平一層別墅房屋設計圖,外觀圖片時尚、漂亮
占地:200平方米
占地180平方米二層農村新款樓房別墅設計圖,外觀漂亮
占地:180平方米
12米乘9米占地百平一層平房戶型設計圖,布局寬敞大氣又舒適
占地:108平方米
農村最漂亮二層歐式別墅設計圖,面寬16.5米(含車庫)
占地:180.366
20萬農村自建三層別墅設計圖,外觀美觀,戶型實用
占地:105平方米
二層農村兄弟雙拼別墅設計圖,一墻之隔互不干擾,鄰居看了都喜
占地:164.24平方米
面寬12米簡歐三層農村別墅設計圖,低調又奢華鄉村別墅
占地:132.64平方米
偏徽派風格民居三層農村住宅設計圖,白墻黛瓦的古雅簡潔
占地:101.01平方米
性價比超高一層農村自建別墅設計圖,戶型耐看不用爬樓
占地:158.6平方米
農村自建四層百萬豪宅別墅設計圖,客廳中空
占地:170平方米
農村兄弟雙拼別墅三層,美觀氣派,室內布局合理實用
占地:300平方米
一層5間歐式平房小洋樓建筑設計圖紙,大戶型一層別墅戶型
占地:216平方米
農村27萬二層自建別墅設計圖,占地140平米左右,戶型極好
占地:140平方米
現代三層農村民房設計圖及圖片,外觀高端、大氣
占地:196平方米
一層農村自建房設計圖,造型美觀大氣,占地150平
占地:153.415平方米
架空層的一層三合院別墅設計圖紙,這樣設計太贊了
占地:172.06平方米
最新款二層半別墅圖片,占地115平米左右,帶地下室,帶露臺
占地:115平方米
農村二層半新中式小別墅設計圖(帶閣樓層),二層半自建房戶型
占地:144平方米
農村中式一層三合院自建房戶型方案圖,帶庭院設計
占地:222平方米
預算30萬左右的新農村三層房屋設計圖推薦,含外觀效果圖
占地:117平方米
推薦:10套新農村自建房設計圖,2026年最新設計
閱讀次數:4825737次
100套鄉村別墅圖片大全,2026年最新設計
閱讀次數:2492203次
6款農村蓋一層平房的設計圖,10萬元就能建起來
閱讀次數:1852637次
這11個一層農村自建房別墅火爆了朋友圈!我最喜歡戶型十!你呢
閱讀次數:750268次
農村6萬元建一層小別墅圖,你敢相信嗎
閱讀次數:567686次
農村5萬塊就能自建房,6套普通房子設計圖分享,你沒看錯!
閱讀次數:419410次
8套農村漂亮三間平房圖片,非常適合在農村修建!
閱讀次數:411197次
農村自建房化糞池怎么做?附方案及施工過程
閱讀次數:391783次
農村一層三間平房設計圖,告別土氣養老房,讓人忍不住點贊
閱讀次數:350581次
新農村二層樓房圖片造價12萬,挑一套回家建房吧!
閱讀次數:349126次
