
|
別墅戶型說,專注于戶型圖紙介紹分享。現在越來越多的人選擇回鄉村建別墅無非這幾點原因: 一是孝敬父母。父母在農村土生土長了半輩子,如果去城里生活肯定會有各種的不適應。 二是割舍不下的故土情。不論是老人還是年輕的一輩,都會對生養自己的故鄉有一種不一樣的感情,不論走得多遠,逢年過節也都會回老家過。 三是城市的生活壓力大。很多在城里努力打拼大半輩子,都很難在城里買上一套房子。 四是農村的資源越來越好。除了農村原本的空氣質量,環境等優勢外,隨著國家的不斷發展,農村的教育、交通等資源也越來越好。 五是建房養老。即使現在因為工作身處遠方,但是還是想在農村給自己留一套房,等以后退休了回家養老。 六是農村的房子可以隨自己的喜好來設計外觀、室內布局等,能夠真正擁有一套自己想要的別墅。
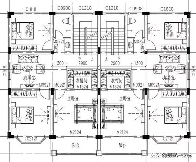
房屋基本信息: 占地面積:16.00m*11.00m,176平方米左右; 建筑層高:二層; 建筑高度:10.45米(含屋頂); 設計功能: 一 層戶型設計:客廳、廚房、餐廳、衛生間、儲藏間、臥室。一層動靜結合,兩個客廳設計,起居室與客廳隔離,互不干擾動靜分區,功能分區合理,保證生活的私密性。臥室空間開闊,朝南而向,保證采光,親和自然。
二層戶型設計:主臥(帶衣帽間或改為衛生間)、起居室、臥室x2(可以做書房)、衛生間。以靜區為主,陽臺與臥室融合一體又各自獨立,與晨風一起綻放美好心情。空間開敞又凸顯布局合理,也使得更加親近自然。
這樣的別墅,住進去,心情怎么會不好? 圖紙之家-專注農村別墅/自建房設計18年,集合國內200余位經驗豐富的設計師,被評為口碑最好的農村建筑設計公司! |

13x13米簡單二層帶閣樓最新別墅設計圖,精致美觀
占地:158.5平方米
2026新款農村四層別墅設計圖紙戶型圖,帶挑空客廳
占地:150平方米
鄉村自建獨棟三層別墅樓房設計圖,預算30萬內
占地:120平方米
歐式三層樓中樓別墅設計圖紙帶車庫(含外觀效果圖)
占地:130平方米
農村25萬元二層小樓圖,經典大氣建成20年不過時
占地:150平方米
帶堂屋新農村三層房屋別墅設計圖紙,帶外觀效果圖
占地:214平方米
網紅農村一層小別墅設計圖,建一層的必看
占地:多戶型可選
中式四合院風格別墅設計圖,平屋頂,書房、茶室、健身房一應俱
占地:370平方米
一層農村自建房設計,背面不開窗,15乘10米,內部布局實用
占地:多戶型可選
鄉村高檔四層別墅樓設計圖,二三層復式挑空客廳
占地:148.992平方米
簡單農村自建二層樓房設計圖,南北通透
占地:140平方米
田園輕奢三層帶露臺的鄉村別墅設計圖紙,11x10米
占地:106.64平方米
三層新農村自建房屋設計圖紙,占地120平米左右
占地:120平方米
外觀看起來高端、奢華的二層小別墅設計圖,推薦
占地:130平方米
12x13米豪華三層農村別墅設計圖,宅基地上的貴族人生
占地:156平方米
帶架空層的兩層別墅設計圖,通透又明亮,建在農村絕對有面子
占地:106.79平方米
面寬16米方正實用二層別墅設計圖,中式風格不輸村里的別墅洋房
占地:182.82平方米
一層4間自建平房別墅及全套戶型圖紙,占地160平左右,簡單實用
占地:162.13平方米
新中式小戶型二層別墅效果圖及全套施工設計圖,造價經濟實惠
占地:108平方米
小戶型經濟型三層雙拼小別墅施工設計圖紙,單戶100平內
占地:150平方米
推薦:10套新農村自建房設計圖,2026年最新設計
閱讀次數:4825737次
100套鄉村別墅圖片大全,2026年最新設計
閱讀次數:2492203次
6款農村蓋一層平房的設計圖,10萬元就能建起來
閱讀次數:1852637次
這11個一層農村自建房別墅火爆了朋友圈!我最喜歡戶型十!你呢
閱讀次數:750268次
農村6萬元建一層小別墅圖,你敢相信嗎
閱讀次數:567686次
農村5萬塊就能自建房,6套普通房子設計圖分享,你沒看錯!
閱讀次數:419410次
8套農村漂亮三間平房圖片,非常適合在農村修建!
閱讀次數:411197次
農村自建房化糞池怎么做?附方案及施工過程
閱讀次數:391783次
農村一層三間平房設計圖,告別土氣養老房,讓人忍不住點贊
閱讀次數:350581次
新農村二層樓房圖片造價12萬,挑一套回家建房吧!
閱讀次數:349126次
