
|
房子似乎一直以來都是我們我們掃討論的話題,誰家房價建的好,誰家房子裝修好,誰家在某地買了房......可是,近幾年一一飆升的房價,讓很多人都望而卻步、不忍直視,所以很多人也就自然而然有了回家農村自建房的想法。農村山清水秀,也確實是個適合居住,適合養老的好地方,下面這6套別墅,你看看你會選擇哪套呢? 第一套:
簡中式風格別墅。白色的外墻搭配上一些文化石,房子一下子洋氣起來,同時也起到了很好的藝術裝飾的效果。 360度全景圖展示:
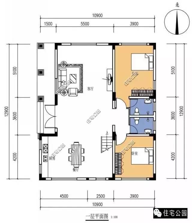
平面布局圖: 這套戶型有前院和后院兩個小院,車從前院開入車庫。一層有客廳、廚房和餐廳,東側還有一個有著獨立衛生間和衣帽間的套間做老人房;
二層3個臥室、一個家庭廳,家庭廳是挑空的,每個臥室都有獨立的衛生間設置;
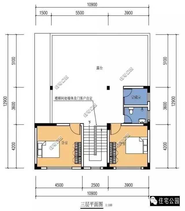
三層有一個獨立的居室,這里有衣帽間、衛生間,也有茶室和露臺,獨立性很好。
此套戶型干凈、清新,白色外墻加一個藍色屋頂,給人以清爽、寧靜之感。 360度全景圖展示:
平面布局圖: 此戶型一層不僅有客廳、廚房、餐廳和老人間,還有一個農具間;
二層有3臥室、1書房、1起居室和一個陽臺,學習、交流亦或是擺放盆栽、養花,都有去處。
三層更注重休閑,除了臥室和起居室外,還有一個活動室和兩個露臺,平時的時候在這層喝喝茶、聊聊天,不亦樂乎。
優美的弧線、筆直的柱子,讓這座兩層半的鄉村別墅既有了柔性之美,又不缺少陽剛之氣。 360度全景圖展示:
平面布局圖: 此戶型一層設:2臥室、1客廳、1餐廳、1廚房;
二層設3臥室、1起居室、2衛生間;
三層設:2臥室、1衛生間、1儲藏室、1大露臺;
第四套:
田園風格的二層小別墅,應該是很多人都喜歡一種別墅戶型。陽臺和露臺的設計能讓我們事事接觸自然、接觸陽光,陽光房更是為住戶提供了一個可以在室內感受陽光的機會,沐浴在陽光下,靜靜享受鄉村的寧靜致遠,和恬淡雅致的鄉村生活。 360度全景圖展示:
平面布局圖: 此戶型一層設:2臥室、1堂屋、1挑空客廳、1餐廳、1廚房、1鍋爐房、1衛生間兼洗浴室;
二層設有4臥室、1起居室、1露臺;
坡屋頂平面布局:
第五套:
此戶型色彩搭配舒適,造型美觀,一個修身養性的庭院,通過鐵柵欄還可以看到院內的菜園和花園,生活氣息很濃重。 360度全景圖展示:
平面布局圖: 此戶型一層設:車庫、客廳、玄關、臥室、餐廳、廚房、儲藏室、衛生間;
二層設起居室、主臥、兒童房、書房和衛生間;
三層一個臥室一個備用房和一個大露臺,備用房可根據自家情況來使用。
第六套:
此套設計采光很好,它的南北通透,并采用弧形采光窗和落地窗的設計,室內光照好,還可以享受飄窗給我們帶來的生活享受。 360度全景圖展示:
平面布局圖: 戶型一層設有車庫、廚房兼餐廳、客廳、書房和一個衛生間;
二層有4個臥室、1衣帽間、1起居室,陽面的兩個臥室有獨立衛生間;
三層兩個臥室、一個衛生間、一個茶室和一個棋牌室,還有一個大露臺;
圖紙之家-專注農村別墅/自建房設計18年,集合國內200余位經驗豐富的設計師,被評為口碑最好的農村建筑設計公司! |

一層合院中式小別院設計圖,白墻灰瓦,愜意十足!
占地:219平方米
二層新農村自建房設計圖,帶外觀效果圖
占地:140平方米
20萬左右普通農村房子設計圖,二層簡約小別墅
占地:140平方米
二層復式雙拼別墅設計圖(客廳中空),含外觀效果圖
占地:195平方米
新式帶挑空客廳三層鄉村別墅設計圖,占地170平左右
占地:170平方米
農村三間三層半別墅設計圖,舒適寬敞時尚經濟,居住生活方便舒
占地:168.29平方米
面寬8米多小開間三層農村別墅設計圖,占地不足百平
占地:95.21
簡歐式三層半(4層)農村自建房別墅設計圖效果圖,帶車庫戶型
占地:127平方米
鄉村典型自建房中式二層四合院別墅設計圖,左右對稱設計
占地:430平方米
新農村小戶型4層自建房三層半別墅設計圖,平屋頂設計
占地:95平方米
人字坡房屋一層別墅設計圖,簡約低調超實用,、
占地:101.17平方米
兄弟合建房新農村三層雙拼別墅建筑圖紙及效果圖,300平方米
占地:301平方米
爆款農村一層別墅圖紙設計,看過的都說漂亮實用
占地:144.91平方米
12x10米帶閣樓的農村一層半別墅設計圖,外觀洋氣
占地:110.54平方米
90平方米新農村住宅設計二層小別墅設計圖紙11x9米
占地:90平方米
125平方米新農村二層房屋施工設計CAD圖紙加效果圖
占地:125平方米
最新設計的三層農村別墅圖紙,帶車庫,帶露臺,占地150平米左右
占地:150平方米
面寬13米二層鄉村自建別墅戶型圖,帶堂屋和露臺
占地:135.47平方米
新古典中式風格別墅設計圖,全套施工圖+效果圖
占地:188平方米
12x10三層別墅設計圖,農村自建房推薦戶型
占地:120平方米
推薦:10套新農村自建房設計圖,2026年最新設計
閱讀次數:4825737次
100套鄉村別墅圖片大全,2026年最新設計
閱讀次數:2492203次
6款農村蓋一層平房的設計圖,10萬元就能建起來
閱讀次數:1852637次
這11個一層農村自建房別墅火爆了朋友圈!我最喜歡戶型十!你呢
閱讀次數:750268次
農村6萬元建一層小別墅圖,你敢相信嗎
閱讀次數:567686次
農村5萬塊就能自建房,6套普通房子設計圖分享,你沒看錯!
閱讀次數:419410次
8套農村漂亮三間平房圖片,非常適合在農村修建!
閱讀次數:411197次
農村自建房化糞池怎么做?附方案及施工過程
閱讀次數:391783次
農村一層三間平房設計圖,告別土氣養老房,讓人忍不住點贊
閱讀次數:350581次
新農村二層樓房圖片造價12萬,挑一套回家建房吧!
閱讀次數:349126次
