
|
今天給大家介紹的這棟自建別墅,主體首層占地面積為:74.08㎡,開間為10m,進深為10m,戶型呈現L型,入戶圍合成小庭院,共3層,總建筑面積為:231.76㎡;
建筑采用米黃色面磚和咖啡色涂料搭配,簡單的運用陽臺外挑和屋檐的線腳,控制造價的同時,使得建筑精致而又氣派;
建筑左右兩邊沒有開窗,很適合兩邊有鄰居的自建房,也可以用于兄弟雙拼,兩棟建一起會更霸氣,還是獨門獨院;
入戶穿過庭院來到建筑內部,一層為公共活動區域,獨立而寬敞的客廳,餐廳和廚房形成大空間;
2層為2間套房,套房均配有衛生間和衣帽間;朝南的超大陽臺;
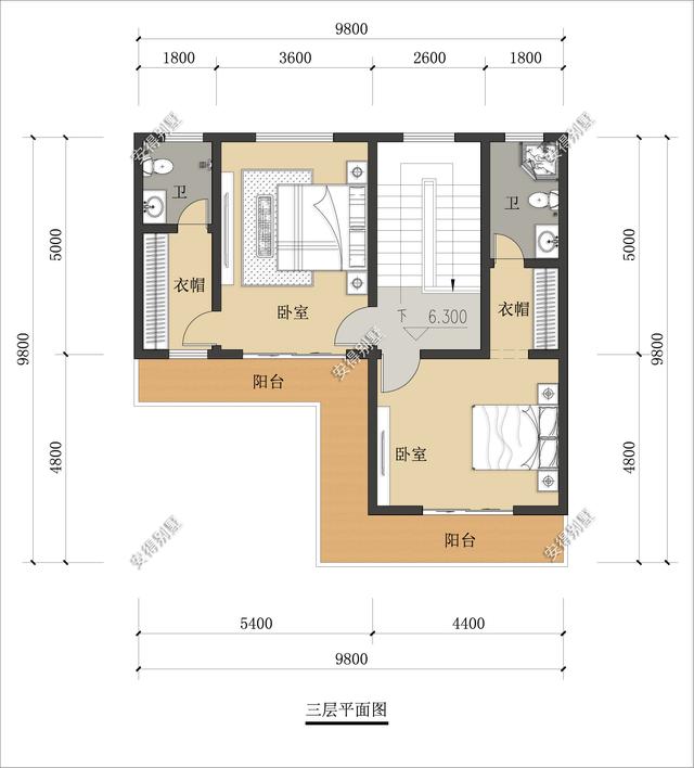
3層和2層布局基本一致,2間臥室套房,套房均有衛生間和衣帽間,獨立的朝南大陽臺;
內部效果參考:
客廳
廚房
餐廳
臥室
圖紙之家-專注農村別墅/自建房設計18年,集合國內200余位經驗豐富的設計師,被評為口碑最好的農村建筑設計公司! |

美式田園二層別墅設計方案圖,全套設計圖+效果圖
占地:235平方米
四開間兩層別墅設計圖,農村自建住著舒適的好方案!
占地:187.04平方米
90平農村自建房二層新款,占地不大但很實用,
占地:88平方米
120平方米農村漂亮實用的兩層別墅設計圖紙,含外觀圖片
占地:120平方米
140平三層別墅房屋設計圖,含外觀圖片,外觀現代時尚
占地:143平方米
雙戶168平方米小戶型新農村雙拼樓房設計建筑圖紙帶外觀圖
占地:168平方米
占地105平實用三層樓房別墅設計圖紙,造型方正簡單大氣
占地:105平方米
經典小戶型雙拼二層新農村房屋住宅設計圖,含效果圖
占地:80平方米
最漂亮的農村二層小樓設計圖紙,簡約又大氣時尚
占地:120平方米
挑空客廳戶型歐式二層別墅設計圖紙,高端大氣帶車庫
占地:236.09平方米
小面寬農村兩開間二層小別墅,簡單實用雖小但不擁擠
占地:118.56平方米
農村蓋房三層自建別墅設計圖紙,11米乘12米戶型方案
占地:132.55平方米
歐式二層農村別墅設計圖,140平方米戶型方正的好方案
占地:142.51平方米
L字型自建房屋設計圖,一層別墅類型,外觀效果圖漂亮
占地:188.62平方米
2026年新款別墅外觀圖,新中式風格,比簡歐大氣,時尚
占地:135平方米
二層農村房屋設計圖紙,帶效果圖和全套施工方案圖
占地:多種戶型
130平四間二層小洋樓設計圖,含外觀圖片
占地:130平方米
簡單大氣的農村二層樓設計圖,二層歐式農村別墅設計圖
占地:180平方米
120平方米帶地下室三層復式別墅戶型圖,現代風格
占地:120.78平方米左
備受好評二層半歐式別墅設計圖,五開間對稱設計,布局合理又實
占地:192.48平方米
推薦:10套新農村自建房設計圖,2026年最新設計
閱讀次數:4825737次
100套鄉村別墅圖片大全,2026年最新設計
閱讀次數:2492203次
6款農村蓋一層平房的設計圖,10萬元就能建起來
閱讀次數:1852637次
這11個一層農村自建房別墅火爆了朋友圈!我最喜歡戶型十!你呢
閱讀次數:750268次
農村6萬元建一層小別墅圖,你敢相信嗎
閱讀次數:567686次
農村5萬塊就能自建房,6套普通房子設計圖分享,你沒看錯!
閱讀次數:419410次
8套農村漂亮三間平房圖片,非常適合在農村修建!
閱讀次數:411197次
農村自建房化糞池怎么做?附方案及施工過程
閱讀次數:391783次
農村一層三間平房設計圖,告別土氣養老房,讓人忍不住點贊
閱讀次數:350581次
新農村二層樓房圖片造價12萬,挑一套回家建房吧!
閱讀次數:349126次
