
|
前不久,有位來自陜西的張女士向小編傾述,她現在在大城市小有成功,一直想把父母請到身邊來養老,可父母舍不得老家,也不適應大城市的生活習慣。但是老家的房子年事已老,所以就準備翻修一下。而自己也不經常回去住,兩位老人建一層就足夠。所以就問小編有沒有比較適合農村造價10來萬的一層別墅?今天小編就精選5套一層戶型供張女士選擇。
第一套 占地尺寸:17.1米×13.8米 占地面積:236平方米 建筑面積:200平方米 主體參考造價:20萬左右 一套架空式一層養老房,農村宅基地潮濕無法建房?這套戶型再合適不過。架空不僅很好的起到防潮作用,也增加了房屋的美觀性。
第二套 占地尺寸:15.6米×19.5米 占地面積:300平方米 建筑面積:200平方米 主體參考造價:25萬左右 一套中式小院養老房,中式風格之所以流傳至今,是因為它的經典無法超越。
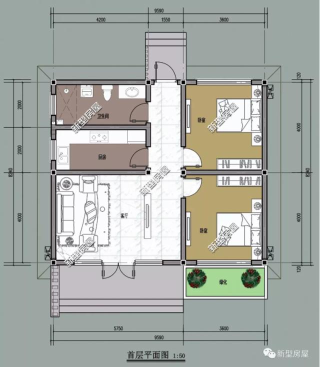
第三套 占地尺寸:9.6米×8.24米 占地面積:79平方米 建筑面積:79平方米 主體參考造價:10萬左右 一套精致小巧的養老別墅,占地面積不足80平,內設兩室一廳、一廚一衛,養老房首選。
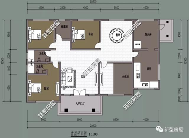
第四套 占地尺寸:20.2米×12.5米 占地面積: 252.5平方米 建筑面積:250平方米 一套歐式一層養老別墅,獨特的火炕房設計,非常適合北方。而獨立廚房、柴火飯、餐廳的設計則更為方便。
第五套 占地尺寸:16.4米×9.23米 占地面積:151平方米 建筑面積:151平方米 主體毛坯造價:17萬左右 一套田園風格一層養老別墅,簡單的白墻紅瓦搭配,既不土氣,又不顯奢華。
這5套一層小平層戶型,你更鐘意哪套呢? 圖紙之家-專注農村別墅/自建房設計18年,集合國內200余位經驗豐富的設計師,被評為口碑最好的農村建筑設計公司! |

農村四間兩層樓房設計圖,帶車庫,時尚經濟,最適合農村施工的
占地:180平方米
230平米歐式帶地下室三層自建別墅設計施工圖紙及效果圖
占地:230平米
廚房在前,簡約歐式二層農村自建別墅設計圖,戶型個性
占地:143.69平方米
一層農家雙拼自建房設計圖,左右對稱四平八穩
占地:219.05平方米
200平米左右二層樓房設計圖,外觀看著舒服、布局住著坦然
占地:190平方米
新款漂亮農村三層別墅建筑設計圖紙帶效果圖片,3種戶型
占地:125平方米
鄉村二層簡歐小戶型別墅圖設計,占地90平方米左右
占地:92.12平方米
農村三層雙拼房屋建筑施工設計圖紙,帶車庫
占地:180平方米
90平方米新農村住宅設計二層小別墅設計圖紙11x9米
占地:90平方米
占地百平三層歐式別墅設計圖,回到家鄉建一棟,大氣美觀有內涵
占地:99.94平方米
占地90平米四層超現代風別墅設計圖,享受高品質生活
占地:3.76平方米
開間13米左右新農村2層自建房別墅戶型設計圖,簡潔實用
占地:170平方米
二層簡歐農房!經濟實惠+大氣耐看,20年后不落后
占地:120平方米
被包工頭夸爆的二層別墅戶型!建好未來幾年必火
占地:189.98平方米
最好看的農村三層樓房設計圖,占地113平米,小平米大格局
占地:110平方米
120平方米農村四層別墅設計圖,含全套施工圖
占地:120平方米
110平農村二層房屋設計圖,新農村自建房戶型推薦
占地:110平方米
農村120平方房子設計圖,三層房屋設計圖精選
占地:120平方米
極簡大氣二層別墅設計圖,15米面寬,簡約大氣,年輕人的最愛!
占地:150平方米
農村自建房鄉村超現代平屋頂二層別墅圖設計方案,造價低,施工
占地:142平方米
推薦:10套新農村自建房設計圖,2026年最新設計
閱讀次數:4825737次
100套鄉村別墅圖片大全,2026年最新設計
閱讀次數:2492203次
6款農村蓋一層平房的設計圖,10萬元就能建起來
閱讀次數:1852637次
這11個一層農村自建房別墅火爆了朋友圈!我最喜歡戶型十!你呢
閱讀次數:750268次
農村6萬元建一層小別墅圖,你敢相信嗎
閱讀次數:567686次
農村5萬塊就能自建房,6套普通房子設計圖分享,你沒看錯!
閱讀次數:419410次
8套農村漂亮三間平房圖片,非常適合在農村修建!
閱讀次數:411197次
農村自建房化糞池怎么做?附方案及施工過程
閱讀次數:391783次
農村一層三間平房設計圖,告別土氣養老房,讓人忍不住點贊
閱讀次數:350581次
新農村二層樓房圖片造價12萬,挑一套回家建房吧!
閱讀次數:349126次
