
|
城市白領往往在外工作多年,深受都市文化影響,對老家的普通建筑風格很不滿意,希望能夠把在外面見識到的新鮮風格帶回到老家,也在家鄉父老面前展示自己的欣賞水平,相信自己的審美判斷會對沉悶的家鄉面貌產生積極的影響。今天小編帶來的是這套廣西別墅設計,布局合理,方正大氣。 戶型基本信息 層數: 三層 結構形式: 框架結構 主體造價: 32-35萬 開間: 10米 進深: 13.5米 占地面積: 135平方米 建筑面積: 405平方米
米色外墻和藍灰色平屋頂設計簡單大方,貼近農村生活,線條簡單,施工難度不高,門柱帶有豐富的立體感,輕盈靈動,充滿著濃郁的現代簡約風。這樣的戶型對農村建房來說,可以說比較貼近實際的。 平面布局圖:
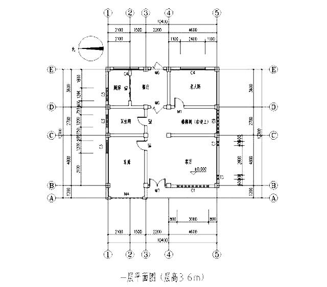
一層平面圖 一層:廚房、餐廳、客廳、衛生間、儲藏室、老人房帶內衛、茶室(娛樂室)。
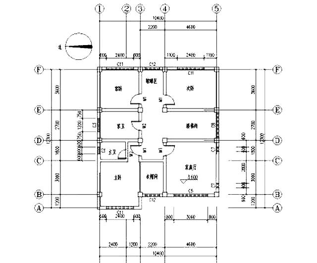
二層平面圖 二層:主臥室帶衛生間、起居室帶陽臺、2個次臥、公共衛生間。
三層平面圖 三層:2個臥室、公共衛生間、家庭活動室,露臺。 圖紙之家-專注農村別墅/自建房設計18年,集合國內200余位經驗豐富的設計師,被評為口碑最好的農村建筑設計公司! |

新農村一層平屋頂簡單自建房別墅設計圖紙,全套設計
占地:130平方米
12.8乘10米一層平房別墅設計圖,四室二廳南北通透
占地:128.85平方米
新中式二層雙拼別墅農村自建房子設計圖紙,面寬19米
占地:240平方米左右,單
三間三層房子設計圖,高端三層樓房設計圖,三層兩個大露臺
占地:170平方米
簡單質樸三層新農村小別墅設計圖紙,別墅圖片,戶型簡單合理實
占地:120平方米
帶地下室一層別墅設計方案,功能布局齊全實用
占地:256.5平方米
90平米三層農村房子設計圖,簡單大氣實用
占地:94.28平方米
農村四間兩層別墅房屋設計圖,含外觀圖片
占地:160平方米
100平米兩間三層樓房設計圖,農村蓋房舒服實用最重要
占地:100平方米
建一棟就成了村里的門面擔當!三層歐式別墅,左右對稱太氣派
占地:173.67平方米
小戶型徽派建筑別墅設計方案大全,三層別墅設計圖推薦
占地:95平方米
新中式農村50萬三層別墅款式圖,占地面積160平米左右
占地:150平方米
實用農村10萬一層小別墅戶型圖及圖紙,全套施工圖
占地:多種面積
140平方米清新別致新農村兩層房屋設計圖紙大全12x13米
占地:140平方米
大戶型帶車庫的兩層農村自建房設計圖,施工簡單,戶型方正
占地:236平方米
獨棟兩層歐式別墅設計圖紙(效果圖+建筑施工圖)
占地:125平方米
2026年最新三層房屋設計圖紙,12米×11米,實用接地氣
占地:130平方米
農村兩層新中式仿古四合院別墅戶型圖,小型占地不到200平
占地:193平方米
農村房子設計圖三層獨棟別墅方案,占地130平方米
占地:130平方米
新中式風格二層住宅設計圖,農村自建房不土氣
占地:144.5平方米
推薦:10套新農村自建房設計圖,2026年最新設計
閱讀次數:4825737次
100套鄉村別墅圖片大全,2026年最新設計
閱讀次數:2492203次
6款農村蓋一層平房的設計圖,10萬元就能建起來
閱讀次數:1852637次
這11個一層農村自建房別墅火爆了朋友圈!我最喜歡戶型十!你呢
閱讀次數:750268次
農村6萬元建一層小別墅圖,你敢相信嗎
閱讀次數:567686次
農村5萬塊就能自建房,6套普通房子設計圖分享,你沒看錯!
閱讀次數:419410次
8套農村漂亮三間平房圖片,非常適合在農村修建!
閱讀次數:411197次
農村自建房化糞池怎么做?附方案及施工過程
閱讀次數:391783次
農村一層三間平房設計圖,告別土氣養老房,讓人忍不住點贊
閱讀次數:350581次
新農村二層樓房圖片造價12萬,挑一套回家建房吧!
閱讀次數:349126次
