
|
帶復式客廳的簡歐農村別墅,主體35萬,建好就是村里地標。有一棟房子是村里的地標,這種感覺肯定很不一般,建了下面做這棟三層的歐式農村自建房,你的房子就是村里面最漂亮的那棟。
該棟別墅建房尺寸為11.4×13米,外墻用黃色的真石漆裝飾,黑色真石漆分縫,屋面蓋以藍色的琉璃瓦,外墻還用到了棕色文化石和一些裝飾構件。
喜歡一個房子的戶型,也是始于顏值的,誰讓我們都是視覺動物呢?誰又不愛美呢?而這棟別墅是真的美。
一層平面圖:一室兩廳一廚兩衛,主臥室放在后面帶獨衛比較安靜,廚房和餐廳在一個空間內方便節省空間,客廳和茶室就設計的很大氣;
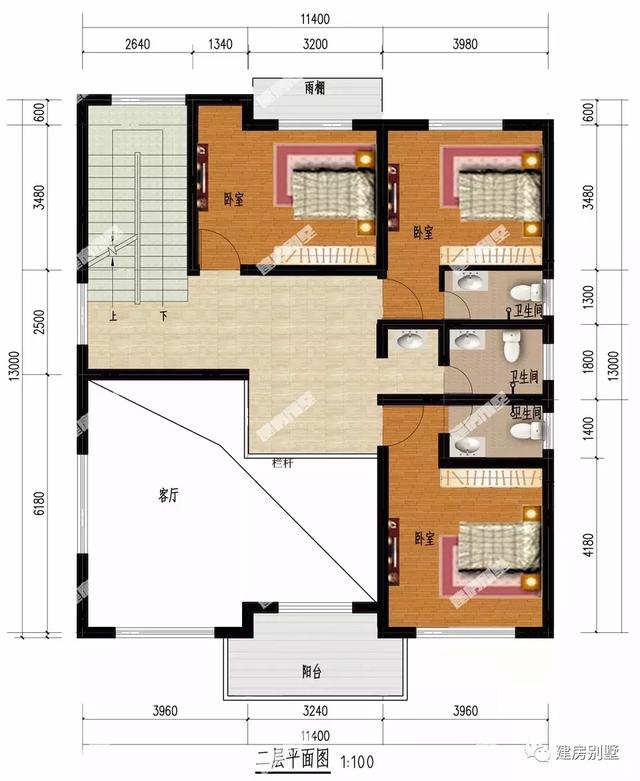
二層三間臥室,配有三個衛生間,室外一個生活陽臺,挑廊部分也可以騰出一個室內休閑空間。
三層也是三間臥室,還有一個單獨的休閑室,室外配有露臺一個。
說實話,喜歡這款戶型的原因是,第一眼被其外觀給吸引住了,但是看了布局之后發現在這個戶型不僅有顏值,布局也是贊,所以真的很適合建。 圖紙之家-專注農村別墅/自建房設計18年,集合國內200余位經驗豐富的設計師,被評為口碑最好的農村建筑設計公司! |

小占地二層徽派別墅設計圖,白墻黛瓦韻味十足,太氣派了
占地:89.6平方米
12米面寬一層農村別墅設計圖,實用又舒適
占地:110.41平方米
新中式二層別墅設計圖,農村最適合建的兩層小樓,13×12米
占地:143平方米
二層復式小洋樓設計圖,外觀精致,戶型合理
占地:115平方米
160平方米新農村自建二層樓房設計圖紙及效果圖,15x11米
占地:160平方米
35萬內三層自建別墅設計圖,外觀美觀,戶型舒適
占地:135平方米
18×15米新中式高檔農村三層別墅設計圖,低調奢華又實用
占地:195.91平方米
鄉村一層平房設計圖,面寬13米平面圖及造型圖
占地:170平方米
新農村私人別墅建筑設計施工圖,全套別墅設計圖紙
占地:多種戶型
三層新農村140平方米房屋設計圖紙,全套施工圖及效果圖
占地:140平方米
適合農村建造的二層房屋設計圖紙及效果圖,帶悶頂層,占地15
占地:150平方米
三層獨棟別墅設計圖紙帶效果圖,全套施工方案(建筑圖+結構圖
占地:144平方米
最耐看的二層別墅設計圖,15米寬12米深,方正大氣經濟美觀!
占地:180平方米
占地130平方米中式二層小樓房設計圖紙,農村自建戶型實用
占地:136.04平方米
帶電梯高端四層別墅房屋設計圖,外觀圖大氣、上檔次
占地:220平方米
230平(單戶115平)雙拼別墅房屋設計圖及效果圖大全
占地:230平方米
50萬左右農村三層別墅設計圖紙,帶大露臺,外觀大氣
占地:150平方米
二層兄弟雙拼農村別墅圖新中式,兄弟這樣建房,大氣省錢
占地:143.412平方米
120平米三層小別墅設計方案和效果圖,端莊大氣很經典
占地:120平方米
三層帶地下室+旋轉樓梯別墅設計圖紙,復式挑空客廳
占地:多種戶型
推薦:10套新農村自建房設計圖,2026年最新設計
閱讀次數:4825737次
100套鄉村別墅圖片大全,2026年最新設計
閱讀次數:2492203次
6款農村蓋一層平房的設計圖,10萬元就能建起來
閱讀次數:1852637次
這11個一層農村自建房別墅火爆了朋友圈!我最喜歡戶型十!你呢
閱讀次數:750268次
農村6萬元建一層小別墅圖,你敢相信嗎
閱讀次數:567686次
農村5萬塊就能自建房,6套普通房子設計圖分享,你沒看錯!
閱讀次數:419410次
8套農村漂亮三間平房圖片,非常適合在農村修建!
閱讀次數:411197次
農村自建房化糞池怎么做?附方案及施工過程
閱讀次數:391783次
農村一層三間平房設計圖,告別土氣養老房,讓人忍不住點贊
閱讀次數:350581次
新農村二層樓房圖片造價12萬,挑一套回家建房吧!
閱讀次數:349126次
