
|
如今農村建房,隨著人們對生活要求的提高,越來越多的人對自家房子如何設計越來越上心,力求高端大氣。而很多人在選擇戶型時,挑空客廳成了首選。為什么挑空客廳會這么受歡迎呢?下面小編就分享5套帶挑空客廳的戶型,一起去探個究竟。 戶型一 占地尺寸:11.5米×12.3米 占地面積:141平方米 一套帶地下室和挑空客廳的歐式風格別墅,簡單的外墻配色搭配上具有層次感的外觀造型,盡顯高端大氣。
戶型二 占地尺寸:12米×11米 占地面積:132平方米 一套帶大落地窗和挑空客廳的歐式風格別墅,外觀配色和第一套類似,但在外觀和布局上稍稍做了些改動。而這套戶型與眾不同的是,雖然它西立面沒有開窗,但南北里面充分的大落地窗設計,合理的保證了室內的通風和采光。
戶型三 占地尺寸:8.36米×14.76米 占地面積:148平方米 一套窄面寬帶大落地窗、挑空客廳的歐式風格別墅。很多人會問,面寬窄進深長的戶型,室內如何通風和采光?這套戶型多面開窗的設計便完美的解決了這個難題。
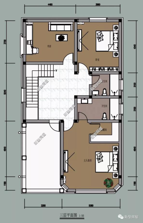
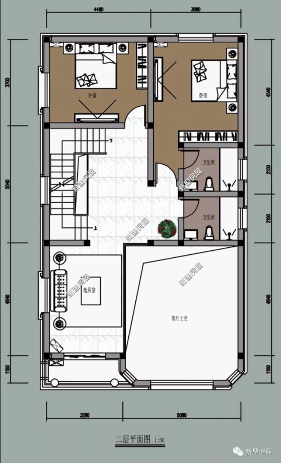
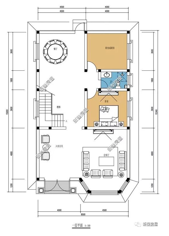
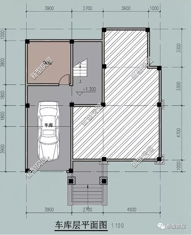
戶型四 占地尺寸:8.5米×15米 占地面積:127.5平方米 一套帶大落地窗和挑空客廳的兩層歐式風格別墅,農村自建房很多人都喜歡建兩層,因為兩層經濟又實用。而兩層的戶型要想做到有大落地窗和挑空客廳可不容易,但這套戶型則很好的解決的這個難題。
戶型五 占地尺寸:12.24米×10.5米 占地面積:128.5平方米 一套帶落地窗和挑空客廳的現代風格別墅,現代風格因為它精簡的外觀和新穎的設計深受年輕人喜愛。而這套戶型不僅具有現代感,還將挑空客廳和全景落地窗融入進去,簡直是最理想的戶型。
看完了這5套帶挑空客廳的別墅戶型,不知道大家最喜歡哪一套呢? 圖紙之家-專注農村別墅/自建房設計18年,集合國內200余位經驗豐富的設計師,被評為口碑最好的農村建筑設計公司! |

給爸媽建養老房?100 平人字坡一層房太合適!簡約低調還實用
占地:102.6平方米
170平方米新農村現代樓中樓三層別墅設計施工圖紙及效果圖
占地:170平方米
別致漂亮二層別墅設計圖紙,占地160平米左右,精致的外觀,讓人
占地:160平方米
新農村三層豪華歐式別墅,復式高端自建房設計圖紙及效果圖
占地:多種戶型
農村房子設計圖三層獨棟別墅方案,占地130平方米
占地:130平方米
最新設計的三層農村別墅圖紙,帶車庫,帶露臺,占地150平米左右
占地:150平方米
帶地下室的一層別墅設計圖,農村自建房比較合適
占地:206平方米
農村120方三層自建房子圖,好看又不貴的三層農村別墅
占地:120平方米
面寬10米左右的三層農村別墅設計案例,低調又奢華
占地:120平方米
倆兄弟蓋房子的雙拼設計圖,小宅基地設計方案
占地:151.91平方米
農村仿古四合院設計圖自建房,外觀中式古樸典雅
占地:378平方米
8萬元二層農村房子圖片及設計圖,簡易二層小樓,占地50平米
占地:50平方米
經典農村二層小別墅設計圖紙帶露臺(含外觀效果圖)
占地:110平方米
帶地下室的農村自建三層半歐式別墅設計圖,看著真豪氣!
占地:142.45平方米
一層農村自建房別墅設計方案,左右對稱布局好
占地:154平方米
戶型獨特的、二層臥室挑高的別墅房屋設計圖,外觀簡歐風格
占地:250平方米
帶堂屋設計一層5間平房新農村自建別墅效果圖全套施工圖
占地:198.41平方米
農村四間三層豪華別墅設計方案圖,造型輕奢雅致
占地:200平方米
開間4米多的農村三層別墅設計圖,一開間三層自建房
占地:66.65平方米
普通農村二層房子設計圖 ,復式結構,帶車庫,占地160平米左右
占地:160平方米
推薦:10套新農村自建房設計圖,2026年最新設計
閱讀次數:4825737次
100套鄉村別墅圖片大全,2026年最新設計
閱讀次數:2492203次
6款農村蓋一層平房的設計圖,10萬元就能建起來
閱讀次數:1852637次
這11個一層農村自建房別墅火爆了朋友圈!我最喜歡戶型十!你呢
閱讀次數:750268次
農村6萬元建一層小別墅圖,你敢相信嗎
閱讀次數:567686次
農村5萬塊就能自建房,6套普通房子設計圖分享,你沒看錯!
閱讀次數:419410次
8套農村漂亮三間平房圖片,非常適合在農村修建!
閱讀次數:411197次
農村自建房化糞池怎么做?附方案及施工過程
閱讀次數:391783次
農村一層三間平房設計圖,告別土氣養老房,讓人忍不住點贊
閱讀次數:350581次
新農村二層樓房圖片造價12萬,挑一套回家建房吧!
閱讀次數:349126次
