
|
自古以來“房子”就是一個不變的話題,農村結婚要蓋房;在外上學、打工要住宿或者是租房;在城里定居要買房……現在大家的生活條件好了,農村蓋房子已經是一件非常普通的事情了。今天給大家推薦6套三層農村雙拼別墅,比獨棟別墅更加大氣實惠! 第一套
正面效果圖
背面效果圖
鳥瞰效果圖 占地面積:20.8m*14.0m,260平方米左右,單棟130平左右; 建筑層高:三層; 建筑高度:12.10米(含屋頂); 設計功能: 地下室:車庫、酒窖、儲藏間; 一 層:客廳、餐廳、廚房、臥室、衛生間; 二 層:客廳上空、主臥(帶衛生間)、臥室x2、衛生間; 三 層:臥室、衛生間、大露臺;
地下平面圖
一層平面圖
二層平面圖
三層平面圖 第二套
正面效果圖
背面效果圖
鳥瞰效果圖 占地面積:16.4m*19.1m,300平方米左右,單戶150平左右; 建筑層高:三層; 建筑高度:13.1米(含屋頂); 設計功能: 一 層:神位,客廳、餐廳、廚房、臥室×2、衛生間; 二 層:客廳上空、起居室、臥室×3、衛生間; 三 層:臥室×3、衛生間、書房;
一層平面圖
二層平面圖
三層平面圖 第三套
正面效果圖
背面效果圖
鳥瞰效果圖 占地面積:21.76m*15.76m,330平方米左右,單戶165平左右; 建筑層高:三層; 建筑高度:12.36米(含屋頂); 設計功能: 一 層:客廳、餐廳、廚房、臥室(帶衛生間)、臥室、衛生間; 二 層:客廳上空、j家庭廳、臥室(帶衛生間,陽臺)、臥室×2、衛生間; 三 層:主臥(帶衛生間、書房、露臺)、臥室、涼亭、活動室、公衛、露臺;
一層平面圖
二層平面圖
三層平面圖 第四套
正面效果圖
背面效果圖
鳥瞰效果圖 占地面積:24.2m*12.7m,270平方米左右,單戶135平左右; 建筑層高:三層; 建筑高度:11.1米(含屋頂); 設計功能: 一 層:客廳、餐廳、廚房、臥室(帶衛生間)、衛生間; 二 層:客廳上空、臥室(帶衛生間)、臥室×2、衛生間、休閑區; 三 層:臥室×3、衛生間、活動區、露臺;
一層平面圖
二層平面圖
三層平面圖 第五套
別墅效果圖 占地面積:17.84m*12.94m,230平方米左右; 建筑層高:三層; 建筑高度:12.81米(含屋頂); 設計功能: 一 層:客廳、餐廳、廚房、主臥(帶衛生間)、衛生間; 二 層:客廳、主臥(帶衛生間)、臥室x2、衛生間、陽臺; 三 層:臥室x2、衛生間、大露臺、小露臺、陽臺;
一層平面圖
二層平面圖
三層平面圖 第六套
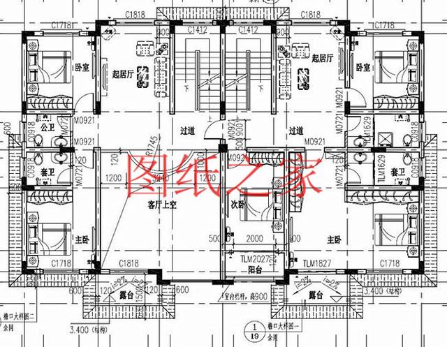
別墅效果圖 占地面積:19.00m*13.50m,256平方米左右; 建筑層高:三層; 建筑高度:13.13米(含屋頂); 設計功能: 本方案兩邊戶型不同,一邊戶型是樓中樓結構(復式,客廳中空),一邊戶型是普通三層戶型,詳細見下面圖片。另外一層客廳可以共用,可以隔開(客廳隔開不需要改圖紙,只需建造時讓施工隊加一堵墻即可)。施工時,可以按圖紙建造,還可以統一成一樣的戶型,不需要改圖紙,交給施工隊,施工隊都可以建造的。
一層平面圖
二層平面圖
三層平面圖
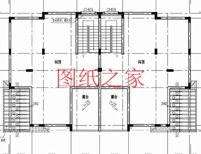
悶頂平面圖 這幾套別墅的設計圖,你最喜歡哪一套? 圖紙之家-專注農村別墅/自建房設計18年,集合國內200余位經驗豐富的設計師,被評為口碑最好的農村建筑設計公司! |

農村4開間二層別墅設計圖,帶堂屋帶露臺,進深9米
占地:126平方米左右
105平一層簡單農村別墅設計圖,造價8萬左右
占地:105平方米
帶地下車庫的三層別墅設計圖,160平復式戶型
占地:159.03平方米
農村三間二層別墅設計圖,外觀簡約左右對稱
占地:170.06平方米
農村兄弟倆雙拼別墅房屋設計圖,外觀質樸
占地:195平方米
實用農村10萬一層小別墅戶型圖及圖紙,全套施工圖
占地:多種面積
農村二層帶車庫樓房設計圖,帶外觀效果圖片
占地:125平方米
一層共用,二層兄弟雙拼的二層別墅設計圖
占地:182.48平方米
鄉下三層大氣房子設計圖,外觀挺高大上的,主體29萬多
占地:132.48平方米
歐式大戶型三層農村房屋設計圖紙,歐式住宅圖推薦
占地:178平方米
2026年經典新中式三層別墅設計圖紙,新款自建房戶型圖
占地:158.19平方米
簡歐風格別墅設計圖帶外觀效果圖,三層140平米戶型方案
占地:140平方米
自建房共堂屋雙拼別墅設計圖方案,三層挑空復式戶型
占地:199.5平方米左右
小戶型經濟型三層雙拼小別墅施工設計圖紙,單戶100平內
占地:150平方米
占地200平米時尚現代三層農村別墅設計圖,簡簡單單百看不厭
占地:202.95平方米
240平方米新農村四合院兩層樓房施工設計圖紙帶外觀圖
占地:234平方米
130平氣派美觀的二層別墅房屋設計圖,含效果圖
占地:130平方米
高顏值農村二層別墅設計圖,顏值在線造價不高,建房好選擇!
占地:216.93平方米
農村13萬元二層小樓圖,簡單易建,造價低
占地:110平方米
現代風格三層別墅設計圖紙和效果圖,農村自建精選
占地:129平方米
推薦:10套新農村自建房設計圖,2026年最新設計
閱讀次數:4825737次
100套鄉村別墅圖片大全,2026年最新設計
閱讀次數:2492203次
6款農村蓋一層平房的設計圖,10萬元就能建起來
閱讀次數:1852637次
這11個一層農村自建房別墅火爆了朋友圈!我最喜歡戶型十!你呢
閱讀次數:750268次
農村6萬元建一層小別墅圖,你敢相信嗎
閱讀次數:567686次
農村5萬塊就能自建房,6套普通房子設計圖分享,你沒看錯!
閱讀次數:419410次
8套農村漂亮三間平房圖片,非常適合在農村修建!
閱讀次數:411197次
農村自建房化糞池怎么做?附方案及施工過程
閱讀次數:391783次
農村一層三間平房設計圖,告別土氣養老房,讓人忍不住點贊
閱讀次數:350581次
新農村二層樓房圖片造價12萬,挑一套回家建房吧!
閱讀次數:349126次
