
|
很多農村老鄉在外打工掙了錢,就想回老家蓋一棟小別墅,既可以作為父母養老的保障,又能供自己逢年過節回家休息和待客,別墅建好了還能讓全村人刮目相看,所以現在農村的小別墅是越來越多了。 今天給大家帶來2套11X11米的三層別墅,戶型方正實用、時尚好看,一起來看看吧! 第一套
正面效果圖
背面效果圖
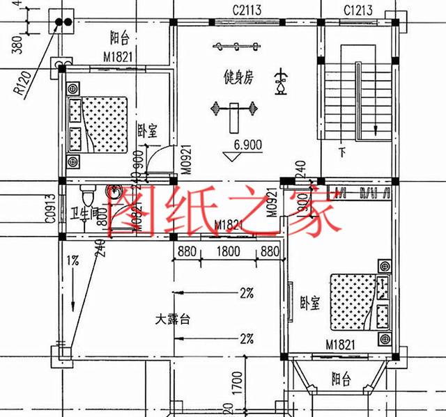
鳥瞰效果圖 占地面積:10.76m*10.76m,一層建筑面積120平方米左右; 建筑層高:三層; 建筑高度:12.00米(含屋頂); 一層戶型:客廳、餐廳、廚房、臥室、衛生間、洗衣房(儲藏間或者去掉)、儲藏間(樓梯下面); 二層戶型:客廳、主臥(帶衛生間)、臥室x2、衛生間、棋牌室(或書房); 三層:健身房、臥室x2、衛生間、大露臺;
一層平面圖
二層平面圖
三層平面圖 第二套
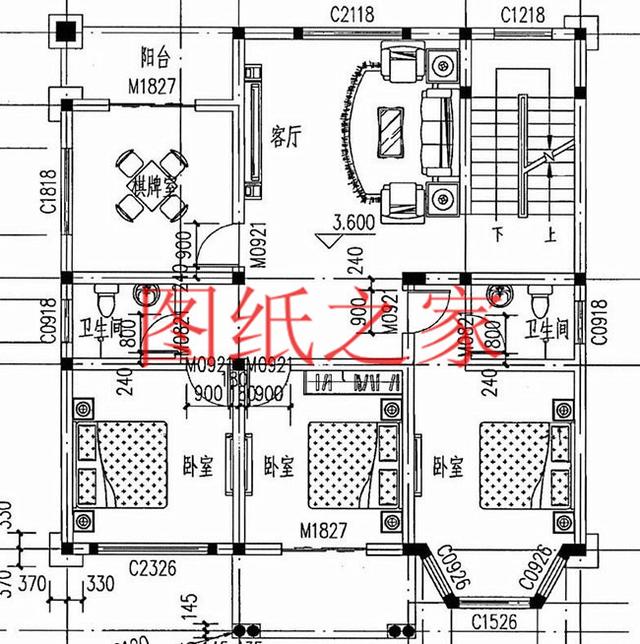
正面效果圖 占地面積:10.5m*11.5m,一層建筑面積120平方米左右; 建筑層高:三層; 建筑高度:12.688米(含屋頂); 設計功能: 一層戶型:客廳、餐廳、廚房、臥室、衛生間、衛生間(樓梯下面); 二層戶型:客廳、臥室x3、衛生間; 三層戶型:臥室x3、衛生間、大露臺;
一層平面圖
二層平面圖
三層平面圖 這幾套別墅的設計圖,你最喜歡哪一套? 圖紙之家-專注農村別墅/自建房設計18年,集合國內200余位經驗豐富的設計師,被評為口碑最好的農村建筑設計公司! |

外觀高檔大氣的三層別墅房屋設計圖,高端別墅設計展示
占地:147平方米
230平方米豪華歐式二層別墅CAD設計圖紙帶外觀效果圖,21.6×15米
占地:236平方米
適合小面寬宅基地的兩開間別墅設計圖,8.5米乘13.5米
占地:107.66平方米
網紅款兩層別墅圖紙設計圖,外觀簡單好看,后面不開窗
占地:171平方米左右
復式別墅新農村二層房屋設計圖紙,屋頂錯落有致
占地:多戶型可選
仿古別墅建筑設計圖,外觀效果圖+全套施工圖
占地:142平方米
經濟實用二層農村自建房設計圖,新中式風格12x11米
占地:114平方米
農村三層半別墅設計圖及外觀效果圖,三層半樓房設計方案推薦
占地:100平方米
三間三層房子設計圖,高端三層樓房設計圖,三層兩個大露臺
占地:170平方米
農村三間兩層樓房設計圖,帶車庫,戶型簡單實用
占地:140平方米
農村二層住宅別墅設計圖,貼心實用,12.8米乘14.5米
占地:156.16平方米
新農村自建三層復式結構房屋別墅設計圖紙及效果圖
占地:138平方米
13×10米現代簡約風格三層別墅圖,坡屋頂和平屋頂完美結合
占地:120平方米
150平歐式別墅房屋設計圖,外觀精美、氣派
占地:150平方米
全套三層農村房屋設計圖紙,客廳中空,大大的窗戶,采光極好,
占地:160平米
簡約實用農村自建房戶型圖,美觀經濟又通透,南北通透住得爽!
占地:160.6平方米
105平方米新農村三層別墅設計圖,全套CAD建筑圖+效果圖
占地:105平方米
獨棟兩層歐式別墅設計圖紙(效果圖+建筑施工圖)
占地:125平方米
兄弟雙拼別墅設計戶型圖及設計方案圖,帶外觀效果圖,外觀好看
占地:185平方米(單棟)
農村實用三層樓房圖片,占地140平米左右,客廳中空
占地:140平方米
推薦:10套新農村自建房設計圖,2026年最新設計
閱讀次數:4825737次
100套鄉村別墅圖片大全,2026年最新設計
閱讀次數:2492203次
6款農村蓋一層平房的設計圖,10萬元就能建起來
閱讀次數:1852637次
這11個一層農村自建房別墅火爆了朋友圈!我最喜歡戶型十!你呢
閱讀次數:750268次
農村6萬元建一層小別墅圖,你敢相信嗎
閱讀次數:567686次
農村5萬塊就能自建房,6套普通房子設計圖分享,你沒看錯!
閱讀次數:419410次
8套農村漂亮三間平房圖片,非常適合在農村修建!
閱讀次數:411197次
農村自建房化糞池怎么做?附方案及施工過程
閱讀次數:391783次
農村一層三間平房設計圖,告別土氣養老房,讓人忍不住點贊
閱讀次數:350581次
新農村二層樓房圖片造價12萬,挑一套回家建房吧!
閱讀次數:349126次
