
|
在一眾奢華的歐式風自建房中,現代風以起簡約明了的設計,流暢靈動的線條為建筑元素,讓整體建筑更有高級感的視覺享受。今天小編和大家一起欣賞10套現代風別墅,引領現代潮流的風格究竟是一種怎樣的存在呢?
別以為一層現代風就會小家子氣,摒棄了歐式的華麗,簡單的灰白裝飾,不同的裝飾線條卻讓別墅的層次感一覽無余。井井有條的內部布局舒適自在,又有顏值又有外在。
清新實用的二層現代風別墅,豎線條的設計分割凝練硬朗,房子姿態豐富美觀,室內空間更注重通透感的營造,空間動靜分離,居住體驗感得到大幅提升。無論是從外觀上還是布局上,都非常符合當下年輕人的審美與要求。
幾何線條將整體建筑分割的時尚大氣,造型感強,沒有奢華富麗的大理石柱,沒有精美的石膏線,但是凹凸有致的板面設計,讓整個別墅顯得格外出眾。
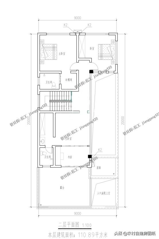
今天的重磅推薦,除了現代風的外觀吸睛之外,豪華配置的室內布局更是讓人垂涎不已。夏季暢游的游泳池,娛樂休閑的大露臺,寬闊大氣的內部庭院,帶有衣帽間和衛生間的主臥,一般人家真不敢這么建。
三層的現代風別墅其實比較少見,全景窗設計給人明亮大氣的感覺,整體建筑清靈飄逸。室內設計潔凈分明,三層的娛樂健身房和大露臺,更是平日休憩玩耍的場所。
現在回家建房不僅僅是為了養老,很多也是為孩子的婚房做準備,所以在建房上家里的年輕人喜好一定要考慮到。如果你不相信的話,將這10套戶型拿給孩子看看,他一定會有中意的款。 圖紙之家-專注農村別墅/自建房設計18年,集合國內200余位經驗豐富的設計師,被評為口碑最好的農村建筑設計公司! |

廚房在前,簡約歐式二層農村自建別墅設計圖,戶型個性
占地:143.69平方米
二層新農村自建房設計圖,帶外觀效果圖
占地:140平方米
面寬16米三層法式別墅設計圖,設計新穎別致,建成后美不勝收
占地:162.07平方米
帶地下室設計三層自建房別墅設計圖,復式挑空客廳
占地:192平方米
簡簡單單一層農村自建別墅方案,布局緊湊又不擁擠
占地:133.55平方米
120平農村三層房屋設計圖,含外觀圖片
占地:120平方米
30萬左右的新農村自建三層別墅施工設計圖紙及效果圖
占地:148平方米
三層帶車庫樓中樓建房別墅圖紙,占地130平米左右,戶型室內布局
占地:130平方米
帶電梯的農村歐式雙拼三層豪宅別墅設計圖,樓梯電梯共用
占地:268.448平方米
歐式大氣新農村三層別墅豪宅設計圖,外觀高端,對稱設計
占地:225平方米左右
自建一層農村別墅圖,經濟實用新選擇,建房必備參考戶型!
占地:142.88平方米
230平方米新農村二層自建別墅設計圖紙帶外觀圖,20X11米
占地:227平方米
七字型一層平房別墅設計圖紙,15X16米
占地:177.9平方米
120平米農村房屋設計圖,造價20萬左右,別墅造型結構精致
占地:120平方米
一層帶小院自建房設計,穩重經濟,適合老人自住養老
占地:179.19平方米
農村15萬元二層小樓設計圖,外觀簡潔、樸素,造價低
占地:138平方米
16米乘11米接地氣農村二層自建房圖,帶配房設計
占地:149.8平方米
120平米三層小別墅設計方案和效果圖,端莊大氣很經典
占地:120平方米
小戶型二層四合院別墅設計圖,含外觀效果圖,小宅基地選擇
占地:134平方米
80平方米新農村三層房屋設計圖,新農村住宅圖紙精選
占地:80平方米
推薦:10套新農村自建房設計圖,2026年最新設計
閱讀次數:4825737次
100套鄉村別墅圖片大全,2026年最新設計
閱讀次數:2492203次
6款農村蓋一層平房的設計圖,10萬元就能建起來
閱讀次數:1852637次
這11個一層農村自建房別墅火爆了朋友圈!我最喜歡戶型十!你呢
閱讀次數:750268次
農村6萬元建一層小別墅圖,你敢相信嗎
閱讀次數:567686次
農村5萬塊就能自建房,6套普通房子設計圖分享,你沒看錯!
閱讀次數:419410次
8套農村漂亮三間平房圖片,非常適合在農村修建!
閱讀次數:411197次
農村自建房化糞池怎么做?附方案及施工過程
閱讀次數:391783次
農村一層三間平房設計圖,告別土氣養老房,讓人忍不住點贊
閱讀次數:350581次
新農村二層樓房圖片造價12萬,挑一套回家建房吧!
閱讀次數:349126次
