
|
我國幅員遼闊,農村蓋房不能一概而論,要根據地形地貌、地理氣候來設計房屋。比如北方氣候寒冷因此需要做好防寒保暖,南方多雨潮濕,要防潮架空。今天推薦4棟小洋樓,大家一眼就可以看出南北方的差別,來年要建房的話也可以作為參考。 戶型一
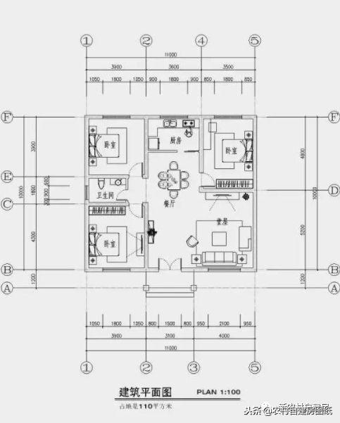
建筑尺寸:開間11米,進深10米,占地面積110平方米,建筑面積110平方米,建筑結構磚混結構。 經典的一層別墅,配色優雅溫馨,靛藍色屋頂和門前石柱增添美感,整體線條走向干脆利落。
一層:糖糖無、餐廳、廚房、衛生間、3間臥室 戶型二
建筑尺寸:開間14米,進深13.8米,占地面積193.2平方米,建筑面積384平方米,建筑結構磚混結構。 豪華大氣的平頂雙層,羅馬柱和花瓶是欄桿的結合,經典又霸氣。形態各異的窗戶造型和墻面雕花,時尚美觀。建筑元素均采用簡單的裝飾材料,顏色選擇也非常傳統,適合農村建造。
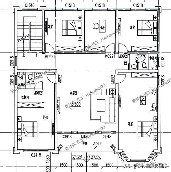
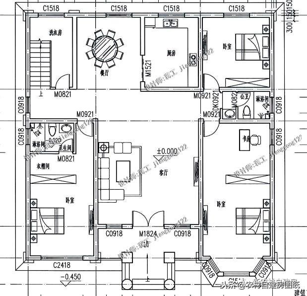
一層:門廳、客廳、廚房、衛生間、臥室(書房)、臥室(帶衣帽間)、臥室、洗衣房 臥室(帶衣帽間、淋浴間)、3間臥室、書房、起居室 戶型三
設計尺寸:開間13.2米,進深9米,占地面積109.24平方米,建筑面積213.56平方米,建筑結構框架結構。 經典的歐式雙層別墅,外觀靚麗養眼,造型飄逸流暢,室內功能齊全,著重提高業主居家生活的舒適度和品質。
一層:客廳、餐廳、廚房、臥室、衛生間、車庫 二層:3間臥室、陽臺、客廳、衛生間 戶型四
建筑尺寸:開間14.76米,進深10.36米,占地面積170平方米,建筑面積320.8平方米,建筑結構框架結構。 別墅采用西式風格建造,配色經典溫馨,給人賞心悅目之感。室內設計貼心實用,功能完善,空間利用率高。
一層:玄關、客廳、餐廳、廚房、衛生間、3間臥室 二層:露臺、起居室、棋牌室、3間臥室、衛生間 這4棟農村自建房,既有適合南方的,也有適合北方的,外觀經典大氣,室內布局合理實用,各有特色,大家覺得南方的比較好還是北方的呢? 圖紙之家-專注農村別墅/自建房設計18年,集合國內200余位經驗豐富的設計師,被評為口碑最好的農村建筑設計公司! |

頂配三拼三層別墅設計,獨立入戶+共享庭院,兄弟三家共享奢華
占地:367.44平方米
四層自建別墅設計圖,有車庫帶露臺,時尚大氣給你一個五星級的
占地:152.51平方米
170平方米雙拼別墅戶型建筑設計圖紙及外觀效果圖,復式單戶85平
占地:170平方米
中式兄弟雙拼別墅設計圖紙,類似合院造型,美爆了
占地:221.9平方米
一層帶小院自建房設計,穩重經濟,適合老人自住養老
占地:179.19平方米
新古典中式風格別墅設計圖,全套施工圖+效果圖
占地:188平方米
2026新款四層樓房設計圖,占地120平方米左右,客廳中空
占地:120平方米
140-150平方米新農村別墅設計圖紙,帶外觀效果圖,復式戶型
占地:146平方米
帶庭院中式二層四合院別墅設計效果圖片,方方正正
占地:404平方米
面寬12米新中式三層別墅設計圖,回家建房就選它,全家人都愛的
占地:180平方米
中式三層新農村房子別墅設計圖,看了那么久,還是中式最有韻味
占地:97.2平方米
中式二層對稱別墅設計圖,帶地下室設計,整體造價經濟
占地:171.6平方米
一層三間別墅設計圖,經濟實用 + 好看不貴,養老自住都適配
占地:119.31平方米
高端三層新中式農村別墅設計圖,仿合院布局,外觀霸氣
占地:133.64平方米
60多平三層現代風格別墅設計圖,小戶型平屋頂
占地:66.4平方米
經濟實用二層復式樓房設計圖 ,占地150平方米,造價25萬左右
占地:150平方米
新中式三層樓房設計圖,外觀精致布局也是相當的樸實
占地:140平方米
農村一層中式三合院別墅設計圖,戶型經典實用,19米乘15米
占地:243.21平方米
好看實用農村2開間二層別墅設計圖,主體19萬
占地:117.36平方米
二層簡歐風格自建房別墅戶型設計圖,造價26萬
占地:132.4平方米
推薦:10套新農村自建房設計圖,2026年最新設計
閱讀次數:4825737次
100套鄉村別墅圖片大全,2026年最新設計
閱讀次數:2492203次
6款農村蓋一層平房的設計圖,10萬元就能建起來
閱讀次數:1852637次
這11個一層農村自建房別墅火爆了朋友圈!我最喜歡戶型十!你呢
閱讀次數:750268次
農村6萬元建一層小別墅圖,你敢相信嗎
閱讀次數:567686次
農村5萬塊就能自建房,6套普通房子設計圖分享,你沒看錯!
閱讀次數:419410次
8套農村漂亮三間平房圖片,非常適合在農村修建!
閱讀次數:411197次
農村自建房化糞池怎么做?附方案及施工過程
閱讀次數:391783次
農村一層三間平房設計圖,告別土氣養老房,讓人忍不住點贊
閱讀次數:350581次
新農村二層樓房圖片造價12萬,挑一套回家建房吧!
閱讀次數:349126次
