
|
它不停地向我召喚/當身邊的微風輕輕吹起/有個聲音在對我呼喚/歸來吧/歸來喲/浪跡天涯的游子 因為城市賺錢多所以離開了家鄉,可是回頭想一想,掙的錢多花的也多,最后還是一個字:窮。打拼在城市職場的年輕人,承受著過高的交通費和租房成本,承受著高物價帶來的壓力,承受著各種交際和人情往來,往往打拼多年并沒有攢下太多繼續。你可以給自己一個只身闖蕩和努力拼搏的機會,但是別忘了,你的身后,還有著承載親情和愛情的地方。
走近房屋有小花園,可以擺上椅子,感受室外的清新空氣,放松心情。映入眼簾的歐式的三層小建筑,恰是好看。有漂亮的落地窗,寬闊的陽臺,小三角的屋頂。
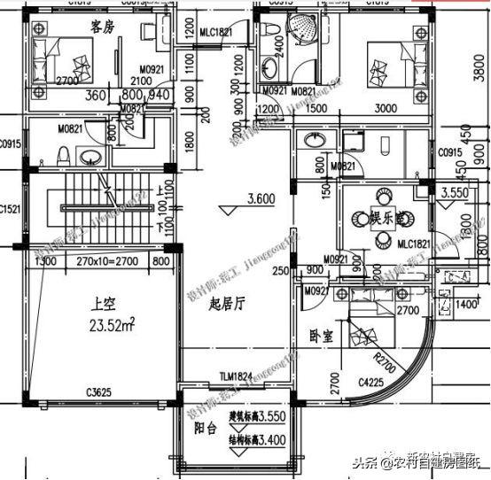
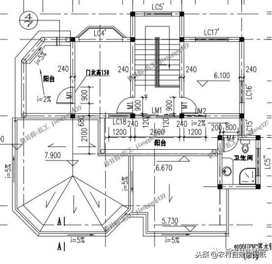
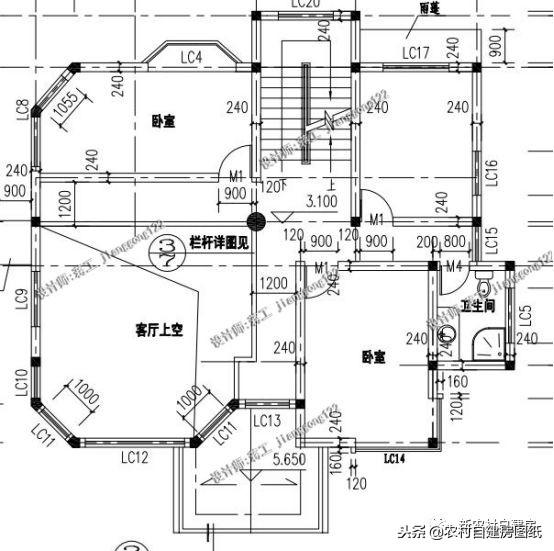
平面布局圖:
一樓主要是客房、客廳、廚房及麻將休閑室, 二樓主要作為臥室,三樓設計有書房,還有空中花園。 這款樓房的設計集生活娛樂休閑于一體,很符合現在的需求。 第二例
這款樓房的設計有小橋,有山有樹木,仿佛置身于世外桃源。 米黃色和磚紅色兩種主體色,看上去年輕又不失穩定,清新舒暢。 平面布局圖:
這款樓房的設計既有歐式的簡約又有中式園林的風格,既美觀又大方。同時居住舒適度和觀賞極佳。 第3例
干凈清爽的簡約風格,房屋整體線條流暢飄逸,搭配弧形落地采光窗,增添美感。
入戶門廳與挑空客廳相連,更顯通透大氣,主臥帶有獨立衛生間,方便起居生活,書房面積適中,可以根據需求設置成其他功能房。臥室面積大,生活更加舒適。 圖紙之家-專注農村別墅/自建房設計18年,集合國內200余位經驗豐富的設計師,被評為口碑最好的農村建筑設計公司! |

大氣豪華四層別墅設計圖紙,占地180平米左右
占地:180平方米
帶陽光房的二層簡歐別墅圖紙,戶型經典實用
占地:147.2平方米
農村一層帶小院房屋設計圖,帶院子一層自建房別墅戶型圖
占地:161.16平方米
帶地下室的農村自建三層半歐式別墅設計圖,看著真豪氣!
占地:142.45平方米
經典三層雙拼樓房設計圖,經典外觀,經典戶型
占地:225平方米
農村二層帶車庫樓房設計圖,帶外觀效果圖片
占地:125平方米
農村四間三層豪華別墅設計方案圖,造型輕奢雅致
占地:200平方米
農村自建二層樓房設計圖及效果圖,二層房屋圖推薦
占地:105平方米
帶車庫二層農村豪華別墅設計圖,主體25萬左右
占地:170平方米左右
三層新農村自建房屋設計圖紙,占地120平米左右
占地:120平方米
二層門面房自建小樓設計圖紙及效果圖,占地150平
占地:151.83平方米
現代風平屋頂三層半農村小別墅設計圖,面寬僅7米
占地:90平方米
農村13萬元二層小樓圖,簡單易建,造價低
占地:110平方米
三層別墅40萬左右氣派的外觀效果圖,含全套施工設計圖
占地:161.46平方米
新中式三層雙拼別墅設計圖及效果圖,中式大氣風格
占地:235.26平方米
面寬22米的高端三層自建房別墅設計圖,功能齊全
占地:222.47平方米
簡單實用二層雙拼樓房設計圖,造價30萬左右
占地:180平方米
12.8乘10米一層平房別墅設計圖,四室二廳南北通透
占地:128.85平方米
農村自建房別再做傳統客廳!“客廳+茶室”一體設計,寬敞明亮
占地:143.73平方米
高顏值農村二層別墅設計圖,顏值在線造價不高,建房好選擇!
占地:216.93平方米
推薦:10套新農村自建房設計圖,2026年最新設計
閱讀次數:4825737次
100套鄉村別墅圖片大全,2026年最新設計
閱讀次數:2492203次
6款農村蓋一層平房的設計圖,10萬元就能建起來
閱讀次數:1852637次
這11個一層農村自建房別墅火爆了朋友圈!我最喜歡戶型十!你呢
閱讀次數:750268次
農村6萬元建一層小別墅圖,你敢相信嗎
閱讀次數:567686次
農村5萬塊就能自建房,6套普通房子設計圖分享,你沒看錯!
閱讀次數:419410次
8套農村漂亮三間平房圖片,非常適合在農村修建!
閱讀次數:411197次
農村自建房化糞池怎么做?附方案及施工過程
閱讀次數:391783次
農村一層三間平房設計圖,告別土氣養老房,讓人忍不住點贊
閱讀次數:350581次
新農村二層樓房圖片造價12萬,挑一套回家建房吧!
閱讀次數:349126次
