
|
城市房價飆升,需要花上好一輩子的積蓄,還要還貸,真的很累,不想做房奴。很多農村人花個二三十萬回老家蓋一棟氣派的小洋樓倍兒有面子。隨著農村人賺錢能力的提升,品位和眼光也在跟隨著進步。拋開城鄉結合部的農村建設,越來越多的人想要知道如何才能將農村自建房蓋得高端大氣上檔次像個小洋樓。今天小編推薦這個別墅戶型,花30萬就能蓋這樣的別墅,
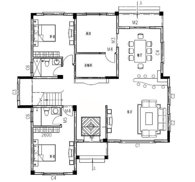
三層復式別墅設計圖紙,含外觀效果圖,帶露臺,外觀時尚大方,本戶型平面功能分區明確,布置合理,動靜分離,凈污分離,居寢分離,平面布局簡潔緊湊,使用方便,合理通暢。占地面積:13.5m*14.3m,占地160平米左右;建筑層高:三層;建筑高度:11.8米(含屋頂)坡屋頂;
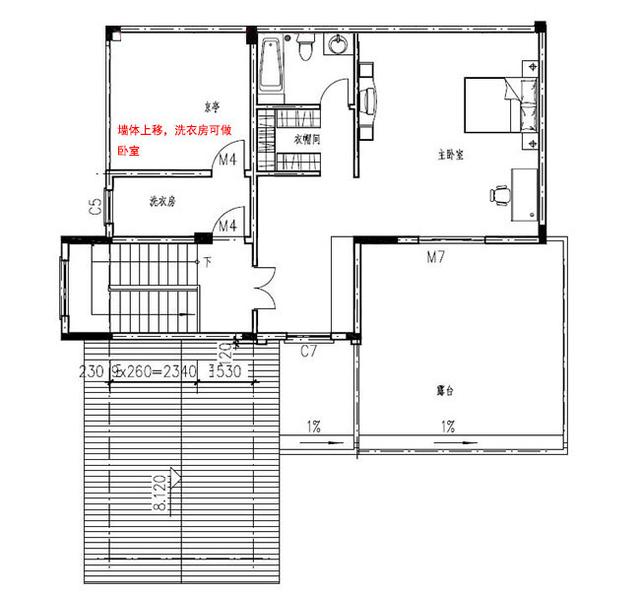
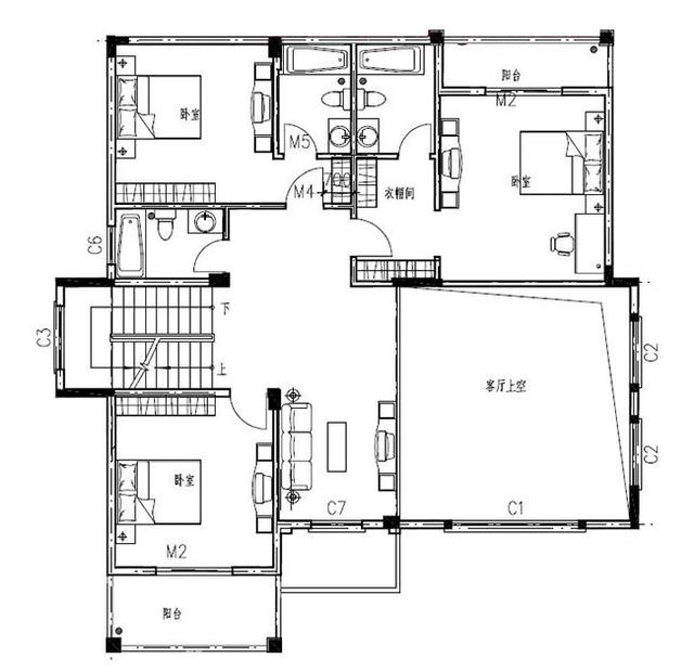
設計功能: 一層:玄關、客廳、餐廳、廚房、雜物間、主臥(帶衛生間)、臥室、衛生間; 二層:過廳、小客廳、主臥x2( 帶衛生間)、臥室、衛生間、陽臺x2; 三層:客廳、主臥室(帶衣帽間)、臥室(帶小露臺)、衛生間、大露臺;
立面圖:
![]() 圖紙之家-專注農村別墅/自建房設計18年,集合國內200余位經驗豐富的設計師,被評為口碑最好的農村建筑設計公司! |

農村自建一層房子設計圖,大開間小進深,20米x10米
占地:188平方米
小平米四層自建房屋設計圖紙,戶型簡單實用,占地80平方米
占地:80平方米
現代風格四合院別墅設計圖,回老家建一棟吧
占地:177.89平方米
高端二層新中式四合院別墅設計圖,含全套CAD施工圖
占地:217平方米
面寬16米三層法式別墅設計圖,設計新穎別致,建成后美不勝收
占地:162.07平方米
雅致的鄉下二層蓋別墅設計圖紙,造價35萬左右
占地:178平方米
小型雙拼一層平房設計圖,外觀古樸
占地:100平方米
新農村中式三層四合院別墅設計戶型圖,農村自建四合院效果圖
占地:多種戶型
一層農村自建房設計圖,造型美觀大氣,占地150平
占地:153.415平方米
155平方米二層別墅房屋設計圖,帶獨立車庫
占地:155平方米
好評不斷二層簡歐房屋設計圖,占地150平,農村建房就選它
占地:150平方米左右
2026新款新式農村50萬三層別墅圖片,帶地下室,美觀大氣
占地:130平方米左右
140平米二層半帶露臺別墅圖片及圖紙,戶型極佳
占地:140平方米
鄉村三層別墅CAD建筑設計圖,110平方米戶型,帶效果圖和全套施工
占地:110平方米
歐式兩層別墅設計圖及歐式效果圖,造價25萬左右
占地:150平方米
鄉村最美三層別墅設計圖自建房戶型,外觀圖精致漂亮
占地:134平方米
農村四層復式房屋設計圖紙,占地105平方米預算35萬左右
占地:105平方米
古典韻味的四層房屋設計圖,占地140平米左右,這樣的外觀配上紅
占地:140平方米
2026新款四層樓房設計圖,占地120平方米左右,客廳中空
占地:120平方米
140平方米新農村二層自建平屋頂房屋設計圖紙帶外觀效果圖
占地:140平方米左右
推薦:10套新農村自建房設計圖,2026年最新設計
閱讀次數:4825737次
100套鄉村別墅圖片大全,2026年最新設計
閱讀次數:2492203次
6款農村蓋一層平房的設計圖,10萬元就能建起來
閱讀次數:1852637次
這11個一層農村自建房別墅火爆了朋友圈!我最喜歡戶型十!你呢
閱讀次數:750268次
農村6萬元建一層小別墅圖,你敢相信嗎
閱讀次數:567686次
農村5萬塊就能自建房,6套普通房子設計圖分享,你沒看錯!
閱讀次數:419410次
8套農村漂亮三間平房圖片,非常適合在農村修建!
閱讀次數:411197次
農村自建房化糞池怎么做?附方案及施工過程
閱讀次數:391783次
農村一層三間平房設計圖,告別土氣養老房,讓人忍不住點贊
閱讀次數:350581次
新農村二層樓房圖片造價12萬,挑一套回家建房吧!
閱讀次數:349126次
