
|
有的人建房要準備大半年,甚至有人準備兩三年才開始動工,當然這肯定是被很多的原因束縛住了手腳,有人是因為宅基地一直確定不下來,有人是因為看了很久也找不到一款合適的戶型,當找不到合意的戶型,你有兩種方式,第一就是等,第二就是私人訂制設計。 找戶型也要找對方向,這4款面寬均為11.4米的三層農村別墅戶型,決不讓你走冤枉路。 第一款
一款外觀偏歐式風格的農村別墅戶型,這樣的別墅建在城里也是綽綽有余的,倘若建在農村,可見會引起多大的反響。
一層平面圖:南北通透的戶型往往更受人喜愛,炎熱的夏天只要打開后門,就可以感受到涼爽的夏風撲面而來的快感。
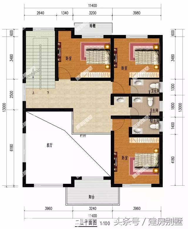
二層平面圖:客廳挑空,尤為大氣,家里來了客人朋友,坐在客廳里面聊著天喝著茶,多么的愜意,又是多么的有面子。
三層平面圖:也做了較多的臥室,配一個小露臺用來休閑。
第二款
與第一款戶型的歐式外觀不同,這款戶型外觀就更偏向現代化,但是坡屋頂設計又不同于現代式風格的別墅,所以這是一個結合體。
一層平面圖:同樣的是南北通透,而且走上后門的方式也是比較的特別,看起來就很高端。
二層平面圖:同樣的客廳挑空,除了臥室,中間還有一個多功能廳,可以做茶室、開放式的書房或者棋牌室。
三層平面圖:陽臺的排布、衛生間的位置等等都在說著這款戶型是多么的實用。
第三款
這款戶型是今年和去年下半年的熱門戶型,戶型從去年設計出來之后一直熱度不減,可見這款戶型有多好。
一層平面圖:從玄關、到老人房再到三跑式的樓梯設計,以及衛生間的設計都是特別的實用方便。
二層平面圖:三室一廳的設計,主臥室配有一個飄窗設計和一個獨立衛生間。
三層平面圖:主臥除了獨衛,還配了個書房,很多人也喜歡住在樓層高一點的地方,居住在三層,外面就是休閑露臺也很不錯的。
第四款
外墻真石漆裝修,也顯得很有質感,門樓的設計,將別墅的氣派性給襯托了出來。
一層平面圖:這款戶型帶個小堂屋可以擺放神位的,其他空間的排布也是合理至極。
二層平面圖:這款戶型的客廳就沒有挑空了,畢竟并不是每個人都喜歡挑空客廳的,臥室較多,這層就用來休息。
三層平面圖:同樣的有三個臥室,還有一個較大的露臺設計。
這四款戶型,都是設計師的經典之作,每一款戶型拿出去都是精品,建房之前何必苦苦找戶型,看這四款,在里面定一款就得了。 圖紙之家-專注農村別墅/自建房設計18年,集合國內200余位經驗豐富的設計師,被評為口碑最好的農村建筑設計公司! |

帶地下室三層新農村房屋設計圖紙,外觀效果大氣
占地:220平方米
12X14米四層農村自建別墅設計圖,功能設計豐富齊全
占地:157平方米
共用中堂雙拼兄弟三層別墅設計圖,簡歐式風格
占地:230平方米
新中式二層農村小樓房設計圖,戶型圖方正,外觀大氣
占地:143平方米
中式徽派二層農村別墅設計圖,白墻黛瓦馬頭墻,永不過時
占地:171平方米
小戶型三層別墅房屋設計圖紙,占地80多平米,麻雀雖小五臟俱全
占地:80平方米
90平-100平小戶型一層三間平房農村別墅設計圖方案戶型
占地:多戶型可選
四層(三層半)豪華歐式別墅房屋設計圖,外觀高端、大氣
占地:150平方米
135平三層農村樓房設計圖及效果圖,造價20萬左右
占地:135平方米
簡簡單單的二層樓房的設計圖,24萬就能搞定
占地:120平方米
三層新農村自建小型別墅設計圖及效果圖,三間三層樓房戶型
占地:114平方米
簡簡單單一層農村自建別墅方案,布局緊湊又不擁擠
占地:133.55平方米
簡單平房農村自建一層別墅設計圖,時尚大氣,造價經濟
占地:166平方米
100平方米新農村二層別墅設計圖紙,帶屋頂露臺
占地:100平方米
獨棟二層別墅cad設計圖紙,平屋頂自建別墅方案精選
占地:190平方米
農村二層樓簡單大氣的樓房設計圖紙,帶車庫,帶露臺
占地:150平方米
新款中式二層四合院住宅設計圖,農村自建帶露臺設計
占地:223平方米
2026年簡單實用二層農村別墅,經典大氣真的香
占地:165.98平方米
四層別墅豪宅外觀效果圖及全套施工圖,高端歐式風格
占地:176.97平方米
經典美式二層小別墅設計圖,回鄉建房不可不看的經典之作
占地:109.33平方米
推薦:10套新農村自建房設計圖,2026年最新設計
閱讀次數:4825737次
100套鄉村別墅圖片大全,2026年最新設計
閱讀次數:2492203次
6款農村蓋一層平房的設計圖,10萬元就能建起來
閱讀次數:1852637次
這11個一層農村自建房別墅火爆了朋友圈!我最喜歡戶型十!你呢
閱讀次數:750268次
農村6萬元建一層小別墅圖,你敢相信嗎
閱讀次數:567686次
農村5萬塊就能自建房,6套普通房子設計圖分享,你沒看錯!
閱讀次數:419410次
8套農村漂亮三間平房圖片,非常適合在農村修建!
閱讀次數:411197次
農村自建房化糞池怎么做?附方案及施工過程
閱讀次數:391783次
農村一層三間平房設計圖,告別土氣養老房,讓人忍不住點贊
閱讀次數:350581次
新農村二層樓房圖片造價12萬,挑一套回家建房吧!
閱讀次數:349126次
