
|
農村人蓋別墅最重要的是什么?首先建房得有別墅圖紙,所以圖紙很重要。但是光有圖紙不行,還得有個專業的施工隊來施工。經常看到很多建房朋友參照住宅公園的效果圖蓋房,結果建出來卻事與愿違...... 所以,要想在農村建一座漂亮的別墅,圖紙和施工隊都很重要。相信看完今天分享的這套建房案例,大家就明白了!
這套案例位于江蘇省某農村,業主通過網絡了解到易蓋房,雙方也很快達成了合作。
現在別墅完工,業主一家表示非常滿意,特來投稿和大家分享建房過程。
項目地點:江蘇省 建筑結構:框架結構 施工機構:易蓋房100640號施工隊 建筑整體為新中式風格,立面以白色為主,更好突顯出中式元素的精美和韻味。窗戶選用木色分割幾何形狀,以不同組合方式形成豐富視覺效果。
屋頂部分考慮到南方降雨量,選用利于排水的坡屋頂。陽光露臺上方屋頂以格子玻璃呼應立面,使得整體連貫性更加。
側面陽臺處窗戶以屋頂輪廓為形,搭配玻璃圍欄和下方條窗,簡約大方中體現建筑設計感。
院墻分為三段,下方石材厚重,中段白墻輕靈,上方鏤空植物纏繞與四周環境貼合。院門附近院墻設計為鏤空景墻,將院內美景展于人前,增加整體和環境交流,使得建筑更好融入環境。
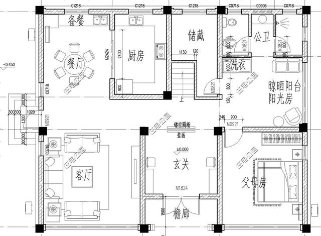
建筑面積:347.8㎡ 建筑尺寸:13m×10.6m 圖紙編號:526 項目造價:61.5萬(包含圍墻) 戶型概況:5室 2廳 2衛 1廚 3陽光房 2活動室 3儲存室 入戶玄關通過軟隔斷遮擋后方空間,使得進入室內第一時間就能感受到空間大氣感。客廳與餐廳開敞設計保持室內南北通透,老人房位于東南角,極好位置和采光條件讓老人有更舒適生活空間。生活陽臺和公衛與老人房位于一側,方便使用。 一層布局兼顧使用功能和生活便利的同時,將空間的大氣展露無遺。
二層東側與一層布局基本一致,西側琴棋書畫室打通,開闊空間為家中兒童提供了活動和學習場所。陽光露臺位于西南角,當業主在陽光露臺享受安靜時光的同時,可以很好看到琴棋書畫室內情景。細節設計使得業主及其家人能兼顧照顧兒童和自身娛樂。
三層設計多處儲藏空間,配合水吧、多功能活動室和客房形成較為完整和獨立的接待空間。考慮到使用頻率問題,將客房放置于三層,保證自用空間的隱私和獨立。 平面布局整體設計上十分貼合業主需求,齊全功能和合理分區分層讓業主能享受到更優的品質生活。
看完圖紙,趕緊一起來看看施工過程吧!
業主確定良辰吉日后項目正式開工,老房拆除后平整場地,進行測量放線,從源頭確保施工質量。
俗話說平地起高樓,基礎自然是重中之重。針對項目情況基礎選擇獨立基礎,不僅在造價方面更為經濟,也方便后續施工。
綁扎基礎梁鋼筋,支設模板,確保模板穩固性后開始下步施工。
整體澆筑混凝土,達到設計強度后開始拆模。
基礎完工后復核軸線,確保立柱及地梁軸線偏差在規范允許的范圍內。現場工人輪班秩序合理,各個班組配合默契,工期有所保證。
砌筑框架結構圍護墻體,準備坡屋頂施工。
除梁、板、柱施工外,砌體施工也有嚴格驗收標準,現場照片顯示墻面光滑,無裂縫,砌體質量達到驗收合格標準。
支好模板,采用雙層雙向配置鋼筋,并預埋好水電管線。
鋼筋驗收合格后澆搗混凝土,并認真做好養護。
水泥砂漿找平后,掛瓦施工。
安裝門窗,根據圖紙和業主喜好做外墻裝飾,采用白色墻漆涂刷外墻,搭配藍色屋頂,頗有種田園洋樓的氣質。
墻面細節完美還原設計,窗戶處的線條變化在施工中得到體現。藍天白云下的建筑十分亮眼有魅力。
室內陽光房處窗戶按照施工圖進行施工,窗戶四周密封完整。
室內刷白進行兩次,使用易蓋房建材直供的品牌乳膠漆進行。
整個建筑在四周環境中極為出挑,與鄰居家住宅有較為明顯差異,業主一家非常滿意!
62萬的總造價不僅包括主體,還包含圍墻、外裝和門窗,大家覺得在農村蓋一棟這樣的小別墅怎么樣? 圖紙之家-專注農村別墅/自建房設計18年,集合國內200余位經驗豐富的設計師,被評為口碑最好的農村建筑設計公司! |

農村120方三層自建房子圖,好看又不貴的三層農村別墅
占地:120平方米
12米乘9米占地百平一層平房戶型設計圖,布局寬敞大氣又舒適
占地:108平方米
農村平屋頂三層現代風別墅戶型圖,簡約實用經濟顏值高
占地:111.9平方米
經濟、不張揚!簡單二層別墅設計圖,農村建房直接抄作業
占地:198.58平方米
開間9到10米簡約別墅設計圖紙帶效果圖,全套別墅設計方案
占地:122平方米
200平方農村三層別墅房屋設計圖及效果圖,大戶型精選
占地:200平方米
鄉村兄弟二層小戶型雙拼房屋別墅設計圖,造價低,面積小
占地:多種戶型
兩層半30萬農村自建房別墅設計圖紙,客廳挑空,帶大露臺
占地:130平方米
歐式小型二層別墅效果圖片,帶全套Cad別墅設計圖紙
占地:120平方米
農村兩層新中式自建房屋設計圖,受歡迎的帶小配房戶型
占地:多戶型可選
300平方二層別墅四合院設計圖紙方案(效果圖+施工圖)
占地:332平方米
帶陽光房的二層簡歐別墅圖紙,戶型經典實用
占地:147.2平方米
二層美式花園洋房設計圖,帶堂屋戶型,外觀簡直美爆了
占地:159.32平方米
農村二層舒適好房,這款四開間別墅設計圖真的很不錯
占地:220.46平方米
160平方米農村實用型二層自建小別墅設計施工圖紙15米*10米
占地:160平方米
農村現代新中式三合院設計圖及效果圖片,外觀好看極了
占地:多戶型可選
漂亮實用的新農村二層小樓圖,造價20萬左右,超大景觀露臺
占地:130平方米
偏中式徽派的二層房屋農村別墅設計圖,馬頭墻小青瓦
占地:123.36平方米
四層巴洛克別墅設計圖,旋轉樓梯搭配超大挑空客廳,很有氣勢
占地:146平方米
高端二層新中式四合院別墅設計圖,含全套CAD施工圖
占地:217平方米
推薦:10套新農村自建房設計圖,2026年最新設計
閱讀次數:4825737次
100套鄉村別墅圖片大全,2026年最新設計
閱讀次數:2492203次
6款農村蓋一層平房的設計圖,10萬元就能建起來
閱讀次數:1852637次
這11個一層農村自建房別墅火爆了朋友圈!我最喜歡戶型十!你呢
閱讀次數:750268次
農村6萬元建一層小別墅圖,你敢相信嗎
閱讀次數:567686次
農村5萬塊就能自建房,6套普通房子設計圖分享,你沒看錯!
閱讀次數:419410次
8套農村漂亮三間平房圖片,非常適合在農村修建!
閱讀次數:411197次
農村自建房化糞池怎么做?附方案及施工過程
閱讀次數:391783次
農村一層三間平房設計圖,告別土氣養老房,讓人忍不住點贊
閱讀次數:350581次
新農村二層樓房圖片造價12萬,挑一套回家建房吧!
閱讀次數:349126次
