
|
地下室在農村建房中也是很常見的,它不僅能多出更多的空間來進行存放雜物,還能防濕防潮,很適合雨水較多的南方地區。并且地下室隔音效果好,還可做影視廳、KTV室,不怕吵到鄰居。今天介紹的這款就帶有帶地下室三層歐式別墅,主體預算30萬左右,非常劃算!
觀是豪華大氣的歐式風格,大氣的承重柱,精致的雕花,都彰顯戶主的品味。室內布局又要功能合理,打破千篇一律皮囊美,要做就做萬一里挑一。 開間:12.24米 進深:10.24米 首層建筑面積:125.3平米 總建筑面積:464.2平米 結構形式:框架結構 主體造價:30萬 建筑高度:12米 功能設計
地下室平面圖 地下室:影音室、棋牌室、酒窖、儲物間、衛生間
一層平面圖 一層:玄關、客廳、會客茶室、客房、衛生間
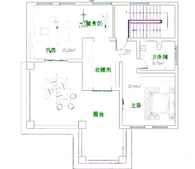
二層平面圖 二層:主臥(帶內衛、衣帽間)、書房、陽臺
三層平面圖 三層:主臥(帶內衛、衣帽間)、書房、露臺 圖紙之家-專注農村別墅/自建房設計18年,集合國內200余位經驗豐富的設計師,被評為口碑最好的農村建筑設計公司! |

平頂三層別墅設計方案,簡潔舒適大氣通透,12乘9米,打造理想住
占地:98.21平方米
豪華三層歐式風格別墅圖紙設計,挑空客廳大面寬大戶型
占地:225.72平方米
兩層樓房設計圖,兩層新農村樓房圖紙,外觀典雅古樸
占地:140平方米
帶車庫三間復式三層樓房設計圖,外觀精致、大方
占地:150平方米
帶露臺陽光房二層建房別墅設計圖,13米乘12米,享受農村悠然慢
占地:143.54平方米
預算20萬的農村三層房屋設計圖方案,帶外觀效果圖
占地:115平方米
廚房餐廳在配房的歐式三層農村別墅設計方案,華麗又宜居
占地:177.58平方米
3層20萬農村自建房設計圖,占地110平米
占地:110平方米
120平方米現代新農村二層自建房設計圖,造型時尚好看
占地:120平方米
時尚四開間二層農村別墅,經典大氣,引領建房新潮流!
占地:159.6平方米
兄弟合建中式一層四合院設計圖,古樸雅致代代相傳,永不過時
占地:468.03平方米
農村一層養老別墅設計圖,兩個戶型方案可選
占地:多種戶型
二層農村自建小別墅設計圖,歐式風格,占地160平方米
占地:160平方米
180平方別墅房屋設計圖,外觀效果圖美觀
占地:180平方米
新中式農村自建房三層設計圖,外觀布局均滿分
占地:142.18平方米
中式二層三合院設計圖紙含外觀效果圖片,大氣又實用
占地:216.04平方米
170平方米雙拼別墅戶型建筑設計圖紙及外觀效果圖,復式單戶85平
占地:170平方米
三層帶挑空客廳旋轉樓梯,農村這樣建別墅高檔大氣
占地:130.51平方米
面寬10米高品質二層別墅設計方案,造價不高顏值很高,非常適合
占地:137.63平方米
簡歐式三層小別墅設計圖,帶地下室,客廳中空,占地150平米
占地:150平方米
推薦:10套新農村自建房設計圖,2026年最新設計
閱讀次數:4825737次
100套鄉村別墅圖片大全,2026年最新設計
閱讀次數:2492203次
6款農村蓋一層平房的設計圖,10萬元就能建起來
閱讀次數:1852637次
這11個一層農村自建房別墅火爆了朋友圈!我最喜歡戶型十!你呢
閱讀次數:750268次
農村6萬元建一層小別墅圖,你敢相信嗎
閱讀次數:567686次
農村5萬塊就能自建房,6套普通房子設計圖分享,你沒看錯!
閱讀次數:419410次
8套農村漂亮三間平房圖片,非常適合在農村修建!
閱讀次數:411197次
農村自建房化糞池怎么做?附方案及施工過程
閱讀次數:391783次
農村一層三間平房設計圖,告別土氣養老房,讓人忍不住點贊
閱讀次數:350581次
新農村二層樓房圖片造價12萬,挑一套回家建房吧!
閱讀次數:349126次
