
|
生活的真諦是什么? 生活的真諦很簡單,它就是幸福、自由。 幸福它并不神秘,幸福的源泉大家都知道,只是常常忘了,于是這才有點奧妙。 人生中往往一件小事就能夠改變一個人的命運,同樣地,為別人推開一扇門就是給自己留下一條出路。 自由就更簡單了,自由地掌控自己,自由地奉獻他人,自由地成為別人的依賴,說出自己的想法,自由地做一直想做的事,自由地想念某個魂牽夢繞的人,自由地悲傷哭泣,自由地承認失敗接受教訓。 今天給大家帶來的設計主題正是“幸福”與“自由”。
建筑主體為二層簡歐獨棟別墅,結構為框架結構,效果圖看起來給人的第一感覺就是簡約淡雅。
外立面主要采用色澤不同的文化磚裝飾,下淺上深,把建筑層次感很好的區分開來。
整體占地不大,戶型緊湊,一家人居住在一起,不擁擠但十分融洽,這就是幸福感。
建筑立面線條干凈,但設計感十足,各種設計元素自由合理的搭配,構造出美輪美奐的主體風格。
除去大門一個出入口外,建筑還設有后門和偏門,做到出入自由。
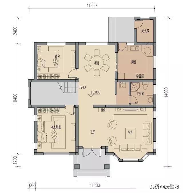
下面一起來看下內部布局效果圖:
一層平面設計:大門設計在正立面正中,入戶位置進去,右手邊是一間客廳,左手邊是一處老人房,往里走,扶梯在建筑中心左手邊,與其對立的是一樓唯一的一個衛生間,再往里去,左側設有一處臥室,右側則是廚房,餐廳夾在中間。
二層平面設計:二層三個角分別設有一個臥室,另外還設有書房露臺,基本滿足一家人的生活起居條件。 圖紙之家-專注農村別墅/自建房設計18年,集合國內200余位經驗豐富的設計師,被評為口碑最好的農村建筑設計公司! |

新農村二層歐式別墅設計圖,外觀漂亮,主體18萬起建
占地:115.2平方米
農村15萬元一層半小樓圖,最新的戶型設計
占地:182.31平方米
120多平米三層農村別墅設計圖,把實用做到極致,造價適中
占地:126.85平方米
110平方米新農村實用現代的二層建筑設計圖紙帶外觀圖11X10米
占地:110平方米
開間8米的小戶型二層別墅設計圖,2開間占地不到60平
占地:56平方米左右
超大氣的農村一層雙拼自建別墅設計方案,絕對讓人羨慕的“平房
占地:424平方米
獨棟三層樓房設計圖紙及效果圖,農村蓋房推薦
占地:125平方米
110平左右三間兩層農村別墅房屋設計圖,含外觀效果圖
占地:107平方米
農村一層7字型平房別墅設計圖,“L”自行戶型,外觀簡約低調
占地:213.39平方米
簡單時尚二層住宅設計圖紙,簡單的設計,不平凡的視覺感受
占地:110平方米
120平米農村三層房屋設計圖,客廳中空,戶型合理
占地:120平方米
新農村四層獨棟復式別墅設計圖,設計豪華時尚
占地:140平方米
經濟實用二層農村自建房設計圖,新中式風格12x11米
占地:114平方米
農村四層雙拼別墅房屋設計圖,造型現代、大氣
占地:220平方米
大氣新中式三層雙拼別墅設計圖及外觀,總面寬20米多
占地:205.76平方米
實用型二層別墅設計圖,簡單大方最耐看,16.5米乘11米
占地:150.94平方米
最新歐式三層別墅設計圖紙,超漂亮,預算30到40萬
占地:160平方米
120平方三層房子設計圖,漂亮實用農村自建小別墅設計圖
占地:120平方米
七字型設計新中式一層別墅設計圖,類合院風格
占地:267.3平方米
共用樓梯二層雙拼自建別墅設計圖,簡單大氣方正
占地:153.88平方米,
推薦:10套新農村自建房設計圖,2026年最新設計
閱讀次數:4825737次
100套鄉村別墅圖片大全,2026年最新設計
閱讀次數:2492203次
6款農村蓋一層平房的設計圖,10萬元就能建起來
閱讀次數:1852637次
這11個一層農村自建房別墅火爆了朋友圈!我最喜歡戶型十!你呢
閱讀次數:750268次
農村6萬元建一層小別墅圖,你敢相信嗎
閱讀次數:567686次
農村5萬塊就能自建房,6套普通房子設計圖分享,你沒看錯!
閱讀次數:419410次
8套農村漂亮三間平房圖片,非常適合在農村修建!
閱讀次數:411197次
農村自建房化糞池怎么做?附方案及施工過程
閱讀次數:391783次
農村一層三間平房設計圖,告別土氣養老房,讓人忍不住點贊
閱讀次數:350581次
新農村二層樓房圖片造價12萬,挑一套回家建房吧!
閱讀次數:349126次
