
|
現在的房價已經讓人無法應對,對于買房的朋友而言,就是頂著巨大的壓力,在應付房貸,所以現在有不少朋友喜歡自己在農村老家建房子,應該在價格上相對便宜很多,而且還有利于居住者自己設計、裝修等等。那么到底怎么設計呢?有興趣的朋友就跟隨小貍去看看吧,接下來小貍就分享一套平方外觀設計圖,為大家提供參考。 戶型效果圖
鏡像圖 此戶型為三層農村別墅,適應生活中的五彩繽紛,看起來也是很大氣。外立面的精心的設計,引村里的人來圍觀,這款三層的圖紙不管是外觀還是內部布局都很適合農村建房。 戶型平面圖
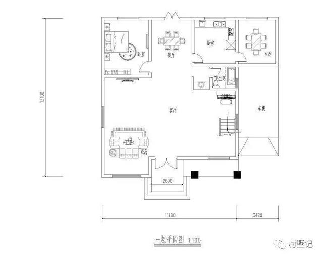
一層設有廚房、餐廳、臥室、客廳、衛生間、火房、車庫;進門就是客廳,室內敞亮無比;并且將盡量房間分布在采光窗的位置,采光好,日照率充足。
二層設有三個臥室、衛生間、會客廳、露臺、客廳上空;此戶型是個挑空客廳的設計,通透的挑空設計加上很多面的窗戶,讓整個布局十分大氣。
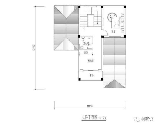
三層設有臥室、衛生間、娛樂室、露臺;二至三層是獨立的個人休息空間,也設娛樂室滿足家庭成員溝通交流的需要,且為各自獨立的隱私空間形成過渡,互不干擾,做到真正意義上的功能分區。怎么樣?這套別墅戶型還不錯吧! 圖紙之家-專注農村別墅/自建房設計18年,集合國內200余位經驗豐富的設計師,被評為口碑最好的農村建筑設計公司! |

農村120平米兩層樓的房子設計圖,外觀新穎
占地:120平方米
100平方建房子設計圖及效果圖,簡單實用的戶型設計
占地:97.3平方米
鄉村20萬內三層別墅房屋設計圖,面積適中、戶型經典
占地:100平方米
豪華復式三層別墅設計圖紙,效果圖+建筑施工圖+結構施工圖
占地:126平方米
面寬8米也能建別墅,小面寬農村三層別墅設計圖
占地:93.83平方米
一層帶閣樓農村別墅設計圖,多得一層可變空間,太值了!
占地:165.89平方米
鄉下120平米二層樓房設計圖,23萬就可以建漂亮別墅
占地:120平方米
農村四間二層別墅設計圖,七室二廳帶車庫,室內寬敞鄰居都羨慕
占地:217.1平方米
農村新中式別墅設計圖及效果圖,造價25萬左右
占地:95平方米
客廳中空的三層豪華小別墅設計圖,時尚靚麗,鄉下建一棟有面子
占地:171.25平方米
鄉村兄弟小戶型雙拼一層房屋設計圖,雙拼別墅格局精煉,實用性
占地:160平方米
110平方米新農村三層別墅設計圖,含外觀效果圖
占地:109平方米
面寬15米大氣的農村二層復式戶型別墅設計圖紙及外觀圖片
占地:173.28平方米
新中式三層歐式別墅設計圖,盡顯貴族風范,占地135平
占地:134.37平方米
帶車庫現代三層樓房設計圖,外觀效果圖時尚、美觀
占地:160平方米
鄉村二層半別墅圖紙設計,歐式風格、錯落有致,150平左右
占地:149.76
經典20萬左右二層別墅設計圖紙,造型頗具設計感的小別墅
占地:多戶型可選
簡單大氣的農村二層樓設計圖,二層歐式農村別墅設計圖
占地:180平方米
最漂亮的一層平房圖片及設計圖,造價18萬左右,結構簡單易于施
占地:186平方米
帶車庫,帶露臺的三層復式樓房設計圖,新農村房屋方案推薦
占地:140平方米
推薦:10套新農村自建房設計圖,2026年最新設計
閱讀次數:4825737次
100套鄉村別墅圖片大全,2026年最新設計
閱讀次數:2492203次
6款農村蓋一層平房的設計圖,10萬元就能建起來
閱讀次數:1852637次
這11個一層農村自建房別墅火爆了朋友圈!我最喜歡戶型十!你呢
閱讀次數:750268次
農村6萬元建一層小別墅圖,你敢相信嗎
閱讀次數:567686次
農村5萬塊就能自建房,6套普通房子設計圖分享,你沒看錯!
閱讀次數:419410次
8套農村漂亮三間平房圖片,非常適合在農村修建!
閱讀次數:411197次
農村自建房化糞池怎么做?附方案及施工過程
閱讀次數:391783次
農村一層三間平房設計圖,告別土氣養老房,讓人忍不住點贊
閱讀次數:350581次
新農村二層樓房圖片造價12萬,挑一套回家建房吧!
閱讀次數:349126次
