
|
隨著生活水平的提高,大家都在家里建了房,歐式、美式、現代別墅到處都是,讓人不得不感嘆新農村的發展。歐式別墅雖然大氣美觀,造型華麗,但是總叫人覺得缺了點的什么。“青磚黛瓦馬頭墻,縷縷青煙上青天”,不禁讓人懷念中式的古典和素雅。而新中式建筑沿襲中式傳統建筑精髓的同時,融入現代設計,再現深藏中華兒女心中的至高生活境界。今天就為大家分享7套新中式戶型,供農村建房的朋友們參考。 第一套: 占地尺寸:17.1m×9.1m 占地面積:131㎡ 建筑面積:207㎡ 結構形式:磚混結構 參考造價:主體30萬 設3室 2廳 2衛 1廚 1棋牌室 1茶室 1堂屋 1雜物間
中式在人們心中可能是那種深宅大院,其實不然,簡單的造型也可以打造中式別墅。建這樣的兩層中式別墅,滿足自己的中式夢,物超所值。
第二套: 占地尺寸:12.9m×13.9m 占地面積:187.15㎡ 建筑面積:438.4㎡ 結構形式:框架結構 參考造價:主體60萬 設8臥室 2廳 6衛 1廚 1玄關 1茶室 1書房 1衣帽間 2起居室 1陽臺 1露臺 1儲藏間
這套中式沒有繁雜的造型,也沒有挑出的飛檐,適合左右有鄰的家庭建設。
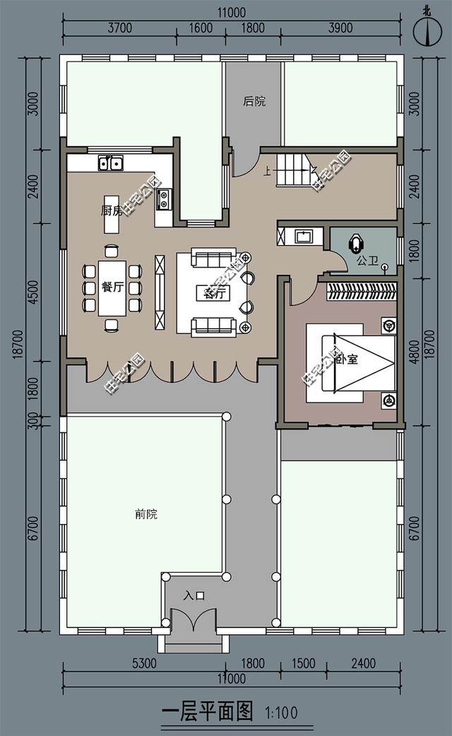
第三套: 占地尺寸:14.4m×9.9m 占地面積:143㎡ 建筑面積:269㎡ 結構形式:磚混結構 參考造價:主體40萬 設4室 2廳 4衛 1廚 1茶室 1棋牌室 1書房 1起居室 1儲藏間 1外走廊
用適中的宅基地打造一個“三合式”的中式別墅,整體造型威嚴穩重,這樣的中式別墅在氣勢上足以在鄉村首屈一指。
一層設大堂屋和老人房以及一茶室,二層設三臥室和棋牌室。
第四套: 占地尺寸:14.2m×18.6m 占地面積:196㎡ 建筑面積:356㎡ 結構形式:磚混結構 參考造價:主體50萬 設7臥室 1客廳1餐廳 1起居室6衛 1廚房 1娛樂室 1書房 2陽臺 2露臺
這套中式戶型翹起的檐角可以把雨水拋得更遠,同時寓意像鳥兒一樣展翅高飛。這樣的中式別墅,寓意飛黃騰達,深受“貴人”喜愛。
第五套: 占地尺寸:12.3m×13.5m 占地面積:132㎡ 建筑面積:309㎡ 結構形式:磚混結構 參考造價:主體45萬 設4臥室 2廳 3衛 1廚 1棋牌室 1書房 1茶室 1內庭院
有人說中式戶型哪能沒有小院,這套中式戶型主屋和側屋相交,前面留出小院。主屋設三層彌補了室內空間的不足,建這樣的中式小院,別人想不羨慕都不行!
第六套: 占地尺寸:11.9m×16.5m 占地面積:196.9㎡ 建筑面積:203㎡ 結構形式:磚混結構 參考造價:主體30萬 設2室 2廳 3衛 1廚 1玄關 1洗衣房 1陽臺
這套中式別墅房門采用圓形設計,頗具有中式庭院的味道,二層設景觀陽臺配合前院打造舒適愜意的生活。建了這樣的別墅,超高性價比,華麗的歐式建筑在它面前也黯然失色。
第七套: 占地尺寸:11m×9m 占地面積:100㎡ 建筑面積:177㎡ 結構形式:磚混結構 參考造價:主體25萬 設2臥室 2廳 2衛 1廚 1內走廊 1露臺 1娛樂室
入口采用連廊形式,二層設置露臺,前后庭院設計,大開窗,南北通透,室內布局多為開敞式,方便使用。
現在農村建房一味的追求歐式建筑,歐式建筑雖美,但見多了也就出現審美疲勞。而新農村現在每一棟稀缺的中式建筑,卻都能成為村里的焦點。7套中式建筑,你最喜歡哪一套? 圖紙之家-專注農村別墅/自建房設計18年,集合國內200余位經驗豐富的設計師,被評為口碑最好的農村建筑設計公司! |

最美中式農村別墅二層三間的房子圖,帶土灶房,娛樂室,大露臺
占地:180平方米
青瓦仿古中式大型三層別墅設計圖,韻味十足復古大氣
占地:300平方米
二層精美偏法式風格別墅設計圖,不但顏值高,品質還高
占地:154.17平方米
四合院別墅設計效果圖及平面圖,全套施工圖紙
占地:220平方米
占地百平農村三層戶型方案,簡約實用,獨具特色,理想新居等你
占地:105.61平方米
160平方農村三層別墅CAD設計圖紙,含外觀圖片效果圖
占地:156平方米
占地110平米兩層半農村房子設計圖,簡單實用
占地:110.25平方米
一二層都帶廚房餐廳的獨棟二層別墅設計圖,帶雙廚房
占地:143.68平方米
90平方米農村二層房屋設計圖紙(施工圖+效果圖)
占地:90平方米
農村二層半樓房設計圖及效果圖,歐式風格
占地:150平方米
新中式120平米農村20萬元二層小樓圖,外觀柔和而雅致
占地:120平方米
新農村三層別墅設計圖紙及效果圖,全套cad建筑圖
占地:119平方米
偏中式徽派的二層房屋農村別墅設計圖,馬頭墻小青瓦
占地:123.36平方米
最新設計的農村二層自建房屋設計圖,占地180平米,經濟實用
占地:180平米
農村25萬別墅款式二層自建房設計圖,外觀圖時尚
占地:115平方米
別致美觀的簡歐二層別墅房屋設計圖,含外觀效果圖
占地:145平方米
130平米帶小院一層自建房屋設計圖,省錢實用,養老房首選
占地:130平方米左右
造價30萬多的三層簡歐新農村別墅設計施工圖紙及效果圖
占地:133平方米左右
新中式三層樓房設計圖,外觀精致布局也是相當的樸實
占地:140平方米
簡單實用的二層雙拼別墅設計圖,總占地150平米左右,雙拼房屋
占地:150平方米MB
推薦:10套新農村自建房設計圖,2026年最新設計
閱讀次數:4825737次
100套鄉村別墅圖片大全,2026年最新設計
閱讀次數:2492203次
6款農村蓋一層平房的設計圖,10萬元就能建起來
閱讀次數:1852637次
這11個一層農村自建房別墅火爆了朋友圈!我最喜歡戶型十!你呢
閱讀次數:750268次
農村6萬元建一層小別墅圖,你敢相信嗎
閱讀次數:567686次
農村5萬塊就能自建房,6套普通房子設計圖分享,你沒看錯!
閱讀次數:419410次
8套農村漂亮三間平房圖片,非常適合在農村修建!
閱讀次數:411197次
農村自建房化糞池怎么做?附方案及施工過程
閱讀次數:391783次
農村一層三間平房設計圖,告別土氣養老房,讓人忍不住點贊
閱讀次數:350581次
新農村二層樓房圖片造價12萬,挑一套回家建房吧!
閱讀次數:349126次
